Letti: 4
Bagni:4 Interi | 1 Mezzo

1851 North Halsted Street #2, Chicago, Illinois, 60614, Stati Uniti

Inserito da: Justin Lucas | @properties Christie's International Real Estate

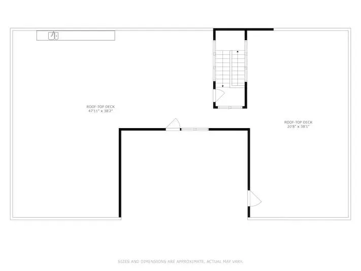
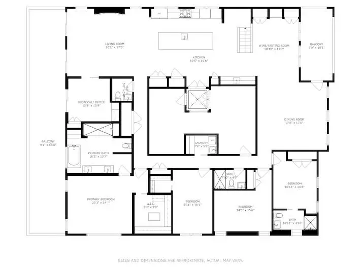
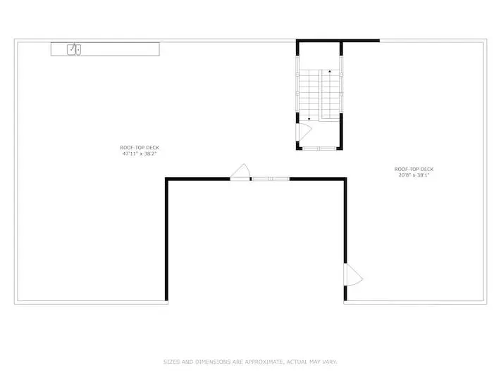
Step directly from your private elevator into nearly 4,000 square feet of flawless single-level living, where every detail has been masterfully curated to embody timeless sophistication and modern comfort. This extraordinary residence boasts 4 en-suite bedrooms, 4 full baths, and a powder room, all appointed with exquisite finishes and thoughtful design. The home's expansive chef's kitchen is a true showpiece, featuring custom cabinetry, a butler's pantry, double oven, and professional-grade appliances-all seamlessly flowing into the dramatic great room. Walls of glass open onto a spectacular 60-foot-wide terrace, creating an unrivaled setting for indoor-outdoor living and entertaining. The primary suite redefines luxury with its spa-caliber bath, complete with steam shower, heated floors, and an oversized soaking tub. Additional highlights include wide-plank white oak flooring, bespoke millwork, abundant built-in storage, a walk-in laundry room, and an attached two-car garage. With three private outdoor spaces totaling more than 1,000 square feet, the home offers a rare retreat from city life. Perfectly positioned on an exceptionally private stretch of Halsted-tucked behind Burling, with no alley-this residence enjoys a professionally landscaped oasis just steps from Armitage Avenue's boutiques, Michelin-starred dining, the zoo, and award-winning schools including Oscar Mayer. This is not simply a home-it is Lincoln Park's most exclusive offering.
Mostra altro Mostra meno

Step directly from your private elevator into nearly 4,000 square feet of flawless single-level living, where every detail has been masterfully curated to embody timeless sophistication and modern comfort. This extraordinary residence boasts 4 en-suite bedrooms, 4 full baths, and a powder room, all appointed with exquisite finishes and thoughtful design. The home's expansive chef's kitchen is a true showpiece, featuring custom cabinetry, a butler's pantry, double oven, and professional-grade appliances-all seamlessly flowing into the dramatic great room. Walls of glass open onto a spectacular 60-foot-wide terrace, creating an unrivaled setting for indoor-outdoor living and entertaining. The primary suite redefines luxury with its spa-caliber bath, complete with steam shower, heated floors, and an oversized soaking tub. Additional highlights include wide-plank white oak flooring, bespoke millwork, abundant built-in storage, a walk-in laundry room, and an attached two-car garage. With three private outdoor spaces totaling more than 1,000 square feet, the home offers a rare retreat from city life. Perfectly positioned on an exceptionally private stretch of Halsted-tucked behind Burling, with no alley-this residence enjoys a professionally landscaped oasis just steps from Armitage Avenue's boutiques, Michelin-starred dining, the zoo, and award-winning schools including Oscar Mayer. This is not simply a home-it is Lincoln Park's most exclusive offering.

Punti salienti:

  • Ascensore privato

  • Chef's kitchen with custom cabinetry

  • Pareti di vetro

  • Spectacular 60-foot-wide terrace

  • Bagno di livello spa con doccia a vapore

  • Pavimento in rovere bianco a listoni larghi

  • Lavorazione del legno su misura

  • Abundant built-in storage

  • Tre spazi esterni privati

  • Professionally landscaped oasis

  • Mostra altro Mostra meno
Passeggiata
ID di riferimento:12464608 ID Web:fhnx

Inserito da Justin Lucas | @properties Christie's International Real Estate

Contact by phone:  3129890512
Modulo di contatto e-mail:

Punti salienti:

  • Ascensore privato

  • Chef's kitchen with custom cabinetry

  • Pareti di vetro

  • Spectacular 60-foot-wide terrace

  • Bagno di livello spa con doccia a vapore

  • Pavimento in rovere bianco a listoni larghi

  • Lavorazione del legno su misura

  • Abundant built-in storage

  • Tre spazi esterni privati

  • Professionally landscaped oasis