Beds: 4
Baths: 3 Full | 1 Half

6923 Western Avenue, Washington, District Of Columbia, 20015, USA

Listed by: Kimberly A Cestari | Long & Foster® Real Estate, Inc.

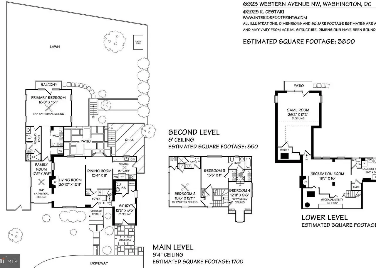
Welcome to 6923 Western Avenue NW - a lovingly maintained and thoughtfully expanded 1940 brick colonial with 3800 square feet spread across 3 levels and ideally situated on the quiet end of Western near Rock Creek Park. Sited on a generous 7,209 sq. ft. fenced, flat lot, the home offers plenty of outdoor space with potential for future expansion-or even a pool. Step inside the foyer to find a gracious living room with fireplace, a dining room with bay window, and a kitchen with direct access to the rear deck. A versatile office with powder room, a light-filled side sunroom, and a main level primary suite with stacked washer/dryer, walk-in closet, and en suite bath (featuring both shower and walk-in tub) complete the first floor. Upstairs, discover three spacious bedrooms, two full baths, and pull-down attic access for additional storage. The walk-out lower level provides abundant space for relaxation or hobbies, offering a cozy recreation room with fireplace, a powder room, a laundry room, and an expansive game room. A circular driveway with off-street parking makes coming and going easy, while the home's location offers the best of both worlds-peaceful surroundings just steps from the trails and beauty of Rock Creek Park, yet conveniently close to shopping, dining, and commuting routes. With its classic colonial character, flexible floor plan, and generous lot, 6923 Western Avenue NW presents a rare opportunity to enjoy both comfort and future potential in one of DC's most desirable settings.
Show More Show Less

Welcome to 6923 Western Avenue NW - a lovingly maintained and thoughtfully expanded 1940 brick colonial with 3800 square feet spread across 3 levels and ideally situated on the quiet end of Western near Rock Creek Park. Sited on a generous 7,209 sq. ft. fenced, flat lot, the home offers plenty of outdoor space with potential for future expansion-or even a pool. Step inside the foyer to find a gracious living room with fireplace, a dining room with bay window, and a kitchen with direct access to the rear deck. A versatile office with powder room, a light-filled side sunroom, and a main level primary suite with stacked washer/dryer, walk-in closet, and en suite bath (featuring both shower and walk-in tub) complete the first floor. Upstairs, discover three spacious bedrooms, two full baths, and pull-down attic access for additional storage. The walk-out lower level provides abundant space for relaxation or hobbies, offering a cozy recreation room with fireplace, a powder room, a laundry room, and an expansive game room. A circular driveway with off-street parking makes coming and going easy, while the home's location offers the best of both worlds-peaceful surroundings just steps from the trails and beauty of Rock Creek Park, yet conveniently close to shopping, dining, and commuting routes. With its classic colonial character, flexible floor plan, and generous lot, 6923 Western Avenue NW presents a rare opportunity to enjoy both comfort and future potential in one of DC's most desirable settings.

Highlights:

  • Fireplaces

  • Bay window in dining room

  • Main level primary suite

  • Stacked washer/dryer

  • Walk-in tub

  • Walk-out lower level

  • Circular driveway

  • Off-street parking

  • Proximity to Rock Creek Park

  • Flexible floor plan

  • Show More Show Less
Reference ID: DCDC2214298 Web ID: iyej

Listed by Kimberly A Cestari | Long & Foster® Real Estate, Inc.

Contact by phone:  8885360216
Contact email form:

Highlights:

  • Fireplaces

  • Bay window in dining room

  • Main level primary suite

  • Stacked washer/dryer

  • Walk-in tub

  • Walk-out lower level

  • Circular driveway

  • Off-street parking

  • Proximity to Rock Creek Park

  • Flexible floor plan