Beds: 4
Baths: 2 Full

Vilsheim / Langenvils, Germany

Listed by: VON POLL IMMOBILIEN Landshut | von Poll Immobilien GmbH

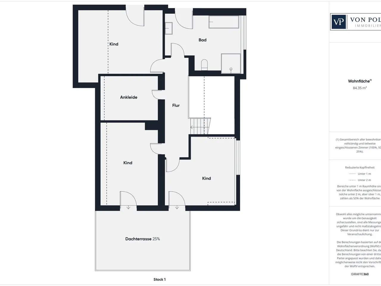
A place that provides a sense of security, radiates clarity and offers space for new stories: This high-quality renovated detached house in Vilsheim / Langenvils combines rural idyll with modern living culture. Nestled in the tranquil natural surroundings of the Vils valley, yet close to the city, this home has a very special aura - harmonious, stylish and authentic. The property was extensively and sensitively renovated in 2021/22. The approx. 209 m² living space comprises six spacious rooms that impress with their open floor plans, natural lighting and clear design language. Fine materials and harmonious color schemes create a warm, inviting atmosphere. The custom-made kitchen by a carpenter with modern appliances and high-quality surfaces is not only a functional focal point, but also a meeting place. Floor-to-ceiling windows seamlessly connect the interior with the exterior - here, life opens up to the garden, to nature, to light. The plot of around 839 m² has been lovingly landscaped: A spacious terrace with fine natural stone, a near-natural swimming pond with wooden deck, outdoor shower and an automatic irrigation system make the outdoor area an oasis of relaxation. The house is also technically impressive with a modern, energy-efficient concept - including photovoltaics, solar support and intelligent control. High-quality windows, smart shading and harmonious fixtures underline the high standards. A well thought-out floor plan, a stylish bathroom with laundry chute, custom-made wardrobes, exposed screed and many other lovely details round off the overall picture. Three outdoor parking spaces and a garage offer ample space for vehicles. The quiet location on the outskirts promises privacy! This house is more than just four walls. It is a way of life. A home that radiates warmth, gives freedom and leaves room for the essentials.
Show More Show Less

A place that provides a sense of security, radiates clarity and offers space for new stories: This high-quality renovated detached house in Vilsheim / Langenvils combines rural idyll with modern living culture. Nestled in the tranquil natural surroundings of the Vils valley, yet close to the city, this home has a very special aura - harmonious, stylish and authentic. The property was extensively and sensitively renovated in 2021/22. The approx. 209 m² living space comprises six spacious rooms that impress with their open floor plans, natural lighting and clear design language. Fine materials and harmonious color schemes create a warm, inviting atmosphere. The custom-made kitchen by a carpenter with modern appliances and high-quality surfaces is not only a functional focal point, but also a meeting place. Floor-to-ceiling windows seamlessly connect the interior with the exterior - here, life opens up to the garden, to nature, to light. The plot of around 839 m² has been lovingly landscaped: A spacious terrace with fine natural stone, a near-natural swimming pond with wooden deck, outdoor shower and an automatic irrigation system make the outdoor area an oasis of relaxation. The house is also technically impressive with a modern, energy-efficient concept - including photovoltaics, solar support and intelligent control. High-quality windows, smart shading and harmonious fixtures underline the high standards. A well thought-out floor plan, a stylish bathroom with laundry chute, custom-made wardrobes, exposed screed and many other lovely details round off the overall picture. Three outdoor parking spaces and a garage offer ample space for vehicles. The quiet location on the outskirts promises privacy! This house is more than just four walls. It is a way of life. A home that radiates warmth, gives freedom and leaves room for the essentials.

Highlights:

  • Custom-made kitchen with high-quality surfaces

  • Floor-to-ceiling windows seamlessly connecting interior with exterior

  • Near-natural swimming pond with wooden deck

  • Photovoltaics and solar support for energy efficiency

  • Spacious terrace with fine natural stone

  • Modern appliances in a functional focal point kitchen

  • Stylish bathroom with laundry chute

  • Exposed screed for a modern aesthetic

  • Custom-made wardrobes for ample storage

  • Quiet location promising privacy

  • Show More Show Less
Reference ID: 25085041 Web ID: apho

Listed by VON POLL IMMOBILIEN Landshut | von Poll Immobilien GmbH

Contact email form:

Highlights:

  • Custom-made kitchen with high-quality surfaces

  • Floor-to-ceiling windows seamlessly connecting interior with exterior

  • Near-natural swimming pond with wooden deck

  • Photovoltaics and solar support for energy efficiency

  • Spacious terrace with fine natural stone

  • Modern appliances in a functional focal point kitchen

  • Stylish bathroom with laundry chute

  • Exposed screed for a modern aesthetic

  • Custom-made wardrobes for ample storage

  • Quiet location promising privacy