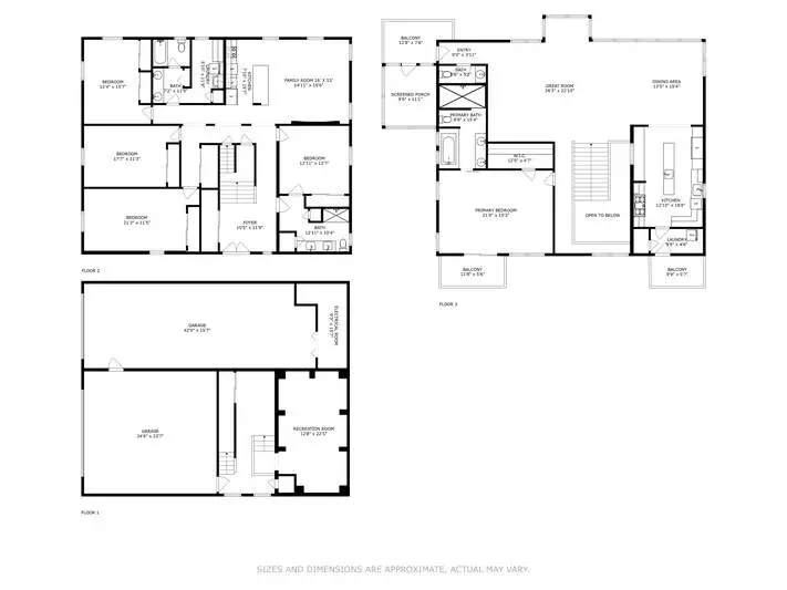
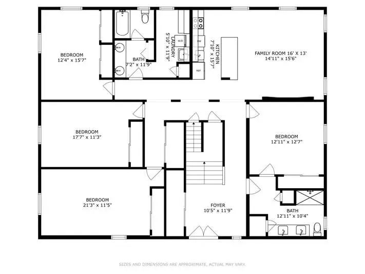
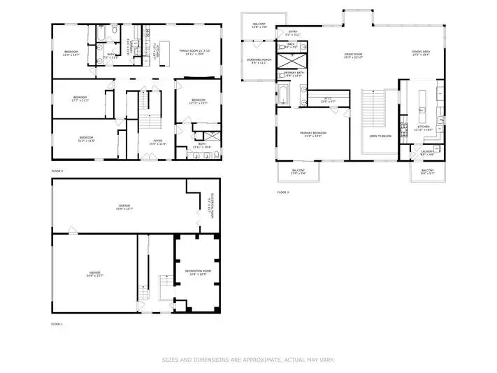
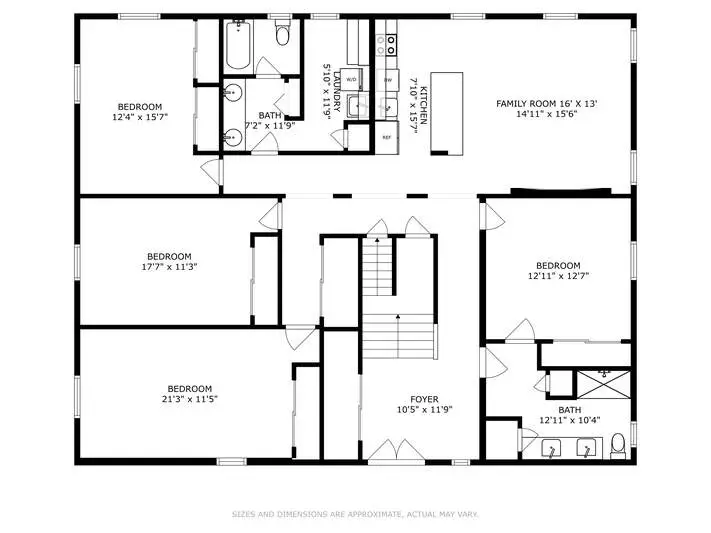
Beds: 5
Baths: 3 Full | 1 Half

2949 Pagoda Path, Stevensville, Michigan, 49127, USA

Listed by: Shelle Dragomer | @properties Christie’s International Real Estate

Create lasting memories w/family & friends in this truly unique home with exceptional contemporary design throughout. Thoughtful expansive floor plan & multi-level layout offers flexibility for guests, entertaining & would be IDEAL for an Airbnb investment property! Home is being offered turn key-furnished, so just unpack your bags and start enjoying! Large windows invite the natural light inside while the multiple covered balconies, gorgeous deck & screened porch offer the serenity of the outdoors. At the heart of the home is a chef inspired kitchen, complimented by a secondary kitchen for entertaining. Primary suite is a spa retreat, complete w/tranquil views, jetted tub & huge luxurious tiled shower. Total of 5 spacious bedrooms & 3.5 baths. Third stall garage is an RV garage w/600 AMP plug-in and is heated & cooled. Use it for jet-skis, boat, etc. or make into a game room. So many possibilities! Lincoln Twp beach is nearby, walk to Tosi's restaurant. Minutes to downtown St. Joseph festivities, shops, restaurants & Lake Michigan beaches. Perfect location for year-round activities.
Show More Show Less

Create lasting memories w/family & friends in this truly unique home with exceptional contemporary design throughout. Thoughtful expansive floor plan & multi-level layout offers flexibility for guests, entertaining & would be IDEAL for an Airbnb investment property! Home is being offered turn key-furnished, so just unpack your bags and start enjoying! Large windows invite the natural light inside while the multiple covered balconies, gorgeous deck & screened porch offer the serenity of the outdoors. At the heart of the home is a chef inspired kitchen, complimented by a secondary kitchen for entertaining. Primary suite is a spa retreat, complete w/tranquil views, jetted tub & huge luxurious tiled shower. Total of 5 spacious bedrooms & 3.5 baths. Third stall garage is an RV garage w/600 AMP plug-in and is heated & cooled. Use it for jet-skis, boat, etc. or make into a game room. So many possibilities! Lincoln Twp beach is nearby, walk to Tosi's restaurant. Minutes to downtown St. Joseph festivities, shops, restaurants & Lake Michigan beaches. Perfect location for year-round activities.

Highlights:

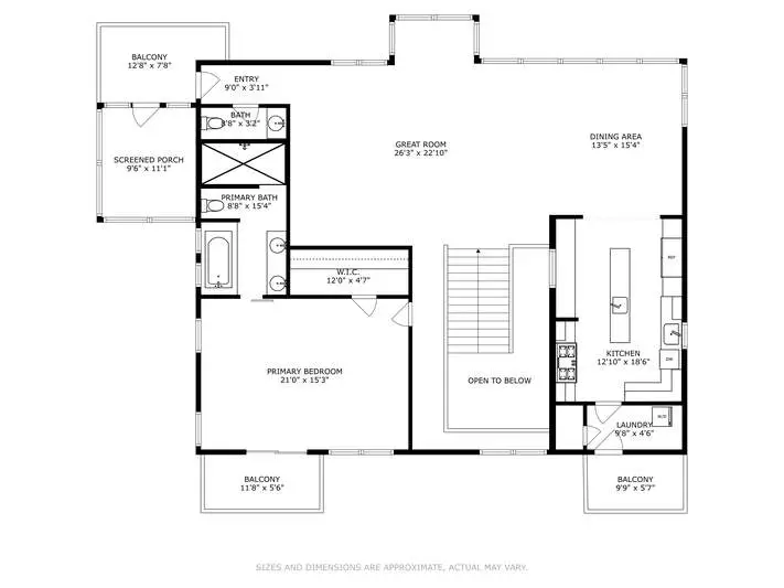
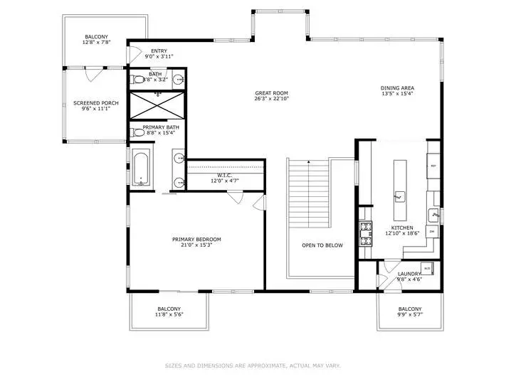
  • Chef-inspired kitchen with secondary entertaining kitchen

  • Spa-like primary suite with jetted tub and luxurious tiled shower

  • Expansive floor plan with multi-level layout

  • Large windows welcoming natural light

  • Multiple covered balconies, deck, and screened porch

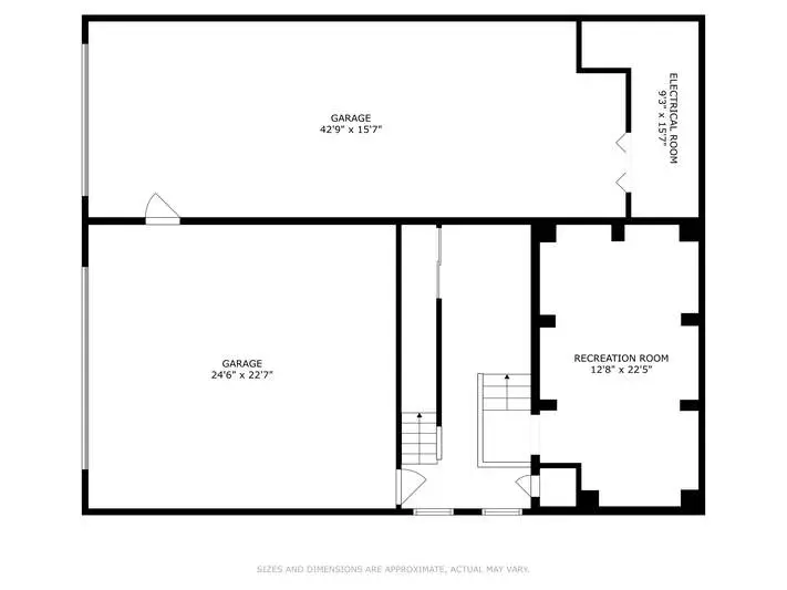
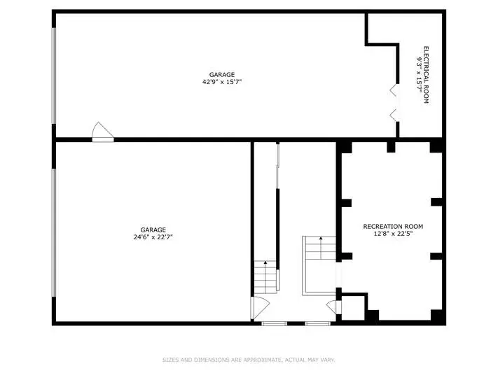
  • Third stall garage with 600 AMP plug-in, heated and cooled

  • RV garage can also be used for recreational vehicles or game room

  • Close proximity to Lincoln Twp beach and Tosi's restaurant

  • Minutes to downtown St. Joseph and Lake Michigan beaches

  • Perfect location for year-round activities

  • Show More Show Less
Walk-Thru
Reference ID: 25035714 Web ID: hxdu

Listed by Shelle Dragomer | @properties Christie’s International Real Estate

Contact email form:

Highlights:

  • Chef-inspired kitchen with secondary entertaining kitchen

  • Spa-like primary suite with jetted tub and luxurious tiled shower

  • Expansive floor plan with multi-level layout

  • Large windows welcoming natural light

  • Multiple covered balconies, deck, and screened porch

  • Third stall garage with 600 AMP plug-in, heated and cooled

  • RV garage can also be used for recreational vehicles or game room

  • Close proximity to Lincoln Twp beach and Tosi's restaurant

  • Minutes to downtown St. Joseph and Lake Michigan beaches

  • Perfect location for year-round activities

Continue Exploring Related Collections