Beds: 4
Baths: 3 Full | 2 Half

261 North Street, Ridgefield, Connecticut, 06877, USA

Listed by: William Raveis Real Estate

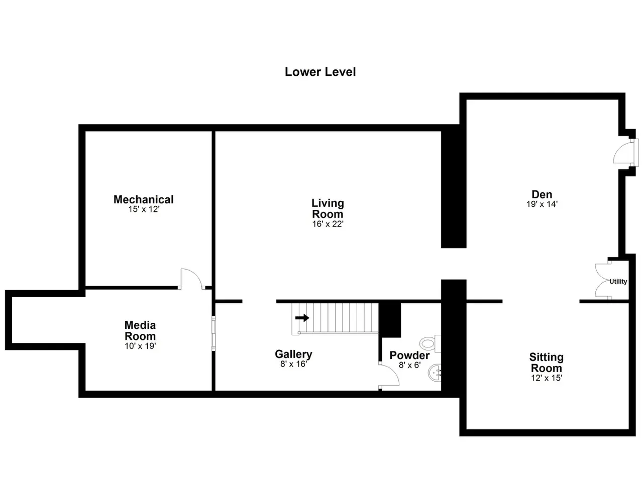
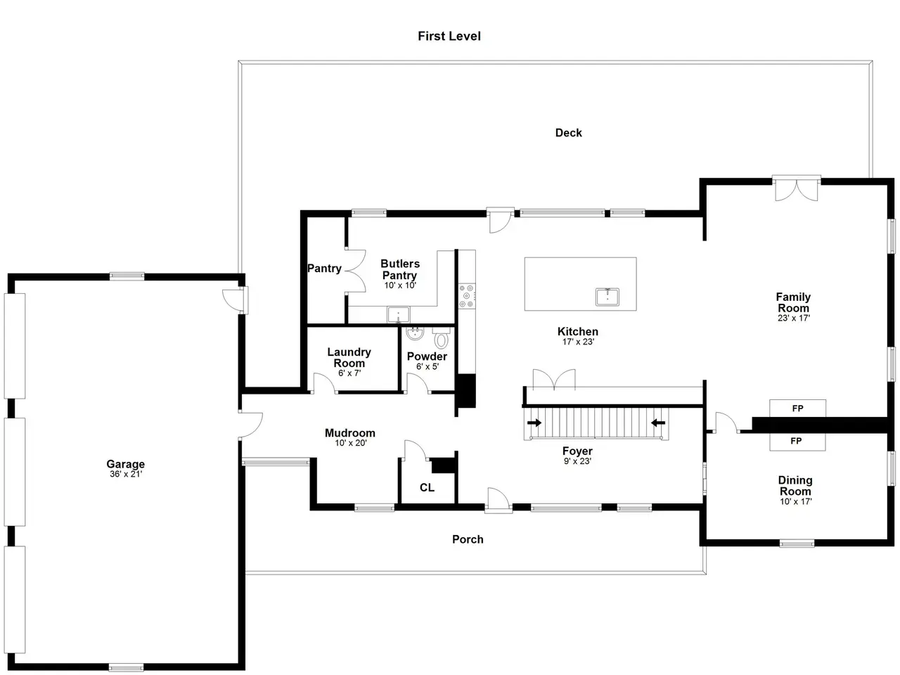
New construction...ready to move in...near the heart of downtown Ridgefield. A sophisticated design of modern open living, heralded by walls of glass & flooded by natural light. Step inside to an open sleek staircase grounded by 5" white oak flooring, flowing into an eat-in kitchen that is a culinary haven...Impressive oversized quartz island, Thermador appliances, counter seating for 5+, and 2 built-in microwave ovens lead to the additional caterer's prep/coffee bar room where you can become your own barista. Includes ample counter space, a wine cooler, cabinetry, & walk-in pantry. Step back out to the living & dining rooms that merge seamlessly, highlighted by a two-sided gas fireplace providing ambiance. A 2nd full laundry, half bath, & mud room area complete the main floor. Upstairs you'll find a primary bedroom with spa-like bath & two walk-in closets. Three additional bedrooms, a second laundry room, & 2 full baths encompass the second level. Movie night takes place in the media/family room plumbed for a wet bar, a game room/fitness gym, half bath, & a future walk-in wine-tasting room. Massive outdoor deck right off the kitchen ideal for sitting around a fire pit with friends. 3-car oversized att garage with charging station. Just a short drive to historic downtown RIDGEFIELD consistently ranked by CT magazine as "One of the Best Places to Live". Sought after award-winning schools. Convenient I-684 commute, 70 min NYC.
Show More Show Less

New construction...ready to move in...near the heart of downtown Ridgefield. A sophisticated design of modern open living, heralded by walls of glass & flooded by natural light. Step inside to an open sleek staircase grounded by 5" white oak flooring, flowing into an eat-in kitchen that is a culinary haven...Impressive oversized quartz island, Thermador appliances, counter seating for 5+, and 2 built-in microwave ovens lead to the additional caterer's prep/coffee bar room where you can become your own barista. Includes ample counter space, a wine cooler, cabinetry, & walk-in pantry. Step back out to the living & dining rooms that merge seamlessly, highlighted by a two-sided gas fireplace providing ambiance. A 2nd full laundry, half bath, & mud room area complete the main floor. Upstairs you'll find a primary bedroom with spa-like bath & two walk-in closets. Three additional bedrooms, a second laundry room, & 2 full baths encompass the second level. Movie night takes place in the media/family room plumbed for a wet bar, a game room/fitness gym, half bath, & a future walk-in wine-tasting room. Massive outdoor deck right off the kitchen ideal for sitting around a fire pit with friends. 3-car oversized att garage with charging station. Just a short drive to historic downtown RIDGEFIELD consistently ranked by CT magazine as "One of the Best Places to Live". Sought after award-winning schools. Convenient I-684 commute, 70 min NYC.

Highlights:

  • Walls of glass

  • White oak flooring

  • Thermador appliances

  • Oversized quartz island

  • Two-sided gas fireplace

  • Wine cooler

  • Spa-like bath

  • Outdoor deck

  • Three-car garage

  • Media/family room

  • Show More Show Less
Reference ID: 24099349 Web ID: qgnc

Contact Agent | William Raveis Real Estate

Contact email form:

Highlights:

  • Walls of glass

  • White oak flooring

  • Thermador appliances

  • Oversized quartz island

  • Two-sided gas fireplace

  • Wine cooler

  • Spa-like bath

  • Outdoor deck

  • Three-car garage

  • Media/family room