Beds: 0
Baths: 5 Full

Meißen, Germany

Listed by: VON POLL IMMOBILIEN Radebeul | von Poll Immobilien GmbH

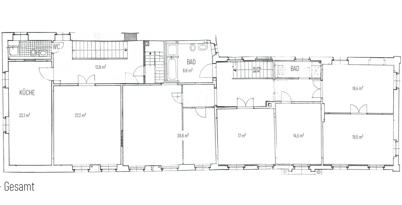
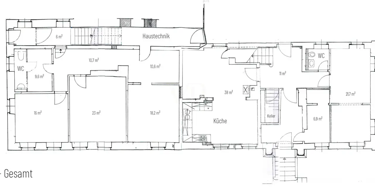
This special listed property in a quiet, attractive and green hillside location on the outskirts of Meissen not only offers a spacious park for relaxation with a great view over the Elbe valley, but also high-quality renovated building fabric. The former winery looks back on a long history dating back to the 16th century. The current owners have extensively renovated the building since 2001. Among other things, the roof was re-roofed, the windows and interior doors renewed, new tasteful bathrooms installed and the parquet and floorboards refurbished. The media connections and electrical installations were also renewed. A new high-quality condensing boiler and fiber optic connection have been installed in the house for three years. It is particularly remarkable how sensitively historical elements have been combined with modern living comfort. The representative rooms are adorned with original stucco elements, stylish wooden doors, detailed door handles and fine oak parquet flooring. The building is surrounded by a spacious park with old trees and shrubs such as sweet chestnut, ash, oak and magnolia, as well as elder bushes, lilacs and dog roses. Sandstone steps and walls, a water fountain and a historic viewing platform with a view over the Elbe valley give the estate its very special charm. Despite the quiet and attractive location on the outskirts of Meissen, the picturesque old town with its numerous shopping opportunities is just a few minutes' walk away. The Meißen S-Bahn station is also within easy walking distance. There are currently 2 apartments and a commercial unit (office) in the property, one of which is vacant. Apartment 1: ground floor and upper floor on the Elbe side, 188 sqm, rented - oldest part of the building over 2 floors with its own entrance - 5 rooms - 1 bathroom with shower and bathtub, 1 bathroom with shower and 1 guest WC (all with daylight) - some rooms with real wood parquet and stucco elements - old vaulted cellar Apartment 2: street-side upper floor, 106m², vacant since 03/2025 - own staircase - 3 rooms with a spacious eat-in kitchen - 1 bathroom with shower (daylight) - some rooms with real wood parquet and stucco elements - direct access to the attic Office: street-side ground floor, 88m², rented - 3 rooms with 2 large anterooms - 1 WC with daylight A storage shed for bicycles and garden tools is available in the garden. It would be our pleasure to present this exceptional property to you at a viewing appointment.
Show More Show Less

This special listed property in a quiet, attractive and green hillside location on the outskirts of Meissen not only offers a spacious park for relaxation with a great view over the Elbe valley, but also high-quality renovated building fabric. The former winery looks back on a long history dating back to the 16th century. The current owners have extensively renovated the building since 2001. Among other things, the roof was re-roofed, the windows and interior doors renewed, new tasteful bathrooms installed and the parquet and floorboards refurbished. The media connections and electrical installations were also renewed. A new high-quality condensing boiler and fiber optic connection have been installed in the house for three years. It is particularly remarkable how sensitively historical elements have been combined with modern living comfort. The representative rooms are adorned with original stucco elements, stylish wooden doors, detailed door handles and fine oak parquet flooring. The building is surrounded by a spacious park with old trees and shrubs such as sweet chestnut, ash, oak and magnolia, as well as elder bushes, lilacs and dog roses. Sandstone steps and walls, a water fountain and a historic viewing platform with a view over the Elbe valley give the estate its very special charm. Despite the quiet and attractive location on the outskirts of Meissen, the picturesque old town with its numerous shopping opportunities is just a few minutes' walk away. The Meißen S-Bahn station is also within easy walking distance. There are currently 2 apartments and a commercial unit (office) in the property, one of which is vacant. Apartment 1: ground floor and upper floor on the Elbe side, 188 sqm, rented - oldest part of the building over 2 floors with its own entrance - 5 rooms - 1 bathroom with shower and bathtub, 1 bathroom with shower and 1 guest WC (all with daylight) - some rooms with real wood parquet and stucco elements - old vaulted cellar Apartment 2: street-side upper floor, 106m², vacant since 03/2025 - own staircase - 3 rooms with a spacious eat-in kitchen - 1 bathroom with shower (daylight) - some rooms with real wood parquet and stucco elements - direct access to the attic Office: street-side ground floor, 88m², rented - 3 rooms with 2 large anterooms - 1 WC with daylight A storage shed for bicycles and garden tools is available in the garden. It would be our pleasure to present this exceptional property to you at a viewing appointment.

Highlights:

  • Original stucco elements

  • Oak parquet flooring

  • Historic viewing platform with Elbe Valley view

  • Sandstone steps and walls

  • Stylish wooden doors

  • Show More Show Less
Reference ID: 25229021 Web ID: hjgu

Listed by VON POLL IMMOBILIEN Radebeul | von Poll Immobilien GmbH

Contact email form:

Highlights:

  • Original stucco elements

  • Oak parquet flooring

  • Historic viewing platform with Elbe Valley view

  • Sandstone steps and walls

  • Stylish wooden doors

Continue Exploring Related Collections