Beds: 5
Baths: 6 Full

3918 Clarks Meadow Drive, Glenwood, Maryland, 21738, USA

Listed by: Missy Aldave | Long & Foster® Real Estate, Inc.

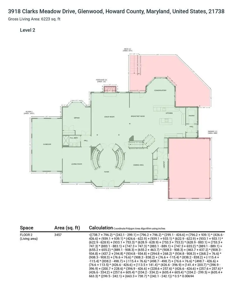
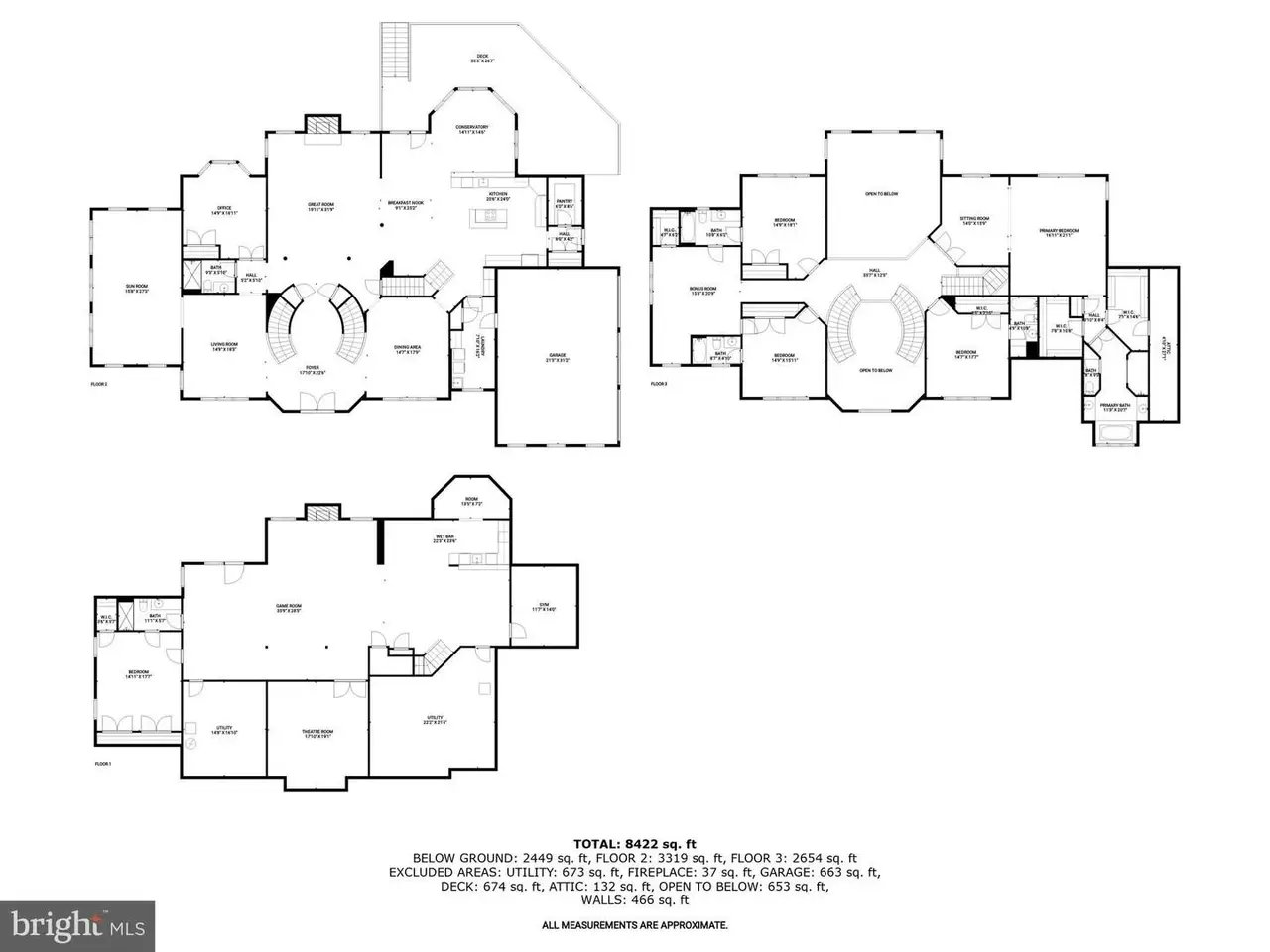
Welcome to 3918 Clarks Meadow Drive, a custom-built Douglas Home in the prestigious Clarks Meadow community. This thoughtfully designed estate is richly appointed with exceptional details including lit tray ceilings, elegant millwork, stately columns, custom closet organizers, and a gracious open floor plan. A highlight of this home is the spectacular outdoor living space, set on a lush 1.13-acre featuring an inground pool, expansive custom patios, a deck, and professionally landscaped grounds with sweeping views of the countryside. The grand two-story foyer, with dual curved staircases, is flanked by formal living and dining rooms accented with classic moldings. The living room opens to a light-filled sunroom, while the gourmet kitchen is a chef's dream, complete with an induction cooktop, double convection wall oven, microwave drawer, Sub-Zero refrigerator, granite countertops, decorative backsplash, soft-close and display cabinetry, a center island with breakfast bar, butler's pantry with wine fridge, walk-in pantry, and a sunlit breakfast room. A stunning conservatory with rounded walls and access to the deck further enhances the entertaining flow. The two-story great room, anchored by a stacked-stone fireplace, creates a warm and inviting gathering space. A private office with French doors, a full bath, laundry room, and access to the three-car garage complete the main level. Upstairs, the luxurious primary suite features a sitting room, two walk-in closets, one with attic storage and a spa-inspired bath with dual vanities, a glass-enclosed shower, and a soaking tub. Three additional ensuite bedrooms and a spacious bonus room complete the upper level. The fully finished lower level is designed for leisure and entertainment with a game room and wet bar with wine nook, a media room, exercise room, additional ensuite bedroom with walk-in closet, and abundant storage. This extraordinary home seamlessly blends elegance and comfort, offering luxurious interiors and resort-style outdoor living in one of the area's most sought-after communities.
Show More Show Less

Welcome to 3918 Clarks Meadow Drive, a custom-built Douglas Home in the prestigious Clarks Meadow community. This thoughtfully designed estate is richly appointed with exceptional details including lit tray ceilings, elegant millwork, stately columns, custom closet organizers, and a gracious open floor plan. A highlight of this home is the spectacular outdoor living space, set on a lush 1.13-acre featuring an inground pool, expansive custom patios, a deck, and professionally landscaped grounds with sweeping views of the countryside. The grand two-story foyer, with dual curved staircases, is flanked by formal living and dining rooms accented with classic moldings. The living room opens to a light-filled sunroom, while the gourmet kitchen is a chef's dream, complete with an induction cooktop, double convection wall oven, microwave drawer, Sub-Zero refrigerator, granite countertops, decorative backsplash, soft-close and display cabinetry, a center island with breakfast bar, butler's pantry with wine fridge, walk-in pantry, and a sunlit breakfast room. A stunning conservatory with rounded walls and access to the deck further enhances the entertaining flow. The two-story great room, anchored by a stacked-stone fireplace, creates a warm and inviting gathering space. A private office with French doors, a full bath, laundry room, and access to the three-car garage complete the main level. Upstairs, the luxurious primary suite features a sitting room, two walk-in closets, one with attic storage and a spa-inspired bath with dual vanities, a glass-enclosed shower, and a soaking tub. Three additional ensuite bedrooms and a spacious bonus room complete the upper level. The fully finished lower level is designed for leisure and entertainment with a game room and wet bar with wine nook, a media room, exercise room, additional ensuite bedroom with walk-in closet, and abundant storage. This extraordinary home seamlessly blends elegance and comfort, offering luxurious interiors and resort-style outdoor living in one of the area's most sought-after communities.

Highlights:

  • Lit tray ceilings

  • Inground pool & custom patios

  • Gourmet kitchen with high-end appliances

  • Stacked-stone fireplace

  • Spa-inspired primary bath

  • Fully finished lower level with media room

  • Grand two-story foyer

  • Conservatory with access to deck

  • Stately columns

  • Custom closet organizers

  • Show More Show Less
Reference ID: MDHW2058490 Web ID: ptsm

Listed by Missy Aldave | Long & Foster® Real Estate, Inc.

Contact by phone:  8885360216
Contact email form:

Highlights:

  • Lit tray ceilings

  • Inground pool & custom patios

  • Gourmet kitchen with high-end appliances

  • Stacked-stone fireplace

  • Spa-inspired primary bath

  • Fully finished lower level with media room

  • Grand two-story foyer

  • Conservatory with access to deck

  • Stately columns

  • Custom closet organizers