Beds: 4
Baths: 4 Full | 1 Half

327 Lucille Street, Fairfield, Connecticut, 06825, USA

Listed by: Sarah Pritchard | William Raveis Real Estate

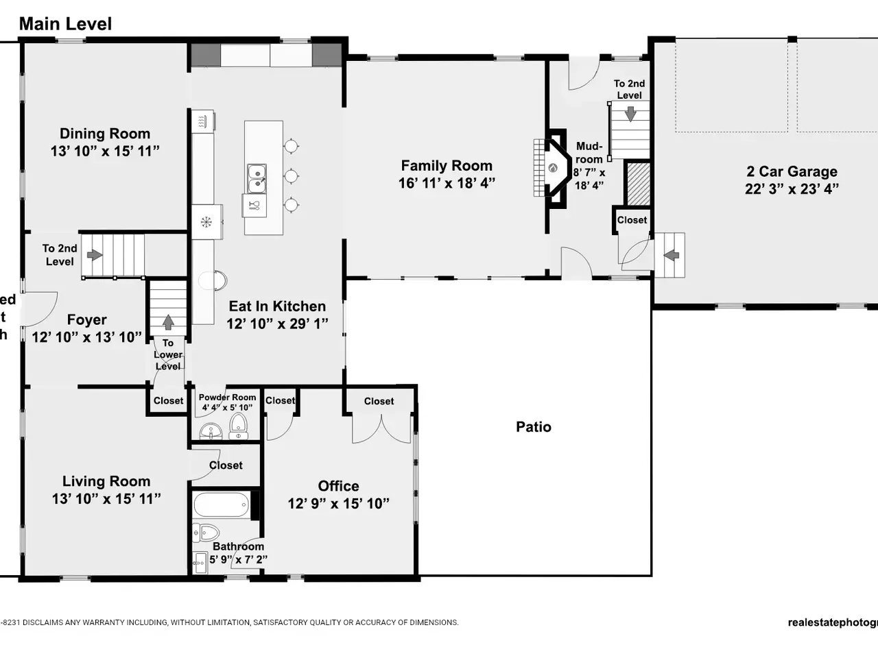
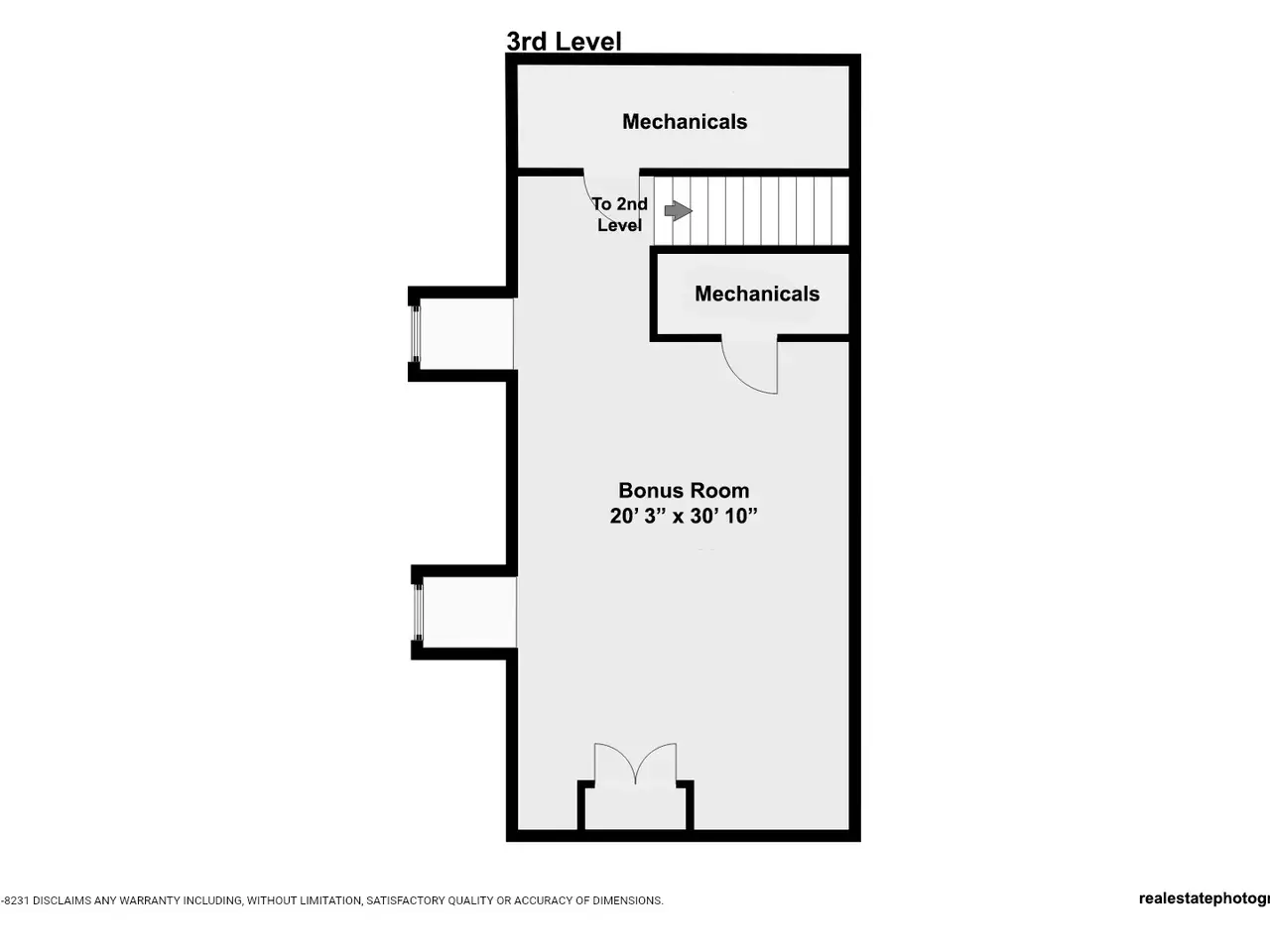
Few things are more inviting than a front porch, and 327 Lucille St delivers that and more in terms of curb appeal, which this home has in spades. This Colonial pairs classic architectural beauty with almost 5,000 sq ft across 4 levels, offering 4 bedrooms, an office, 4.5 baths, 2 car garage, and a fenced-in .46 acre yard. Inside, the foyer is flanked by the dining and living rooms, both with hardwood floors and custom millwork. The eat-in kitchen boasts granite counters, double ovens, SS appliances, an island, breakfast nook, and clear views into the sun-lit family room. A half bath and an en-suite guest room/office completes the first floor. Upstairs, the primary bedroom features a vaulted ceiling, walk-in closet, and a spacious, spa-inspired bathroom. A 2nd en-suite bedroom, 2 additional bedrooms with a jack-and-jill bathroom, and the laundry room completes the second floor. The finished 600 sq ft third floor bonus room offers endless possibilities, while the partially finished LL offers plenty of room for a gym, game room or workshop. The backyard is an entertainer's dream, perfect for dining al fresco while enjoying the peaceful privacy. This neighborhood is known for its wide, tree-lined streets, welcoming community & unbeatable location! Walk to the elementary school, park & library, explore Lake Mohegan & Black Rock Tpke, or enjoy the beaches or downtown, all minutes away. 327 Lucille St is a statement of refined living, where convenience and timeless design collide.
Show More Show Less

Few things are more inviting than a front porch, and 327 Lucille St delivers that and more in terms of curb appeal, which this home has in spades. This Colonial pairs classic architectural beauty with almost 5,000 sq ft across 4 levels, offering 4 bedrooms, an office, 4.5 baths, 2 car garage, and a fenced-in .46 acre yard. Inside, the foyer is flanked by the dining and living rooms, both with hardwood floors and custom millwork. The eat-in kitchen boasts granite counters, double ovens, SS appliances, an island, breakfast nook, and clear views into the sun-lit family room. A half bath and an en-suite guest room/office completes the first floor. Upstairs, the primary bedroom features a vaulted ceiling, walk-in closet, and a spacious, spa-inspired bathroom. A 2nd en-suite bedroom, 2 additional bedrooms with a jack-and-jill bathroom, and the laundry room completes the second floor. The finished 600 sq ft third floor bonus room offers endless possibilities, while the partially finished LL offers plenty of room for a gym, game room or workshop. The backyard is an entertainer's dream, perfect for dining al fresco while enjoying the peaceful privacy. This neighborhood is known for its wide, tree-lined streets, welcoming community & unbeatable location! Walk to the elementary school, park & library, explore Lake Mohegan & Black Rock Tpke, or enjoy the beaches or downtown, all minutes away. 327 Lucille St is a statement of refined living, where convenience and timeless design collide.

Highlights:

  • Custom millwork

  • Granite counters

  • Double ovens

  • Vaulted ceiling

  • Spa-inspired bathroom

  • Finished bonus room

  • Entertainer's backyard

  • Show More Show Less
Reference ID: 24127397 Web ID: kxyi

Listed by Sarah Pritchard | William Raveis Real Estate

Contact by phone:  203-414-5571
Contact email form:

Highlights:

  • Custom millwork

  • Granite counters

  • Double ovens

  • Vaulted ceiling

  • Spa-inspired bathroom

  • Finished bonus room

  • Entertainer's backyard