Beds: 5
Baths: 3 Full

403 East Pine Avenue, El Segundo, California, 90245, USA

Listed by: Bill Ruane | Estate Properties

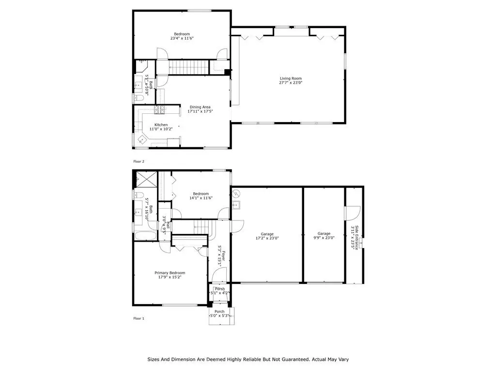
Located on a coveted corner lot in prime location, 403-407 E. Pine offers an incredible blend of space, function, and charm. 403 E. Pine is a two-story home that features two generously sized bedrooms on the main floor, each with ample closet space, connected by a Jack-and-Jill bathroom with both a separate tub and shower. Additional storage can be found under the stairs for added convenience. The property includes an oversized garage with washer/dryer hookups, abundant storage, and a wide driveway that accommodates several cars side-by-side. Upstairs, you’ll find a third bedroom and another bathroom, along with an updated kitchen offering plenty of cabinet space and a dishwasher. A dedicated dining room sits next to a picture window with sweeping views of the park, while the expansive living room is filled with tremendous natural light from multiple oversized windows that frame the park views beautifully. Next door, 407 E. Pine offers its own inviting layout with a private yard and a kitchen filled with natural light, abundant cabinets, and generous storage. The cozy living room provides a comfortable gathering space, while the bathroom features a combined tub and shower. Two private bedrooms offer quiet retreats, and the property includes a private storage shed along with a driveway large enough to accommodate multiple cars. This is a rare chance to own a spacious, well-situated duplex in one of El Segundo’s most desirable locations.
Show More Show Less

Located on a coveted corner lot in prime location, 403-407 E. Pine offers an incredible blend of space, function, and charm. 403 E. Pine is a two-story home that features two generously sized bedrooms on the main floor, each with ample closet space, connected by a Jack-and-Jill bathroom with both a separate tub and shower. Additional storage can be found under the stairs for added convenience. The property includes an oversized garage with washer/dryer hookups, abundant storage, and a wide driveway that accommodates several cars side-by-side. Upstairs, you’ll find a third bedroom and another bathroom, along with an updated kitchen offering plenty of cabinet space and a dishwasher. A dedicated dining room sits next to a picture window with sweeping views of the park, while the expansive living room is filled with tremendous natural light from multiple oversized windows that frame the park views beautifully. Next door, 407 E. Pine offers its own inviting layout with a private yard and a kitchen filled with natural light, abundant cabinets, and generous storage. The cozy living room provides a comfortable gathering space, while the bathroom features a combined tub and shower. Two private bedrooms offer quiet retreats, and the property includes a private storage shed along with a driveway large enough to accommodate multiple cars. This is a rare chance to own a spacious, well-situated duplex in one of El Segundo’s most desirable locations.

Highlights:

  • Custom cabinetry

  • Oversized garage with storage

  • Updated kitchen with dishwasher Picture window with park views

  • Expansive living room with natural light

  • Show More Show Less
Walk-Thru
Reference ID: SB25191101 Web ID: jzkf

Listed by Bill Ruane | Estate Properties

Contact by phone:  3108772374
Contact email form:

Highlights:

  • Custom cabinetry

  • Oversized garage with storage

  • Updated kitchen with dishwasher Picture window with park views

  • Expansive living room with natural light