Beds: 4
Baths: 4 Full | 1 Half

1851 North Halsted Street #2, Chicago, Illinois, 60614, USA

Listed by: Justin Lucas | @properties Christie’s International Real Estate

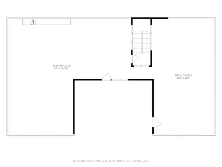
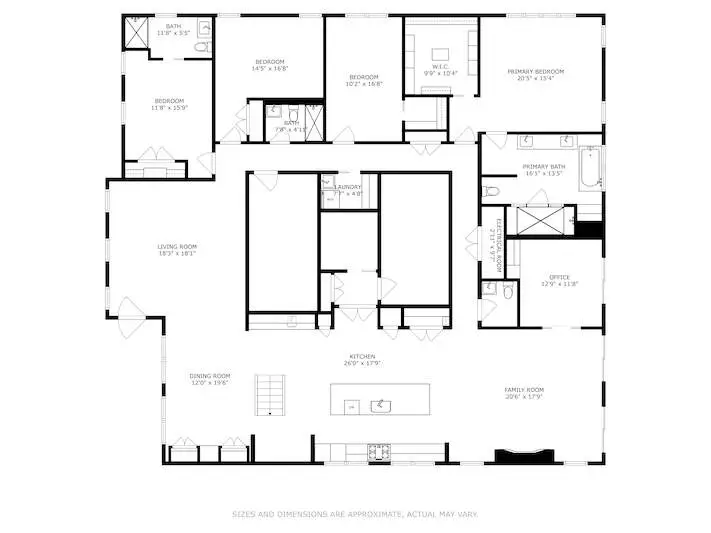
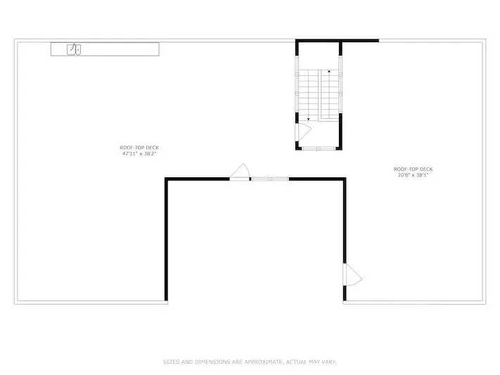
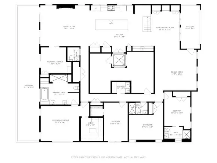
Step directly from your private elevator into nearly 4,000 square feet of refined, single-level luxury, where craftsmanship and comfort come together in perfect harmony. Every detail of this exceptional four-bedroom, four-and-a-half-bath residence has been thoughtfully designed to balance timeless elegance with modern conveniences. The expansive chef's kitchen anchors the home-a true centerpiece with custom cabinetry, a butler's pantry, double ovens, and professional-grade appliances-all opening seamlessly to a dramatic great room framed by walls of glass and two sliding glass doors. A 60-foot-wide terrace extends the living space outdoors, creating a breathtaking setting for entertaining or simply unwinding. The primary suite is a serene retreat-a dark and moody sanctuary designed for ultimate rest and relaxation. Ideal for sleeping in and escaping the bustle of the city, it features a spa-caliber ensuite bath with heated floors, a steam shower, and an oversized soaking tub that invites total rejuvenation. Additional highlights include wide-plank white oak flooring, bespoke millwork, abundant built-ins, a laundry room, and an attached two-car garage. With over 1,000 square feet of private outdoor space spread across three terraces, this home offers a rare combination of privacy and connection to the outdoors. Perfectly situated in Lincoln Park, this residence enjoys a professionally landscaped oasis just steps from Armitage Avenue's boutiques, Michelin-starred dining, the zoo, and top-rated schools including Oscar Mayer.
Show More Show Less

Step directly from your private elevator into nearly 4,000 square feet of refined, single-level luxury, where craftsmanship and comfort come together in perfect harmony. Every detail of this exceptional four-bedroom, four-and-a-half-bath residence has been thoughtfully designed to balance timeless elegance with modern conveniences. The expansive chef's kitchen anchors the home-a true centerpiece with custom cabinetry, a butler's pantry, double ovens, and professional-grade appliances-all opening seamlessly to a dramatic great room framed by walls of glass and two sliding glass doors. A 60-foot-wide terrace extends the living space outdoors, creating a breathtaking setting for entertaining or simply unwinding. The primary suite is a serene retreat-a dark and moody sanctuary designed for ultimate rest and relaxation. Ideal for sleeping in and escaping the bustle of the city, it features a spa-caliber ensuite bath with heated floors, a steam shower, and an oversized soaking tub that invites total rejuvenation. Additional highlights include wide-plank white oak flooring, bespoke millwork, abundant built-ins, a laundry room, and an attached two-car garage. With over 1,000 square feet of private outdoor space spread across three terraces, this home offers a rare combination of privacy and connection to the outdoors. Perfectly situated in Lincoln Park, this residence enjoys a professionally landscaped oasis just steps from Armitage Avenue's boutiques, Michelin-starred dining, the zoo, and top-rated schools including Oscar Mayer.

Highlights:

  • Private elevator

  • Chef's kitchen with custom cabinetry

  • Walls of glass

  • 60-foot-wide terrace

  • Spa-caliber ensuite bath

  • Wide-plank white oak flooring

  • Bespoke millwork

  • Abundant built-ins

  • Attached two-car garage

  • Over 1,000 sq ft of private outdoor space

  • Show More Show Less
Walk-Thru
Reference ID: 12499175 Web ID: dpeq

Listed by Justin Lucas | @properties Christie’s International Real Estate

Contact by phone:  3129890512
Contact email form:

Highlights:

  • Private elevator

  • Chef's kitchen with custom cabinetry

  • Walls of glass

  • 60-foot-wide terrace

  • Spa-caliber ensuite bath

  • Wide-plank white oak flooring

  • Bespoke millwork

  • Abundant built-ins

  • Attached two-car garage

  • Over 1,000 sq ft of private outdoor space