Beds: 3
Baths: 3 Full

11 Coates Avenue, Auckland, Auckland, 1071, New Zealand

Listed by: Carl Watkins | Barfoot & Thompson

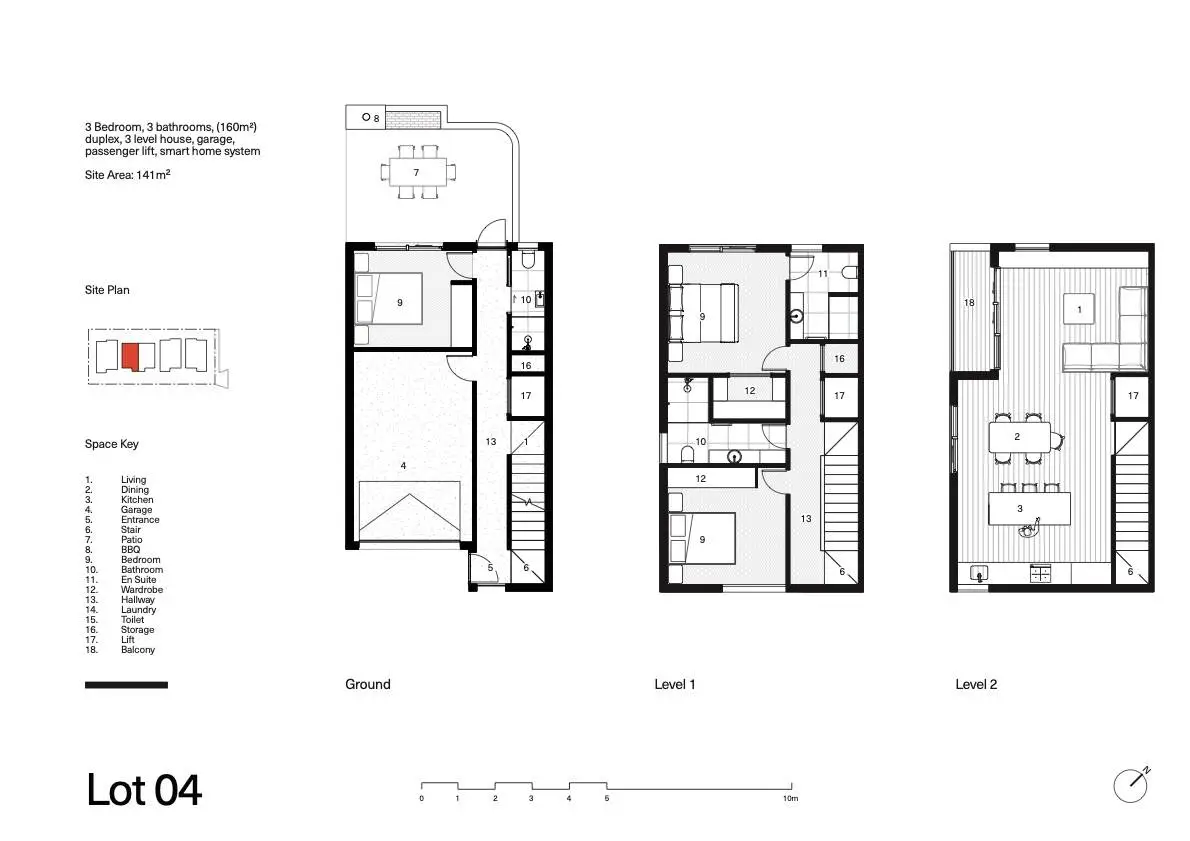
Welcome to Eleven Coates, an exclusive collection of five meticulously crafted luxury homes overlooking Hobson Bay and the Auckland city skyline. Nestled in Orakei's prestigious Fenton Circus area, these architecturally designedresidences offer a blend of sophistication, modernity, and breathtaking views.Key Features:• Elevated N/W corner balcony with beautiful views and all-day sun• Three bedrooms, three bathrooms, and a separate laundry• Passenger Lift• 160m2 of luxurious interior space on a 141m2 land area (approx.)• Three-level standalone design with premium finishes• Brick cladding for a strong earthy presence• 2.7m ceilings• Smart home technology with customizable upgrades• High-end kitchen with Natural Stone benchtops and Vidaspace oak joinery• Expansive open-plan living leading to a private northeast aspect courtyard with a built fire/bbq area.• Integrated HVAC system and premium double-glazing for year-round comfort• Gated community with a garage and internal accessLocation Highlights:• Steps from Coates Avenue Village, offering boutique cafes and local amenities• Minutes to Orakei Marina and the serene Fenton Circus parkEasy access to Mission Bay, St. Heliers, Parnell, and Auckland CBDDesigned by Bare Architecture, renowned with over 40 years of combined expertise in bespoke homebuilding, Eleven Coates promises a lifestyle of luxury and convenience, with completion scheduled for Q2 2026.Secure your dream home today in this vibrant urban oasis.Contact Carl Watkins for more details: c.watkins@barfoot.co.nz | 021 424 736Visit elevencoates.nz for more information.
Show More Show Less

Welcome to Eleven Coates, an exclusive collection of five meticulously crafted luxury homes overlooking Hobson Bay and the Auckland city skyline. Nestled in Orakei's prestigious Fenton Circus area, these architecturally designedresidences offer a blend of sophistication, modernity, and breathtaking views.Key Features:• Elevated N/W corner balcony with beautiful views and all-day sun• Three bedrooms, three bathrooms, and a separate laundry• Passenger Lift• 160m2 of luxurious interior space on a 141m2 land area (approx.)• Three-level standalone design with premium finishes• Brick cladding for a strong earthy presence• 2.7m ceilings• Smart home technology with customizable upgrades• High-end kitchen with Natural Stone benchtops and Vidaspace oak joinery• Expansive open-plan living leading to a private northeast aspect courtyard with a built fire/bbq area.• Integrated HVAC system and premium double-glazing for year-round comfort• Gated community with a garage and internal accessLocation Highlights:• Steps from Coates Avenue Village, offering boutique cafes and local amenities• Minutes to Orakei Marina and the serene Fenton Circus parkEasy access to Mission Bay, St. Heliers, Parnell, and Auckland CBDDesigned by Bare Architecture, renowned with over 40 years of combined expertise in bespoke homebuilding, Eleven Coates promises a lifestyle of luxury and convenience, with completion scheduled for Q2 2026.Secure your dream home today in this vibrant urban oasis.Contact Carl Watkins for more details: c.watkins@barfoot.co.nz | 021 424 736Visit elevencoates.nz for more information.

Highlights:

  • Natural Stone benchtops and Vidaspace oak joinery

  • Passenger lift

  • Smart home technology

  • Brick cladding

  • Integrated HVAC system

  • Premium double-glazing

  • Elevated N/W corner balcony

  • Three-level standalone design

  • Expansive open-plan living with built fire/bbq area

  • Gated community with garage

  • Show More Show Less
Reference ID: 912104 Web ID: xtzw

Listed by Carl Watkins | Barfoot & Thompson

Contact email form:

Highlights:

  • Natural Stone benchtops and Vidaspace oak joinery

  • Passenger lift

  • Smart home technology

  • Brick cladding

  • Integrated HVAC system

  • Premium double-glazing

  • Elevated N/W corner balcony

  • Three-level standalone design

  • Expansive open-plan living with built fire/bbq area

  • Gated community with garage