Beds:3
Baths:2 Full | 1 Half

12 LARKIN LN LOT 12, BLOCK 26 #LOT 12, BL, Crozet, Virginia, 22932, USA

Listed by: Howard Hanna Real Estate Services

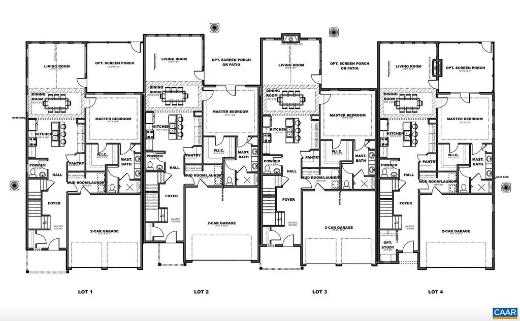
The Afton Villa floorpan in the newest section of Old Trail Village, right off Golf Drive! Located just off Golf Drive, walking distance to the golf course & restaurants with a pocket park/greenspace behind, this section has so much to offer! This END UNIT Afton Villa provides the ease of main Level living with an open design, private owner's suite, spacious Great Room and inviting Kitchen & Dining Room, Screened-in porch, plus a private Study! The second floor offers 2 additional bedrooms, full bath and a loft area - great for added space! Enjoy our thoughtfully included features, 2x6 exterior walls, custom Mahogany front doors and the opportunity to hand select all your finishes alongside our talented Design Coordinator! Our current Model home is the Afton floorplan offering a great opportunity to tour the plan in person. Start planning your new home for Fall 2026 move-in! Granite Counter, Maple Cabinets, Painted Cabinets
Show More Show Less

The Afton Villa floorpan in the newest section of Old Trail Village, right off Golf Drive! Located just off Golf Drive, walking distance to the golf course & restaurants with a pocket park/greenspace behind, this section has so much to offer! This END UNIT Afton Villa provides the ease of main Level living with an open design, private owner's suite, spacious Great Room and inviting Kitchen & Dining Room, Screened-in porch, plus a private Study! The second floor offers 2 additional bedrooms, full bath and a loft area - great for added space! Enjoy our thoughtfully included features, 2x6 exterior walls, custom Mahogany front doors and the opportunity to hand select all your finishes alongside our talented Design Coordinator! Our current Model home is the Afton floorplan offering a great opportunity to tour the plan in person. Start planning your new home for Fall 2026 move-in! Granite Counter, Maple Cabinets, Painted Cabinets

Highlights:

  • Granite Counters

  • Custom Mahogany Front Doors

  • Screened-in Porch

  • Open Design

  • Private Owner's Suite

  • Show More Show Less
Walk-Thru
Reference ID:669869 Web ID:vemo

Contact Agent | Howard Hanna Real Estate Services

Contact email form:

Highlights:

  • Granite Counters

  • Custom Mahogany Front Doors

  • Screened-in Porch

  • Open Design

  • Private Owner's Suite