Beds:6
Baths:8 Full

Dubai, Dubai, 00000, United Arab Emirates

Listed by: Connor Manning | PRIME by Betterhomes

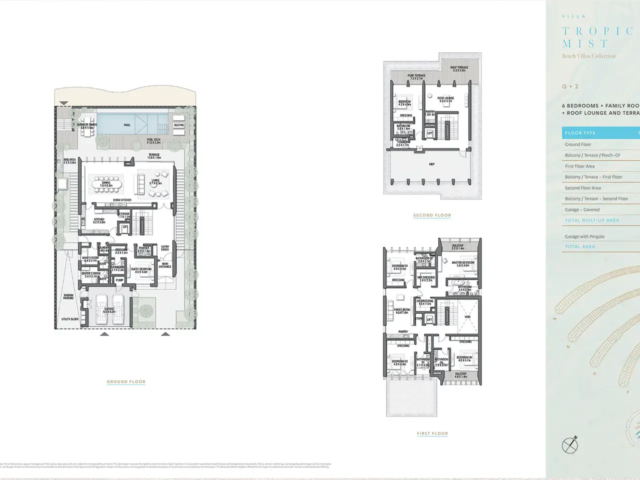
PRIME by Betterhomes and Connor Manning are delighted to offer for sale this genuine exclusively available resale opportunity in Serenity Mansions, Tilal Al Ghaf. - Genuine Resale - 10,500 sq ft plot approx - 11,727 sq ft BUA - Ayla Type - 4 levels - Basement garage - Handover Summer 2026 - 10,347,250.00 needed to transfer now This 4 story Ayla mansion offers an expansive built up area of 11,727 sq ft, and a plot size of circa 10,500 sq ft. The basement with underground parking and entertaining area is where you will enter the villa, fro, there you can take the elevator to the first floor which offers open plan living and dining area (with two kitchens), guest bedroom, service rooms, multiple sitting areas and two water features. This villa offers a perfect blend of indoor and outdoor living with a consistent modern contemporary design. The first floor features five master, en suite bedrooms, with terraces. And the third floor or Sky Suite includes a library/study and an outdoor seating area on the roof terrace, offering views over the community.
Show More Show Less

PRIME by Betterhomes and Connor Manning are delighted to offer for sale this genuine exclusively available resale opportunity in Serenity Mansions, Tilal Al Ghaf. - Genuine Resale - 10,500 sq ft plot approx - 11,727 sq ft BUA - Ayla Type - 4 levels - Basement garage - Handover Summer 2026 - 10,347,250.00 needed to transfer now This 4 story Ayla mansion offers an expansive built up area of 11,727 sq ft, and a plot size of circa 10,500 sq ft. The basement with underground parking and entertaining area is where you will enter the villa, fro, there you can take the elevator to the first floor which offers open plan living and dining area (with two kitchens), guest bedroom, service rooms, multiple sitting areas and two water features. This villa offers a perfect blend of indoor and outdoor living with a consistent modern contemporary design. The first floor features five master, en suite bedrooms, with terraces. And the third floor or Sky Suite includes a library/study and an outdoor seating area on the roof terrace, offering views over the community.

Highlights:

  • Elevator

  • Custom Cabinetry

  • Rooftop Terrace

  • Underground Parking

  • Multiple Sitting Areas

  • Show More Show Less
Reference ID:VI729531S Web ID:sqqq

Listed by Connor Manning | PRIME by Betterhomes

Contact by phone:  +971 58 562 6251
Contact email form:

Highlights:

  • Elevator

  • Custom Cabinetry

  • Rooftop Terrace

  • Underground Parking

  • Multiple Sitting Areas