Beds:0
Baths:0

303 Hibben Street, Mount Pleasant, South Carolina, 29464, USA

Listed by: Ashley Graham | Carolina One Real Estate

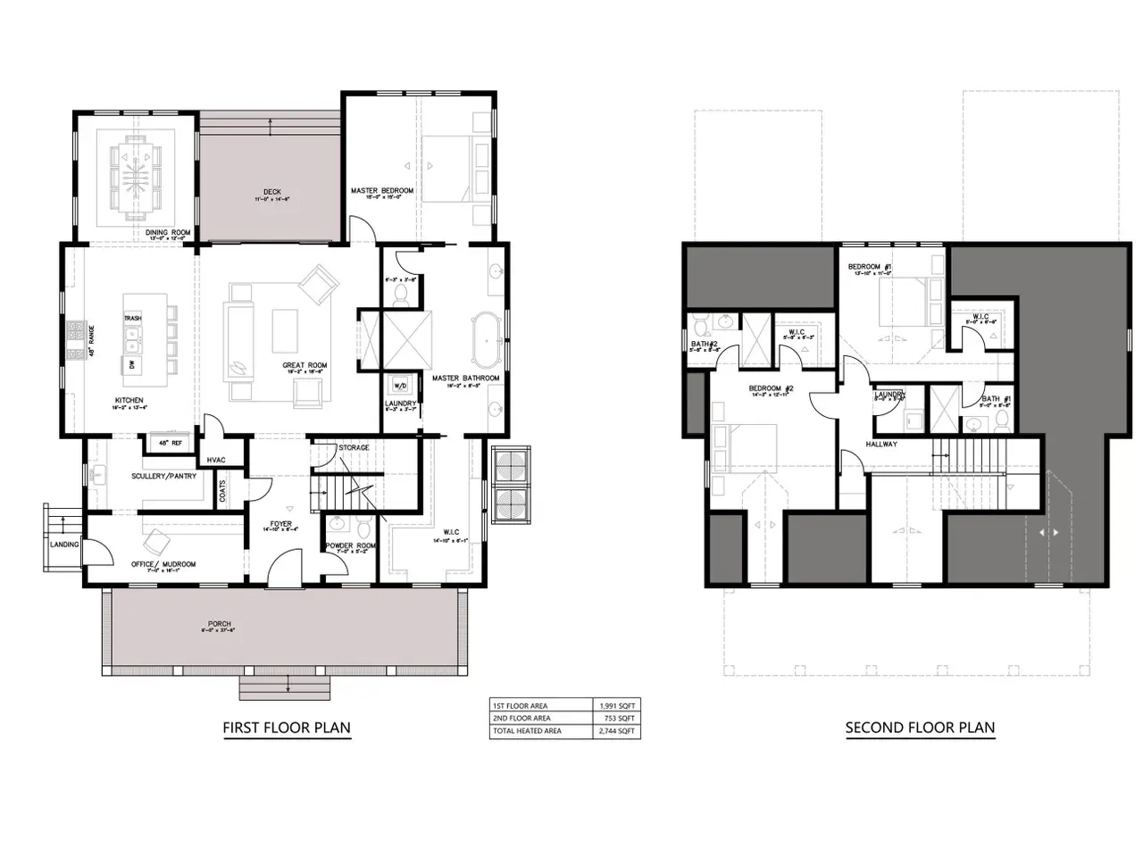
Shovel-ready in Mount Pleasant's Historic Old Village! This exciting offering includes: (1) a lovely, cleared, level property that does not require flood insurance and (2) new construction 3BR/3.5BA plans--with pool--that have been fully approved by the Historic District Preservation Comm'n and permitted by the Town of Mount Pleasant--a buyer need simply hire a builder to bring these gorgeous plans to life. Plans provide for a gracious Lowcountry style horizontal wood-sided home with stucco-clad foundation, standing-seam metal roof, expansive front porch and 14' x 8' swimming pool. Interior specifications include 3 bedrooms (primary is downstairs), 3.5 bathrooms and more than 2700 SF of heated and cooled space. Other features include a home office/mudroom space, scullery/walk-in pantry,kitchen with abundant natural light, great room with gas fireplace, separate dining area, ample storage (including a detached shed), spacious deck and privacy fence. As a resident of the extremely pedestrian-friendly Old Village, one is never far from sparkling views of Shem Creek and Charleston Harbor, bustling restaurants and shops, and abundant green space. Skip the planning and permitting headaches and seize this opportunity to create your dream residence in the heart of an iconic neighborhood, where timeless architecture meets Lowcountry charm.
Show More Show Less

Shovel-ready in Mount Pleasant's Historic Old Village! This exciting offering includes: (1) a lovely, cleared, level property that does not require flood insurance and (2) new construction 3BR/3.5BA plans--with pool--that have been fully approved by the Historic District Preservation Comm'n and permitted by the Town of Mount Pleasant--a buyer need simply hire a builder to bring these gorgeous plans to life. Plans provide for a gracious Lowcountry style horizontal wood-sided home with stucco-clad foundation, standing-seam metal roof, expansive front porch and 14' x 8' swimming pool. Interior specifications include 3 bedrooms (primary is downstairs), 3.5 bathrooms and more than 2700 SF of heated and cooled space. Other features include a home office/mudroom space, scullery/walk-in pantry,kitchen with abundant natural light, great room with gas fireplace, separate dining area, ample storage (including a detached shed), spacious deck and privacy fence. As a resident of the extremely pedestrian-friendly Old Village, one is never far from sparkling views of Shem Creek and Charleston Harbor, bustling restaurants and shops, and abundant green space. Skip the planning and permitting headaches and seize this opportunity to create your dream residence in the heart of an iconic neighborhood, where timeless architecture meets Lowcountry charm.

Highlights:

  • Expansive front porch

  • Standing-seam metal roof

  • Gas fireplace

  • Swimming pool

  • Scullery/walk-in pantry

  • Ample natural light

  • Home office/mudroom space

  • Spacious deck

  • Privacy fence

  • Show More Show Less
Walk-Thru
Reference ID:25026851 Web ID:rtog

Listed by Ashley Graham | Carolina One Real Estate

Contact email form:

Highlights:

  • Expansive front porch

  • Standing-seam metal roof

  • Gas fireplace

  • Swimming pool

  • Scullery/walk-in pantry

  • Ample natural light

  • Home office/mudroom space

  • Spacious deck

  • Privacy fence

Continue Exploring Related Collections