Beds:3
Baths:4 Full | 1 Half

1530 West Ohio Street, Chicago, Illinois, 60642, USA

Listed by: Mike Greco | Baird & Warner

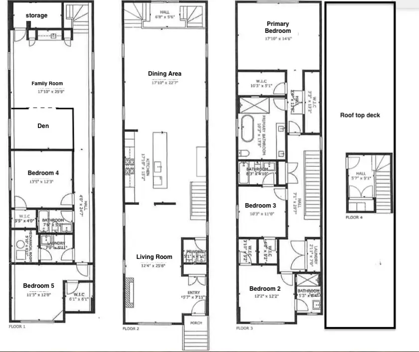
Newly constructed in 2023, this elegant single-family home in West Town seamlessly blends modern luxury with functional design. This 5-bedroom, 4.5-bathroom residence features a full rooftop deck, a garage deck, and a spacious grass front yard and backyard. Lumini windows and 6.5-inch wide-plank hardwood floors enhance the interior's sophistication. The open floor plan showcases a bright, south-facing living and dining area with a quartz-surround fireplace. The gourmet kitchen boasts high-end Thermador appliances, Brizo fixtures, and a large quartz island. Post-construction upgrades include high-end motorized window shades, custom closets, and dual HVAC systems for year-round comfort. The second floor offers three bedrooms, each with en-suite bathrooms, and a convenient side-by-side laundry closet with a countertop. The primary suite features two spacious closets and a spa-like bathroom with an extended double vanity, heated floors, a freestanding soaking tub, and a multi-jet glass shower. The lower level includes two large bedrooms, a recreation room with a den and wet bar, a full bathroom, extra storage, and an additional laundry hookup. The recreation room's den, enclosed by barn doors, provides versatile space for an office, gym, or guest room. Ideal for entertaining, the home features a stunning rooftop deck with skyline views and a backyard perfect for grassy turf or a paved patio. A two-car garage with an additional deck expands outdoor living options. Located in vibrant West Town, steps from West Loop, this home is surrounded by top-tier restaurants and boutique shops.
Show More Show Less

Newly constructed in 2023, this elegant single-family home in West Town seamlessly blends modern luxury with functional design. This 5-bedroom, 4.5-bathroom residence features a full rooftop deck, a garage deck, and a spacious grass front yard and backyard. Lumini windows and 6.5-inch wide-plank hardwood floors enhance the interior's sophistication. The open floor plan showcases a bright, south-facing living and dining area with a quartz-surround fireplace. The gourmet kitchen boasts high-end Thermador appliances, Brizo fixtures, and a large quartz island. Post-construction upgrades include high-end motorized window shades, custom closets, and dual HVAC systems for year-round comfort. The second floor offers three bedrooms, each with en-suite bathrooms, and a convenient side-by-side laundry closet with a countertop. The primary suite features two spacious closets and a spa-like bathroom with an extended double vanity, heated floors, a freestanding soaking tub, and a multi-jet glass shower. The lower level includes two large bedrooms, a recreation room with a den and wet bar, a full bathroom, extra storage, and an additional laundry hookup. The recreation room's den, enclosed by barn doors, provides versatile space for an office, gym, or guest room. Ideal for entertaining, the home features a stunning rooftop deck with skyline views and a backyard perfect for grassy turf or a paved patio. A two-car garage with an additional deck expands outdoor living options. Located in vibrant West Town, steps from West Loop, this home is surrounded by top-tier restaurants and boutique shops.

Highlights:

  • Custom cabinetry

  • Lumini windows

  • Quartz-surround fireplace

  • Thermador appliances

  • Heated floors

  • Rooftop deck with skyline views

  • Wine room with wet bar

  • Wide-plank hardwood floors

  • Show More Show Less
Reference ID:12479788 Web ID:qxko

Listed by Mike Greco | Baird & Warner

Contact email form:

Highlights:

  • Custom cabinetry

  • Lumini windows

  • Quartz-surround fireplace

  • Thermador appliances

  • Heated floors

  • Rooftop deck with skyline views

  • Wine room with wet bar

  • Wide-plank hardwood floors