Beds:3
Baths:3 Full | 1 Half

87 Mont Clair Trail 31 #31, Horse Shoe, North Carolina, 28742, USA

Listed by: Debbie Hrncir | Howard Hanna | Beverly-Hanks Real Estate

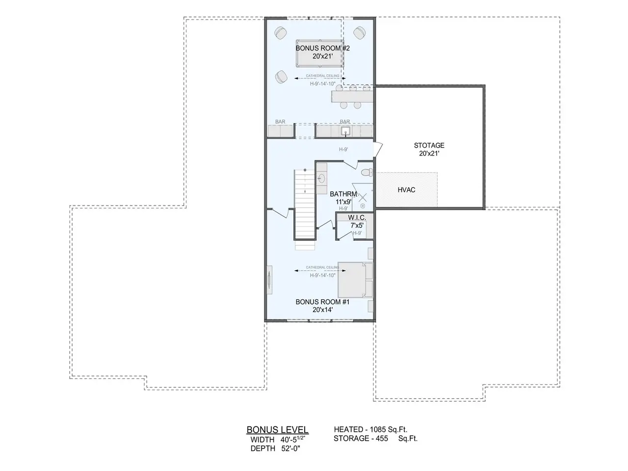
Welcome to Horseshoe's Newest Gated Community! Nestled among rolling hills, lush trees, and a tranquil stream, this stunning new construction home offers the perfect escape from the bustle of everyday life. Designed for effortless one-level living, the open floor plan features soaring ceilings, a dramatic stone fireplace, and a great room with beautiful vaulted ceilings that invite natural light throughout. The chef's kitchen is amazing, complete with exquisite Crystal Quartz countertops, a spacious walk-in pantry, and premium stainless steel Energy Star Thermador appliances. Step out onto the screened-in deck and relax by the impressive outdoor stone fireplace. Retreat to the luxurious primary suite with spa-like bath and large, walk-in shower. The upper level offers even more flexibility with two large bonus rooms, a convenient entertainment bar, and a full bath which is perfect for guests, hobbies, or a home office. Situated on a large, private wooded lot, this exceptional home combines modern luxury with serene surroundings. Conveniently located just minutes from Brevard, Hendersonville, Arden, and South Asheville. Schedule your private tour today and discover the best of mountain living!
Show More Show Less

Welcome to Horseshoe's Newest Gated Community! Nestled among rolling hills, lush trees, and a tranquil stream, this stunning new construction home offers the perfect escape from the bustle of everyday life. Designed for effortless one-level living, the open floor plan features soaring ceilings, a dramatic stone fireplace, and a great room with beautiful vaulted ceilings that invite natural light throughout. The chef's kitchen is amazing, complete with exquisite Crystal Quartz countertops, a spacious walk-in pantry, and premium stainless steel Energy Star Thermador appliances. Step out onto the screened-in deck and relax by the impressive outdoor stone fireplace. Retreat to the luxurious primary suite with spa-like bath and large, walk-in shower. The upper level offers even more flexibility with two large bonus rooms, a convenient entertainment bar, and a full bath which is perfect for guests, hobbies, or a home office. Situated on a large, private wooded lot, this exceptional home combines modern luxury with serene surroundings. Conveniently located just minutes from Brevard, Hendersonville, Arden, and South Asheville. Schedule your private tour today and discover the best of mountain living!

Highlights:

  • Soaring ceilings

  • Dramatic stone fireplace

  • Crystal Quartz countertops

  • Chef's kitchen

  • Screened-in deck

  • Outdoor stone fireplace

  • Luxurious primary suite

  • Spa-like bath

  • Entertainment bar

  • Private wooded lot

  • Show More Show Less
Reference ID:4316005 Web ID:pxhs

Listed by Debbie Hrncir | Howard Hanna | Beverly-Hanks Real Estate

Contact by phone:  8283295365
Contact email form:

Highlights:

  • Soaring ceilings

  • Dramatic stone fireplace

  • Crystal Quartz countertops

  • Chef's kitchen

  • Screened-in deck

  • Outdoor stone fireplace

  • Luxurious primary suite

  • Spa-like bath

  • Entertainment bar

  • Private wooded lot