Beds:5
Baths:2 Full

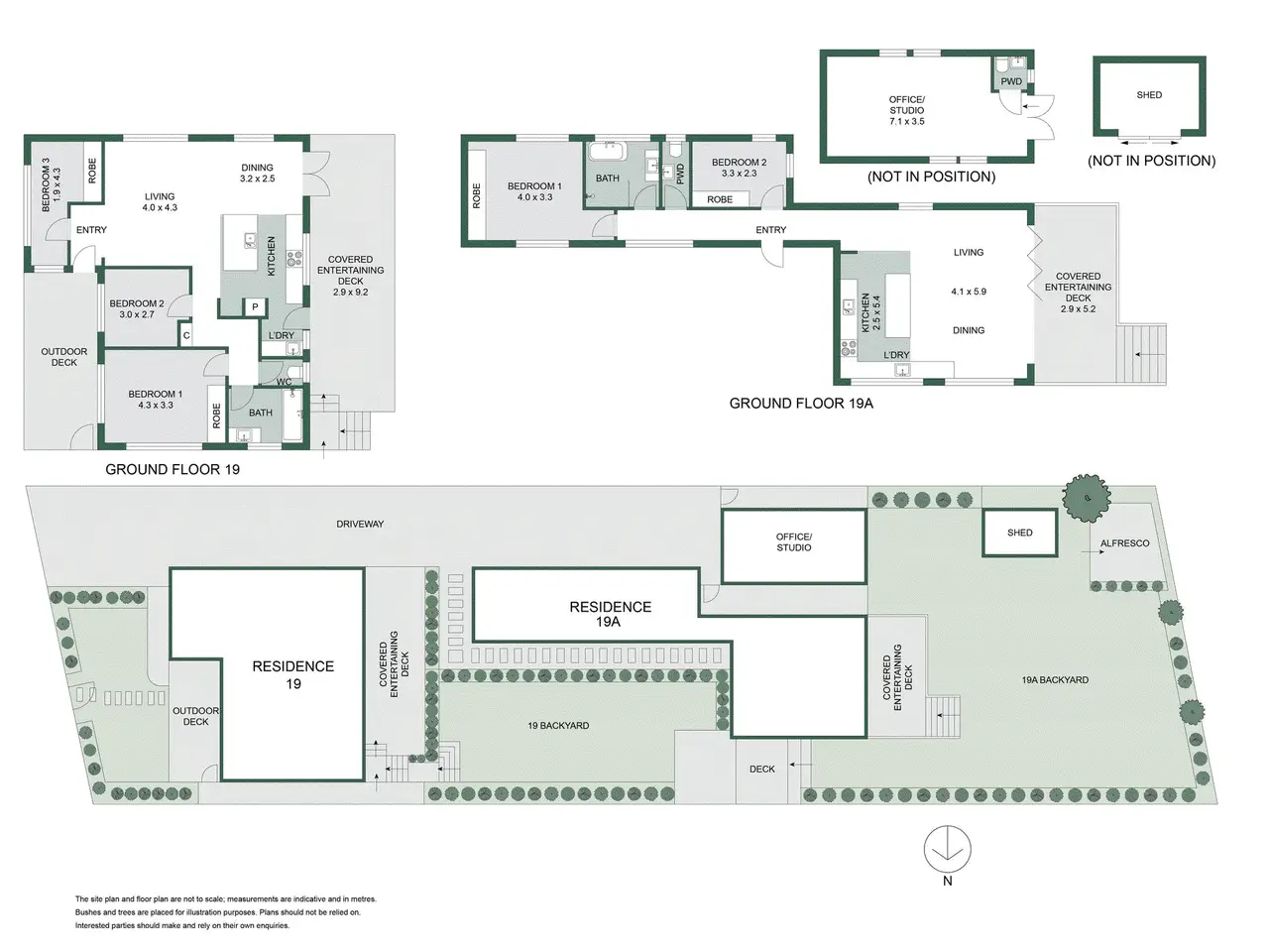
19 Watkins Road, Avalon Beach, NSW, 2107, Australia

Listed by: Veronica Allen | Belle Property Australia

Completed just this year, the transformation of this property is simply astonishing; the creativity the design has created a wow-factor that's right off the charts. Now zoned for dual occupancy, there are two stunning homes on a single title, each one embracing a cool, beachside aesthetic to dazzling effect. Adding further appeal is the absolute privacy between the dwellings – it's been cleverly sited to provide each cottage with entirely separate entrances, lawns and gardens with views over the Norfolk Pines. Both homes are drenched with natural light; the interiors are impeccably curated, with the fresh neutral tones joined by a richly-textured material palette. There's an exceptional opportunity here for multi-generational living or shared ownership; the dual-occupancy also allows new owners to rent out one dwelling while living in the other, all in a prime North Avalon pocket. - Two chic beachside cottages, one title; perfect for shared ownership - Each feature private gardens with sheltered decks and level lawns - Both completed in 2024; open plan layouts and premium appointments - Ideal for extended families or as a passive income stream for buyers - Property is beautifully landscaped, affording privacy and greenery - Wide-plank oak floors, plantation shutters, R/C air conditioning - Dwelling 1 features a marble-topped kitchen with servery and French doors to the deck, three bedrooms, BIRs, luxe bathroom - Dwelling 2 includes a stone/induction kitchen, bifolds to the deck, two bedrooms, bathroom and a large, finished studio that can easily connect via a breezeway to the home, for additional living space, home office or detached 3rd bedroom - Clearly, its North Avalon's most versatile and stylish new offering Disclaimer: Whilst all care has been taken to ensure accuracy in the preparation of the particulars herein, no warranty can be given, and interested parties must rely on their own enquiries.
Show More Show Less

Completed just this year, the transformation of this property is simply astonishing; the creativity the design has created a wow-factor that's right off the charts. Now zoned for dual occupancy, there are two stunning homes on a single title, each one embracing a cool, beachside aesthetic to dazzling effect. Adding further appeal is the absolute privacy between the dwellings – it's been cleverly sited to provide each cottage with entirely separate entrances, lawns and gardens with views over the Norfolk Pines. Both homes are drenched with natural light; the interiors are impeccably curated, with the fresh neutral tones joined by a richly-textured material palette. There's an exceptional opportunity here for multi-generational living or shared ownership; the dual-occupancy also allows new owners to rent out one dwelling while living in the other, all in a prime North Avalon pocket. - Two chic beachside cottages, one title; perfect for shared ownership - Each feature private gardens with sheltered decks and level lawns - Both completed in 2024; open plan layouts and premium appointments - Ideal for extended families or as a passive income stream for buyers - Property is beautifully landscaped, affording privacy and greenery - Wide-plank oak floors, plantation shutters, R/C air conditioning - Dwelling 1 features a marble-topped kitchen with servery and French doors to the deck, three bedrooms, BIRs, luxe bathroom - Dwelling 2 includes a stone/induction kitchen, bifolds to the deck, two bedrooms, bathroom and a large, finished studio that can easily connect via a breezeway to the home, for additional living space, home office or detached 3rd bedroom - Clearly, its North Avalon's most versatile and stylish new offering Disclaimer: Whilst all care has been taken to ensure accuracy in the preparation of the particulars herein, no warranty can be given, and interested parties must rely on their own enquiries.

Walk-Thru
Reference ID:62P26645 Web ID:mcdy

Listed by Veronica Allen | Belle Property Australia

Contact by phone:  0404 526 290
Contact email form:
Continue Exploring Related Collections