Beds:7
Baths:4 Full

1510 West Montrose Avenue, Chicago, Illinois, 60613, USA

Listed by: Barrie Jessome | Baird & Warner

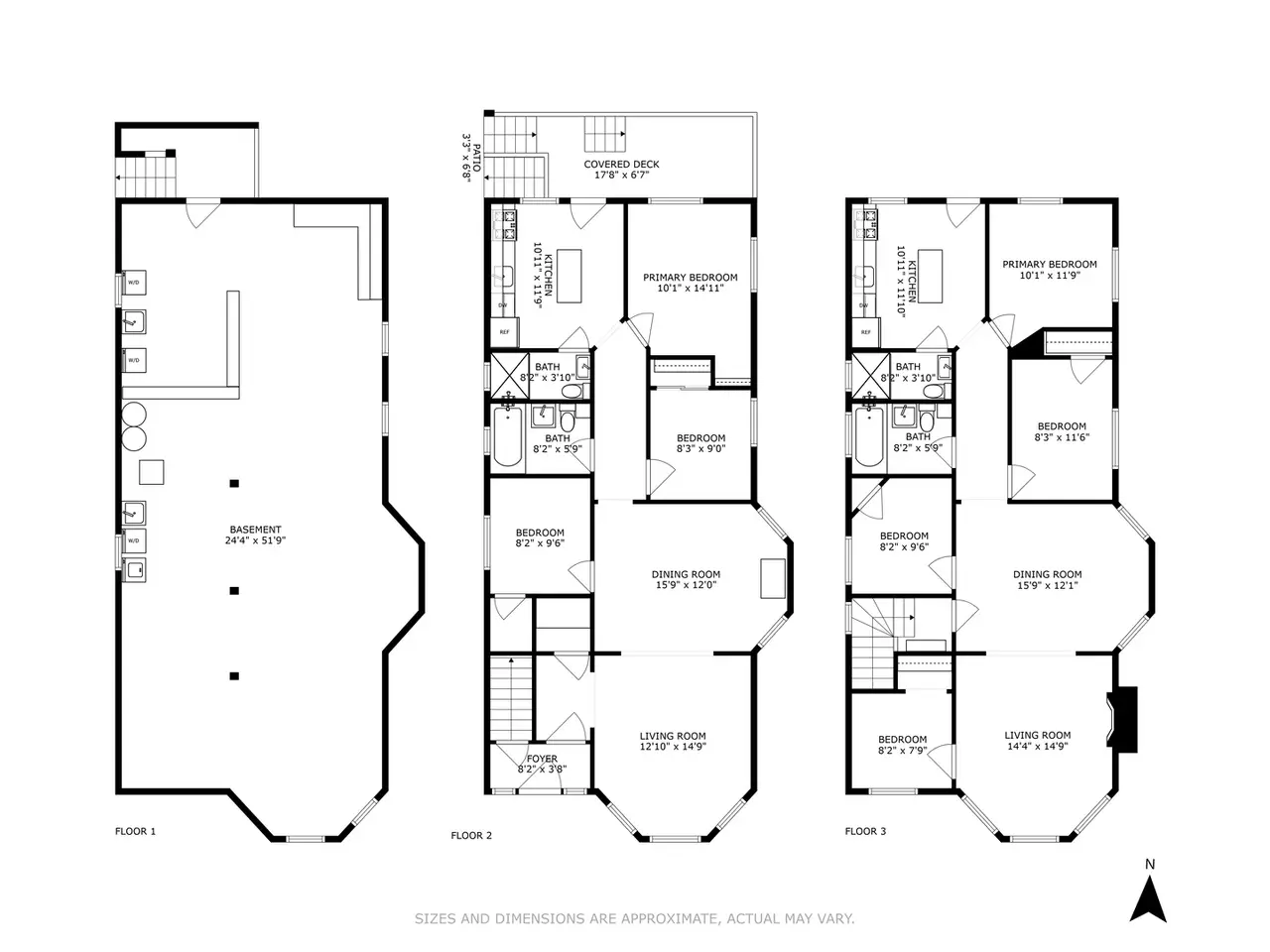
Investor's opportunity in Ravenswood - rare 7BR/4BA 2-flat with proven Airbnb success. Fully functional short-term rental setup with smart updates for a seamless, automated guest experience. Top unit offers 4BR/2BA; lower unit features 3BR/2BA. Renovated kitchens and baths with granite countertops, stainless steel appliances, and modern finishes. Major updates: tear-off roof/new parapet (2018), rebuilt porch (2024), new sidewalk/back patio (2018), and new water heaters (2023-2024). Two exterior entrances allow flexible use for multiple occupants, STR hosting, or long-term tenants. Located steps from Southport Corridor, Wrigley Field, CTA Brown Line, Wells Park, Mariano's, Whole Foods, boutique shops, dining, and top-rated schools. Walk Score 94, Transit Score 82. Full income/expense reports and Airbnb performance snapshot available in Additional Info. Turnkey, income-ready, and move-in ready in one of Chicago's most desirable neighborhoods.
Show More Show Less

Investor's opportunity in Ravenswood - rare 7BR/4BA 2-flat with proven Airbnb success. Fully functional short-term rental setup with smart updates for a seamless, automated guest experience. Top unit offers 4BR/2BA; lower unit features 3BR/2BA. Renovated kitchens and baths with granite countertops, stainless steel appliances, and modern finishes. Major updates: tear-off roof/new parapet (2018), rebuilt porch (2024), new sidewalk/back patio (2018), and new water heaters (2023-2024). Two exterior entrances allow flexible use for multiple occupants, STR hosting, or long-term tenants. Located steps from Southport Corridor, Wrigley Field, CTA Brown Line, Wells Park, Mariano's, Whole Foods, boutique shops, dining, and top-rated schools. Walk Score 94, Transit Score 82. Full income/expense reports and Airbnb performance snapshot available in Additional Info. Turnkey, income-ready, and move-in ready in one of Chicago's most desirable neighborhoods.

Highlights:

  • Granite countertops

  • Stainless steel appliances

  • Renovated kitchens

  • Modern finishes

  • Rebuilt porch

  • Tear-off roof

  • New water heaters

  • Smart updates

  • Short-term rental setup

  • Proximity to amenities

  • Show More Show Less
Walk-Thru
Reference ID:12427685 Web ID:hqqp

Listed by Barrie Jessome | Baird & Warner

Contact by phone:  773-991-3640
Contact email form:

Highlights:

  • Granite countertops

  • Stainless steel appliances

  • Renovated kitchens

  • Modern finishes

  • Rebuilt porch

  • Tear-off roof

  • New water heaters

  • Smart updates

  • Short-term rental setup

  • Proximity to amenities