Beds:4
Baths:3 Full | 1 Half

1124 West Addison Street #1, Chicago, Illinois, 60613, USA

Listed by: Shaun Howard | @properties Christie’s International Real Estate

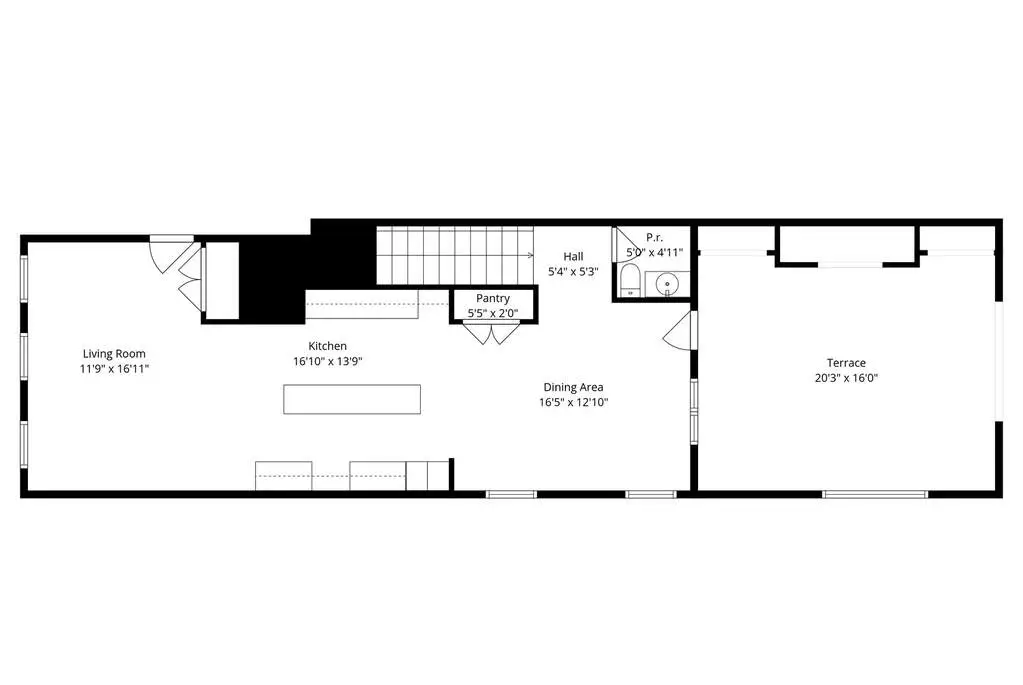
Stunning New Construction Duplex-Down in the Heart of Wrigleyville & Southport Corridor! November 2025 expected delivery. Welcome to 1124 W Addison, a brand-new 4-bedroom, 3.5-bathroom duplex-down that combines luxury, space, and unbeatable location in one of Chicago's most dynamic neighborhoods. Perfectly situated just steps from Wrigley Field and the vibrant Southport Corridor, this home places you in the center of world-class dining, boutique shopping, nightlife, parks, and public transit. Spread across two expansive levels, this residence feels like a single-family home, offering exceptional space and privacy for both everyday living and entertaining. The main level features an open-concept layout with oversized floor to ceiling windows, wide-plank hardwood floors, and a stunning chef's kitchen with custom cabinetry, high-end appliances, quartz countertops, and a large island with seating. Downstairs, the primary suite serves as a private retreat, complete with a spa-inspired bath and huge walk in closet space. Three additional bedrooms and well-appointed baths offer flexibility for family, guests, or a home office. Enjoy seamless indoor-outdoor living with your private outdoor terrace, perfect for grilling, entertaining, or relaxing in the heart of the city. Additional highlights include high ceilings, designer finishes throughout. 1 parking space included. Option for Cubs parking/garage for additional income or garage with 1bed/1bath rental income ADU. Don't miss this rare opportunity to own a luxury duplex-down just steps from Wrigley Field in one of Chicago's most sought-after neighborhoods.
Show More Show Less

Stunning New Construction Duplex-Down in the Heart of Wrigleyville & Southport Corridor! November 2025 expected delivery. Welcome to 1124 W Addison, a brand-new 4-bedroom, 3.5-bathroom duplex-down that combines luxury, space, and unbeatable location in one of Chicago's most dynamic neighborhoods. Perfectly situated just steps from Wrigley Field and the vibrant Southport Corridor, this home places you in the center of world-class dining, boutique shopping, nightlife, parks, and public transit. Spread across two expansive levels, this residence feels like a single-family home, offering exceptional space and privacy for both everyday living and entertaining. The main level features an open-concept layout with oversized floor to ceiling windows, wide-plank hardwood floors, and a stunning chef's kitchen with custom cabinetry, high-end appliances, quartz countertops, and a large island with seating. Downstairs, the primary suite serves as a private retreat, complete with a spa-inspired bath and huge walk in closet space. Three additional bedrooms and well-appointed baths offer flexibility for family, guests, or a home office. Enjoy seamless indoor-outdoor living with your private outdoor terrace, perfect for grilling, entertaining, or relaxing in the heart of the city. Additional highlights include high ceilings, designer finishes throughout. 1 parking space included. Option for Cubs parking/garage for additional income or garage with 1bed/1bath rental income ADU. Don't miss this rare opportunity to own a luxury duplex-down just steps from Wrigley Field in one of Chicago's most sought-after neighborhoods.

Highlights:

  • Floor-to-ceiling windows

  • Chef's kitchen with custom cabinetry

  • Spa-inspired primary suite

  • Wide-plank hardwood floors

  • Private outdoor terrace

  • Show More Show Less
Reference ID:12486514 Web ID:gjtj

Listed by Shaun Howard | @properties Christie’s International Real Estate

Contact email form:

Highlights:

  • Floor-to-ceiling windows

  • Chef's kitchen with custom cabinetry

  • Spa-inspired primary suite

  • Wide-plank hardwood floors

  • Private outdoor terrace