Prime Lakefront Property
Great Pond Road, North Andover, Massachusetts, 01845, USA
Listed by: Peggy Patenaude | William Raveis Real Estate
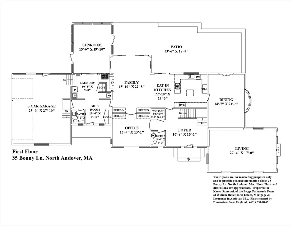
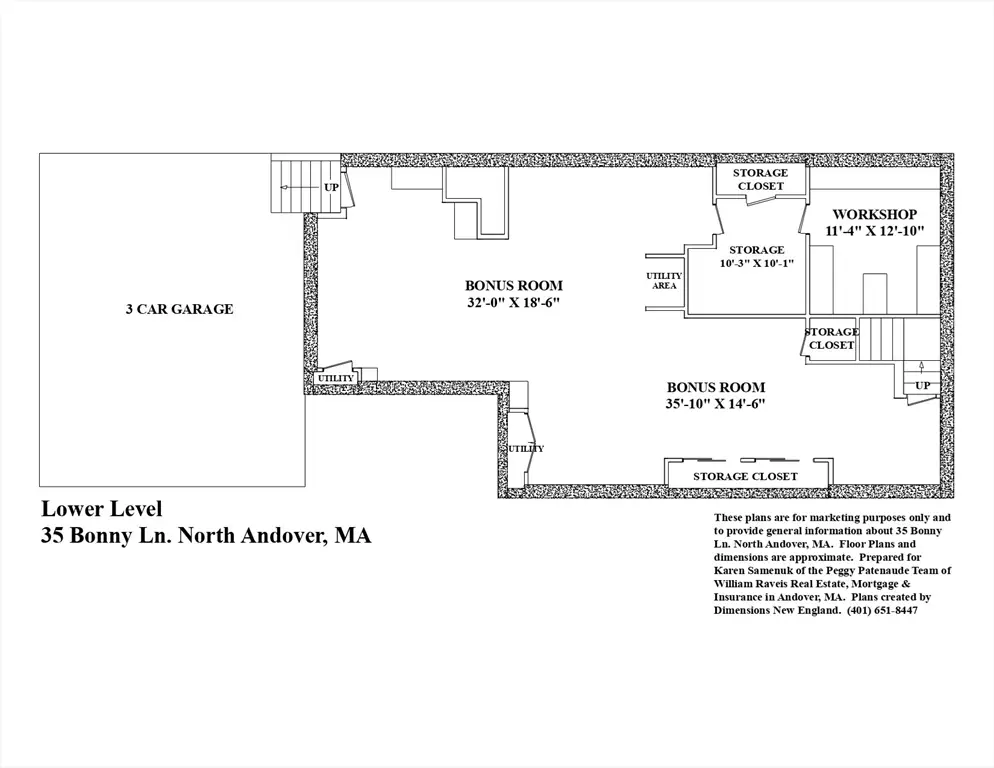
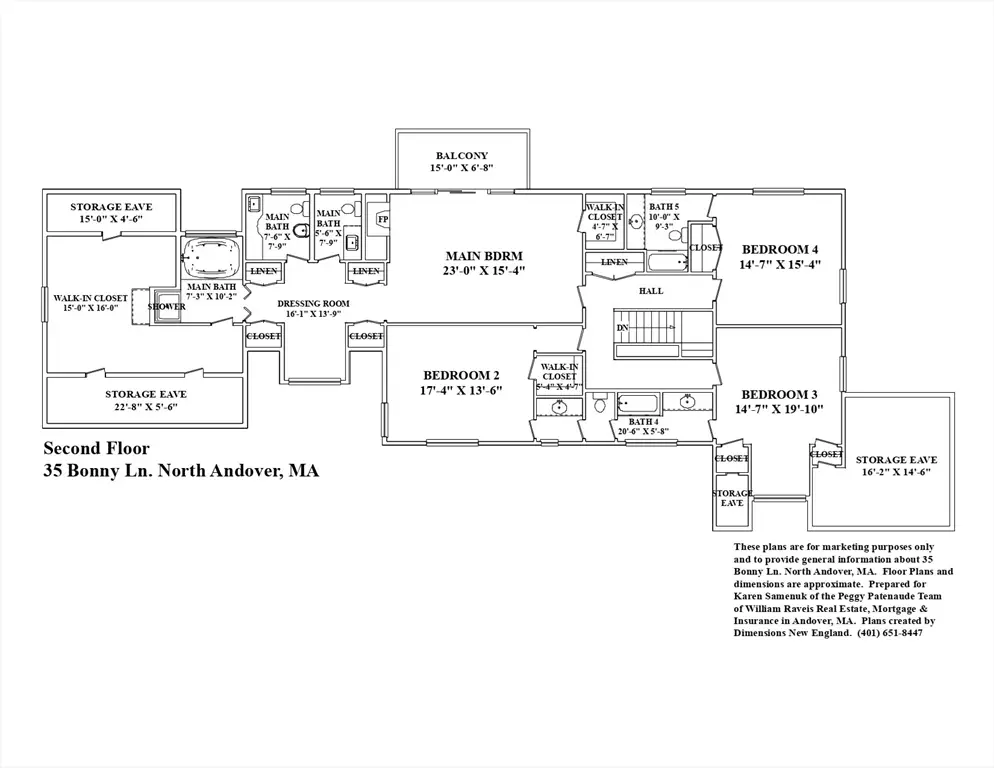
WATERFRONT "residential developable land" on glorious Lake Cochichewick being sold together with existing ~6000sf residence on adjacent lot! This listing offers 2.1 acres of prime lakefront land plus sprawling contemporary home with additional 1.1 acres at 35 Bonny Ln. Land has street frontage and lake frontage. See attached survey. Properties are part of the coveted cul-de-sac of beautiful homes on Bonny Ln. The residence, built in 1981, has expansive first floor with multiple lakeside doors & windows, sunroom and bluestone patios and offers four bedrooms and three full and two half bathrooms. See attached floorplans. Explore investment opportunities by developing waterfront parcel or update existing home and/or construct additional dwelling(s) on extra land for personal use or sale. Development of land will require approvals from town boards. Located in watershed district. Buyer/Buyer's Agent to perform own due diligence. Exceptional opportunity with many intriguing possibilities!