Brand New Custom Home from a Top Builder
114 North Village Way, Jupiter, Florida, 33458, USA
Listed by: Lori Schacter | Illustrated Properties Real Estate, Inc.
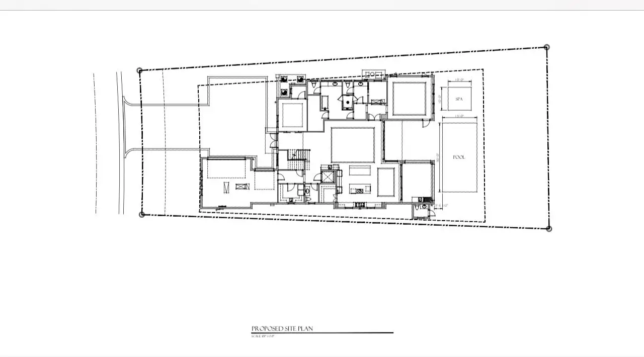
BRAND NEW CUSTOM HOME by one of the areas top home builders, Hasey Construction. Every architectural quality detail. Completion in 2026. Expansive southern lake, preserve and golf views. Now is the time to select any ''wishlist'' items. The estate is located on one of the most quiet,private locations. Great Room open floor plan. Over 5000 sq/ft LA boasting 5 BD, 6 BA,2 half baths, study, elevator, resort style pool and spa. Primary suite w/his/her baths. Experience the lifestyle of Admirals Cove Platinum Club featuring world class amenities including 45 holes of golf, championship tennis and pickleball ctr, 7 restaurants, state of the art fitness ctr, full service salon and spa building, 54 slip full-service marina w/floating docks, yacht club.
Highlights:
Elevator
Resort-style pool and spa
His/her baths in primary suite
Listed by Lori Schacter | Illustrated Properties Real Estate, Inc.
Highlights:
Elevator
Resort-style pool and spa
His/her baths in primary suite
Architectural quality details
Expansive lake, preserve, and golf views