Inviting Solid Brick Home
17 King William Street, Greenwich, NSW, 2065, Australia
Listed by: James Bennett | Belle Property Australia
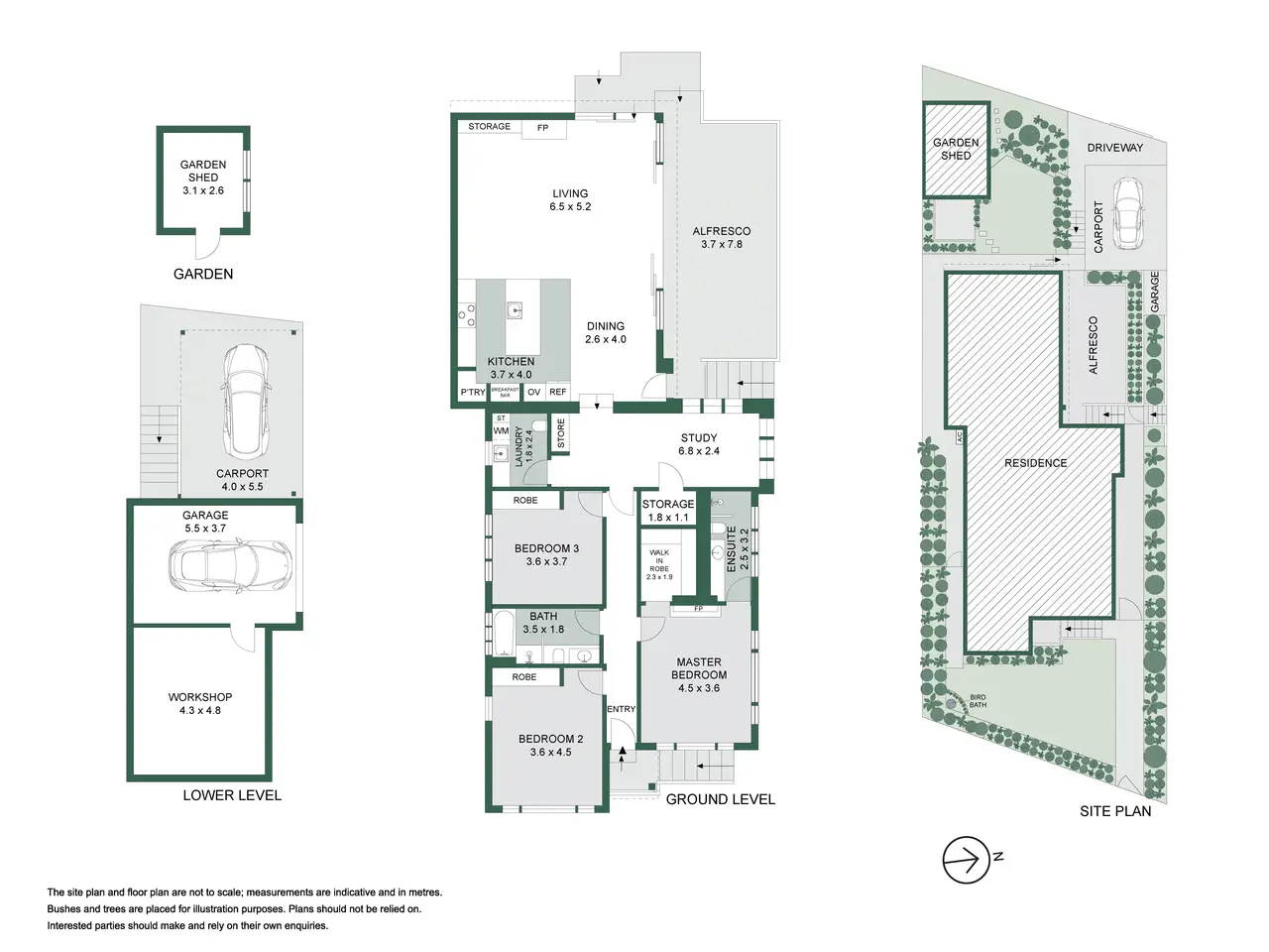
Offering the dream lifestyle for a family or downsizers, this inviting solid brick home combines quality construction and tasteful updates on the one level with generous natural light and superb privacy. Interiors are flawless throughout and feature an open plan living area and modern kitchen with glass sliders creating seamless flow to a north facing terrace for entertaining. Boasting three street frontages, bookended by level lawns and including both a lock-up garage and secure carport, it delivers the perfect balance of space, peace and convenience within approx. 350m of Greenwich village shops, easy walk to the ferry and buses to Lane Cove, Crows Nest Metro and Chatswood. - Open plan living/dining and island kitchen, additional sitting room or study - Kitchen with stone benchtops, European appliances and gas cooking - Sliding glass to north facing terrace for seamless indoor/outdoor flow - Oversized bedrooms with carpet and built-ins, master has walk-in robe - Modern ensuite, full main bath and internal laundry with powder room - High ceilings, ducted r/c air conditioning, glass-fronted gas fireplace - Fenced front and rear lawns, versatile garden shed or potential studio - Auto lock-up garage with adjoining workshop room plus secure carport - Approx. 350m to Primary School and Village shops, 550m walk to Bay street Ferry Auction commences 6.00pm at Belle Property Head Office 2A Phoenix Street, Lane Cove NSW 2066 Registrations from 5.30pm
Highlights:
- Stone benchtops
- Glass-fronted gas fireplace
- North facing terrace with sliding glass
Listed by James Bennett | Belle Property Australia
Highlights:
- Stone benchtops
- Glass-fronted gas fireplace
- North facing terrace with sliding glass
- High ceilings
- European appliances
- Walk-in robe in master
- Internal laundry with powder room
- Ducted r/c air conditioning
- Versatile garden shed
- Auto lock-up garage
 
                     
                     
                     
                     
                     
                     
                     
                     
                     
             
                     
                     
        
    
            
     
        
    
            
     
        
    
            
     
        
    
            
     
        
    
            
     
        
    
          