Lits: 6
Thermes:5 Complet

2614 West Logan Boulevard, Chicago, Illinois, 60647, États-Unis

Répertorié par : Amy Morro | Baird & Warner

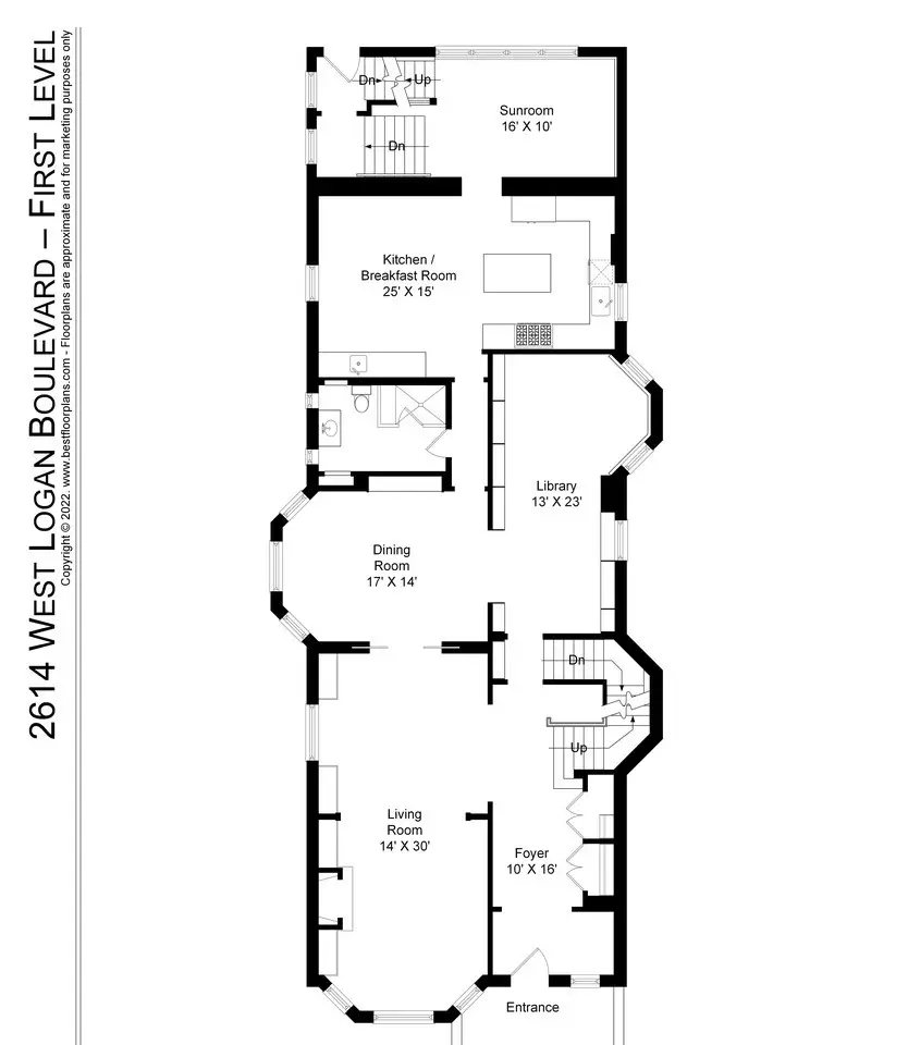
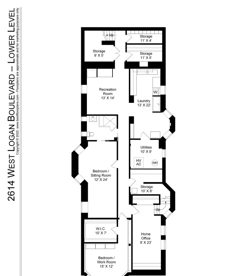
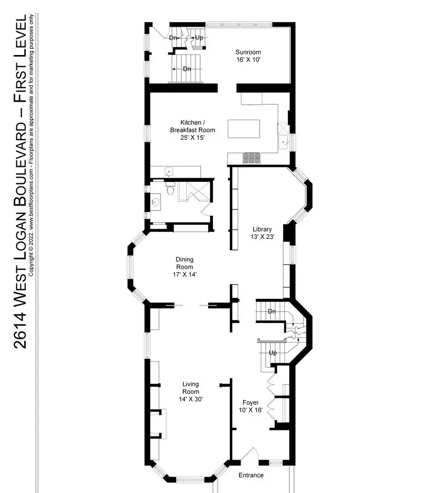
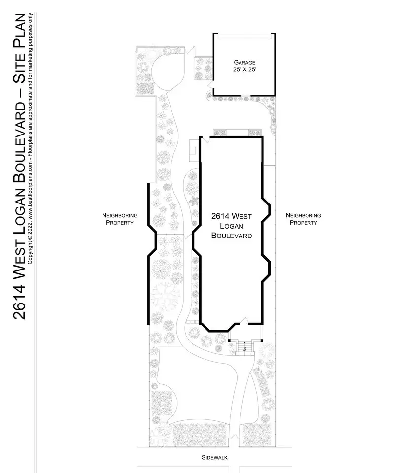
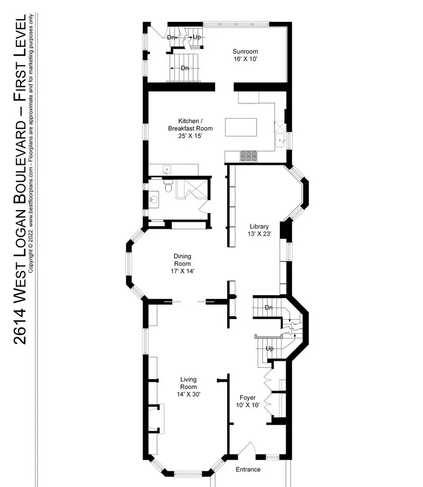
Magnifique maison en pierre grise sur un double terrain dans le quartier historique de Logan Square. En collaboration avec Nina et John Hancock de Hancock and Hancock, la maison a été entièrement rénovée en 2008. L'intérieur a été entièrement rénové, préservant les détails architecturaux tout en modernisant le plan et les éléments de la maison. L'entrée comprend un grand hall d'entrée sur deux niveaux, deux dressings et un lustre escamotable d'une simple pression sur un bouton pour le nettoyage. Une fenêtre en verre taillé d'origine scintille dans la baie vitrée du salon, avec sa cheminée, ses jolis placards intégrés et ses portes coulissantes intactes (couvertes) menant à la salle à manger formelle. L'élégante bibliothèque, attenante à la salle à manger, est l'endroit idéal pour les cocktails avant le dîner, avec ses sièges confortables et son bar. Au bout du couloir, après une salle de bain complète, se trouve la cuisine. Des meubles de style Shaker Cambium, une cuisinière AGA 6 feux (mixte) avec 4 fours, un tiroir chauffant Dacor, un lave-vaisselle Miele et un réfrigérateur Sub-Zero sont les points forts de la cuisine. Un îlot central mobile, offrant une fonctionnalité optimale, et un charmant coin repas/petit-déjeuner avec de nombreux placards intégrés complètent l'espace. La véranda donne sur le jardin luxuriant, agrémenté d'une allée en pierre bleue et d'une terrasse où vous trouverez un barbecue encastré DCS, des sièges confortables et un coin repas extérieur. Le garage pour deux voitures servait autrefois d'écurie et l'intérieur comprend désormais un « carrefour smoking ». Les quatre chambres, très prisées, se trouvent au deuxième étage, dont trois avec salle de bain attenante. La chambre principale dispose de trois dressings et sa salle de bain est dotée d'un sol en marbre, de plans de travail et d'une douche avec baignoire séparée. Une suite parentale avec salon et salle de bain complète se trouve au rez-de-chaussée. On trouve également un impressionnant bureau avec placards intégrés et coin salon, une autre chambre, une cave à vin, un espace de sport avec réfrigérateur et placards Costco ; un atelier/salle à outils avec étagères, une buanderie avec grand évier/station de lavage pour chiens et un coin salon au niveau inférieur. Cet espace fonctionnel est complété par un placard en cèdre, un placard utilitaire et de nombreux rangements. Cette maison a été méticuleusement entretenue, avec une toiture neuve en 2021. Les fenêtres d'origine, taillées et vitraux, ont toutes été restaurées, y compris de nouvelles fenêtres en 2008. Le chauffage et la climatisation à double zone, les deux chauffe-eau et l'aménagement paysager soigné sont régulièrement vérifiés. Des boiseries Merkle sont présentes dans toute la maison et les planchers sont sciés sur quartier. Tous les placards sont des placards californiens de fabrication professionnelle. Le 2614 Logan Boulevard est équipé d'un système d'alarme entièrement surveillé pour les portes, les fenêtres et les serrures ; le système de sécurité Savant comprend l'éclairage, des détecteurs de mouvement et des caméras de sécurité. Il y a une salle de données, un câblage Cat 5 et quatre zones de connectivité x-infinity. À l'époque de la construction du 2614 Logan Boulevard, Logan Square était le périmètre de la ville, là où le « EL » s'arrêtait. Aujourd'hui, Logan Square est très prisé, avec l'ouverture de nouveaux restaurants chaque mois. Selon un habitant, « Logan Square propose un incroyable marché fermier dominical, animé par une clientèle éclectique qui donne tant de vie à Logan Square. Les gens apprécient le quartier, son esprit communautaire et une grande énergie est déployée pour le faire prospérer et être inclusif. » La ligne Chicago Blue Line passe à quelques pâtés de maisons à l'ouest du 2614 Logan et est facilement accessible depuis et vers les autoroutes 90 et 94. Logan Boulevard est à égale distance des autoroutes O'Hare et Midway.
Afficher plus Afficher moins

Magnifique maison en pierre grise sur un double terrain dans le quartier historique de Logan Square. En collaboration avec Nina et John Hancock de Hancock and Hancock, la maison a été entièrement rénovée en 2008. L'intérieur a été entièrement rénové, préservant les détails architecturaux tout en modernisant le plan et les éléments de la maison. L'entrée comprend un grand hall d'entrée sur deux niveaux, deux dressings et un lustre escamotable d'une simple pression sur un bouton pour le nettoyage. Une fenêtre en verre taillé d'origine scintille dans la baie vitrée du salon, avec sa cheminée, ses jolis placards intégrés et ses portes coulissantes intactes (couvertes) menant à la salle à manger formelle. L'élégante bibliothèque, attenante à la salle à manger, est l'endroit idéal pour les cocktails avant le dîner, avec ses sièges confortables et son bar. Au bout du couloir, après une salle de bain complète, se trouve la cuisine. Des meubles de style Shaker Cambium, une cuisinière AGA 6 feux (mixte) avec 4 fours, un tiroir chauffant Dacor, un lave-vaisselle Miele et un réfrigérateur Sub-Zero sont les points forts de la cuisine. Un îlot central mobile, offrant une fonctionnalité optimale, et un charmant coin repas/petit-déjeuner avec de nombreux placards intégrés complètent l'espace. La véranda donne sur le jardin luxuriant, agrémenté d'une allée en pierre bleue et d'une terrasse où vous trouverez un barbecue encastré DCS, des sièges confortables et un coin repas extérieur. Le garage pour deux voitures servait autrefois d'écurie et l'intérieur comprend désormais un « carrefour smoking ». Les quatre chambres, très prisées, se trouvent au deuxième étage, dont trois avec salle de bain attenante. La chambre principale dispose de trois dressings et sa salle de bain est dotée d'un sol en marbre, de plans de travail et d'une douche avec baignoire séparée. Une suite parentale avec salon et salle de bain complète se trouve au rez-de-chaussée. On trouve également un impressionnant bureau avec placards intégrés et coin salon, une autre chambre, une cave à vin, un espace de sport avec réfrigérateur et placards Costco ; un atelier/salle à outils avec étagères, une buanderie avec grand évier/station de lavage pour chiens et un coin salon au niveau inférieur. Cet espace fonctionnel est complété par un placard en cèdre, un placard utilitaire et de nombreux rangements. Cette maison a été méticuleusement entretenue, avec une toiture neuve en 2021. Les fenêtres d'origine, taillées et vitraux, ont toutes été restaurées, y compris de nouvelles fenêtres en 2008. Le chauffage et la climatisation à double zone, les deux chauffe-eau et l'aménagement paysager soigné sont régulièrement vérifiés. Des boiseries Merkle sont présentes dans toute la maison et les planchers sont sciés sur quartier. Tous les placards sont des placards californiens de fabrication professionnelle. Le 2614 Logan Boulevard est équipé d'un système d'alarme entièrement surveillé pour les portes, les fenêtres et les serrures ; le système de sécurité Savant comprend l'éclairage, des détecteurs de mouvement et des caméras de sécurité. Il y a une salle de données, un câblage Cat 5 et quatre zones de connectivité x-infinity. À l'époque de la construction du 2614 Logan Boulevard, Logan Square était le périmètre de la ville, là où le « EL » s'arrêtait. Aujourd'hui, Logan Square est très prisé, avec l'ouverture de nouveaux restaurants chaque mois. Selon un habitant, « Logan Square propose un incroyable marché fermier dominical, animé par une clientèle éclectique qui donne tant de vie à Logan Square. Les gens apprécient le quartier, son esprit communautaire et une grande énergie est déployée pour le faire prospérer et être inclusif. » La ligne Chicago Blue Line passe à quelques pâtés de maisons à l'ouest du 2614 Logan et est facilement accessible depuis et vers les autoroutes 90 et 94. Logan Boulevard est à égale distance des autoroutes O'Hare et Midway.

Points forts:

  • Grand hall d'entrée à deux étages

  • Fenêtres en verre taillé d'origine

  • Bibliothèque élégante avec bar

  • Armoires Cambium sur mesure

  • cuisinière AGA à 6 brûleurs

  • Allée et patio en pierre bleue

  • Grill intégré DCS

  • Bureau impressionnant avec éléments intégrés

  • Placards californiens construits par des professionnels

  • Système de sécurité Savant avec caméras

  • Afficher plus Afficher moins
Visite guidée
ID de référence :11717916 Identifiant Web :cypg

Répertorié par Amy Morro | Baird & Warner

Contact by phone:  773-318-9550
Formulaire de contact par e-mail :

Points forts:

  • Grand hall d'entrée à deux étages

  • Fenêtres en verre taillé d'origine

  • Bibliothèque élégante avec bar

  • Armoires Cambium sur mesure

  • cuisinière AGA à 6 brûleurs

  • Allée et patio en pierre bleue

  • Grill intégré DCS

  • Bureau impressionnant avec éléments intégrés

  • Placards californiens construits par des professionnels

  • Système de sécurité Savant avec caméras

Continuer à explorer les collections connexes