Beds:4
Baths:3 Full | 1 Half

438 East North Water Street, Chicago, Illinois, 60611, USA

Listed by: Eric Newman | @properties Christie’s International Real Estate

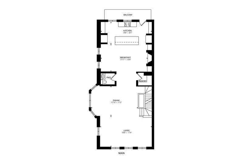
A rare offering in the heart of Streeterville, this four-story end-unit townhome combines the scale and privacy of a single-family residence with the convenience of a premier downtown location. Encompassing approximately 3,600 square feet, the home features four bedrooms, three and one-half baths, and an attached heated two-car garage, all set on an extra-large floor plan facing a quiet, tree-lined street. An open-concept second level is defined by soaring 11-foot floor-to-ceiling windows, a gas fireplace, remote-controlled blinds, fully automated AV and a flexible living/dining space ideal for everyday living and entertaining. The chef's kitchen has been thoughtfully updated with new appliances, refinished cabinetry, a generous pantry, and a wide balcony for grilling or gatherings. Multi-room speaker surround sound system on Sonos network and integrated smart-home features, including Alexa-controlled lighting, further enhance the experience. The primary suite offers custom built-ins, a walk-in closet, and a spa-style bath with a soaking tub, separate glass shower, and double vanity. A first-floor ensuite suite provides flexibility for guests or extended family. Additional features include new hardwood floors, a finished mudroom, newer furnace, AC, and water heater. The crowning feature of the residence is a private wraparound Trex rooftop deck, newly completed in 2023, with sweeping city views-perfect for entertaining, gardening, or quiet relaxation above the city. Located just blocks from the Magnificent Mile, the Lakefront, River Walk, Navy Pier, Ogden Slip, and Chicago's finest dining, shopping, and cultural attractions, this home represents a rare opportunity to own both space and lifestyle in one of the city's most dynamic neighborhoods.
Show More Show Less

A rare offering in the heart of Streeterville, this four-story end-unit townhome combines the scale and privacy of a single-family residence with the convenience of a premier downtown location. Encompassing approximately 3,600 square feet, the home features four bedrooms, three and one-half baths, and an attached heated two-car garage, all set on an extra-large floor plan facing a quiet, tree-lined street. An open-concept second level is defined by soaring 11-foot floor-to-ceiling windows, a gas fireplace, remote-controlled blinds, fully automated AV and a flexible living/dining space ideal for everyday living and entertaining. The chef's kitchen has been thoughtfully updated with new appliances, refinished cabinetry, a generous pantry, and a wide balcony for grilling or gatherings. Multi-room speaker surround sound system on Sonos network and integrated smart-home features, including Alexa-controlled lighting, further enhance the experience. The primary suite offers custom built-ins, a walk-in closet, and a spa-style bath with a soaking tub, separate glass shower, and double vanity. A first-floor ensuite suite provides flexibility for guests or extended family. Additional features include new hardwood floors, a finished mudroom, newer furnace, AC, and water heater. The crowning feature of the residence is a private wraparound Trex rooftop deck, newly completed in 2023, with sweeping city views-perfect for entertaining, gardening, or quiet relaxation above the city. Located just blocks from the Magnificent Mile, the Lakefront, River Walk, Navy Pier, Ogden Slip, and Chicago's finest dining, shopping, and cultural attractions, this home represents a rare opportunity to own both space and lifestyle in one of the city's most dynamic neighborhoods.

Highlights:

  • Gas fireplace with 11-foot floor-to-ceiling windows

  • Chef's kitchen with updated appliances and refinished cabinetry

  • Private wraparound Trex rooftop deck with city views

  • Integrated smart-home features including Alexa-controlled lighting

  • Spa-style bath with soaking tub and separate glass shower

  • Show More Show Less
Walk-Thru
Reference ID:12484610 Web ID:wjll

Listed by Eric Newman | @properties Christie’s International Real Estate

Contact email form:

Highlights:

  • Gas fireplace with 11-foot floor-to-ceiling windows

  • Chef's kitchen with updated appliances and refinished cabinetry

  • Private wraparound Trex rooftop deck with city views

  • Integrated smart-home features including Alexa-controlled lighting

  • Spa-style bath with soaking tub and separate glass shower