Lits: 4
Thermes:4 Complet | 1 Demi

1851 North Halsted Street #2, Chicago, Illinois, 60614, États-Unis

Répertorié par : Justin Lucas | @properties Christie’s International Real Estate

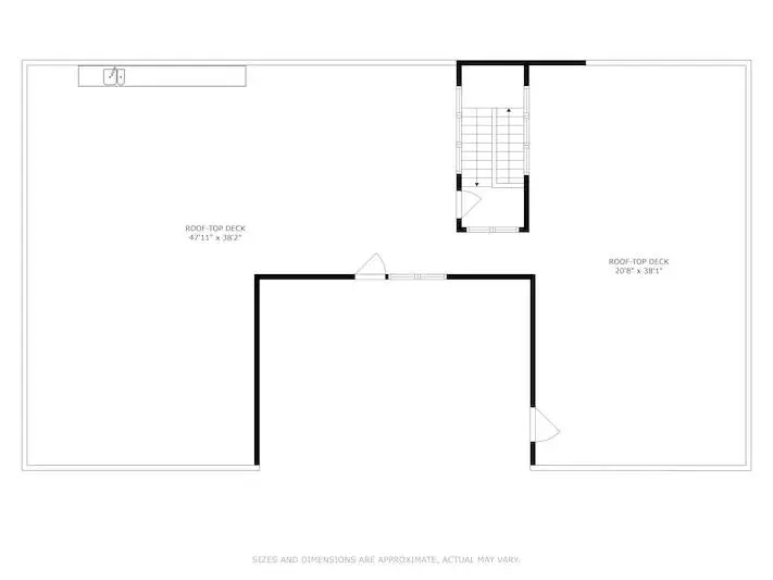
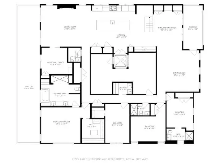
Step directly from your private elevator into nearly 4,000 square feet of flawless single-level living, where every detail has been masterfully curated to embody timeless sophistication and modern comfort. This extraordinary residence boasts 4 en-suite bedrooms, 4 full baths, and a powder room, all appointed with exquisite finishes and thoughtful design. The home's expansive chef's kitchen is a true showpiece, featuring custom cabinetry, a butler's pantry, double oven, and professional-grade appliances-all seamlessly flowing into the dramatic great room. Walls of glass open onto a spectacular 60-foot-wide terrace, creating an unrivaled setting for indoor-outdoor living and entertaining. The primary suite redefines luxury with its spa-caliber bath, complete with steam shower, heated floors, and an oversized soaking tub. Additional highlights include wide-plank white oak flooring, bespoke millwork, abundant built-in storage, a walk-in laundry room, and an attached two-car garage. With three private outdoor spaces totaling more than 1,000 square feet, the home offers a rare retreat from city life. Perfectly positioned on an exceptionally private stretch of Halsted-tucked behind Burling, with no alley-this residence enjoys a professionally landscaped oasis just steps from Armitage Avenue's boutiques, Michelin-starred dining, the zoo, and award-winning schools including Oscar Mayer. This is not simply a home-it is Lincoln Park's most exclusive offering.
Afficher plus Afficher moins

Step directly from your private elevator into nearly 4,000 square feet of flawless single-level living, where every detail has been masterfully curated to embody timeless sophistication and modern comfort. This extraordinary residence boasts 4 en-suite bedrooms, 4 full baths, and a powder room, all appointed with exquisite finishes and thoughtful design. The home's expansive chef's kitchen is a true showpiece, featuring custom cabinetry, a butler's pantry, double oven, and professional-grade appliances-all seamlessly flowing into the dramatic great room. Walls of glass open onto a spectacular 60-foot-wide terrace, creating an unrivaled setting for indoor-outdoor living and entertaining. The primary suite redefines luxury with its spa-caliber bath, complete with steam shower, heated floors, and an oversized soaking tub. Additional highlights include wide-plank white oak flooring, bespoke millwork, abundant built-in storage, a walk-in laundry room, and an attached two-car garage. With three private outdoor spaces totaling more than 1,000 square feet, the home offers a rare retreat from city life. Perfectly positioned on an exceptionally private stretch of Halsted-tucked behind Burling, with no alley-this residence enjoys a professionally landscaped oasis just steps from Armitage Avenue's boutiques, Michelin-starred dining, the zoo, and award-winning schools including Oscar Mayer. This is not simply a home-it is Lincoln Park's most exclusive offering.

Points forts:

  • Ascenseur privé

  • Chef's kitchen with custom cabinetry

  • Murs de verre

  • Spectacular 60-foot-wide terrace

  • Bain de calibre spa avec douche à vapeur

  • Parquet en chêne blanc à larges lames

  • Menuiserie sur mesure

  • Abundant built-in storage

  • Trois espaces extérieurs privés

  • Professionally landscaped oasis

  • Afficher plus Afficher moins
Visite guidée
ID de référence :12464608 Identifiant Web :fhnx

Répertorié par Justin Lucas | @properties Christie’s International Real Estate

Contact by phone:  3129890512
Formulaire de contact par e-mail :

Points forts:

  • Ascenseur privé

  • Chef's kitchen with custom cabinetry

  • Murs de verre

  • Spectacular 60-foot-wide terrace

  • Bain de calibre spa avec douche à vapeur

  • Parquet en chêne blanc à larges lames

  • Menuiserie sur mesure

  • Abundant built-in storage

  • Trois espaces extérieurs privés

  • Professionally landscaped oasis