Beds:5
Baths:2 Full

19 Watkins Road, Avalon Beach, NSW, 2107, Australia

Listed by: Veronica Allen | Belle Property Australia

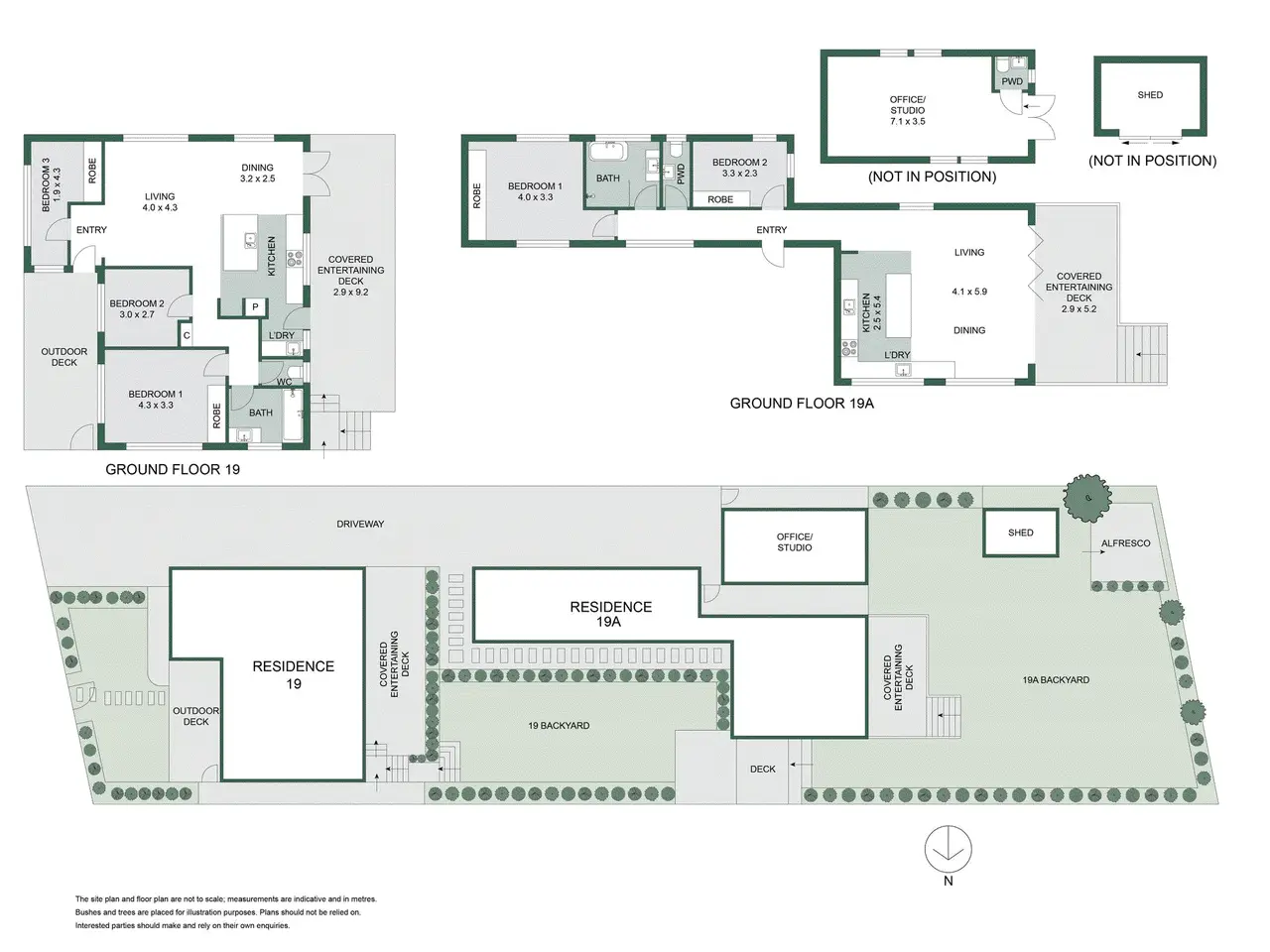
Completed just this year, the transformation of this property is simply astonishing; the creativity the design has created a wow-factor that's right off the charts. Now zoned for dual occupancy, there are two stunning homes on a single title, each one embracing a cool, beachside aesthetic to dazzling effect. Adding further appeal is the absolute privacy between the dwellings – it's been cleverly sited to provide each cottage with entirely separate entrances, lawns and gardens with views over the Norfolk Pines. Both homes are drenched with natural light; the interiors are impeccably curated, with the fresh neutral tones joined by a richly-textured material palette. There's an exceptional opportunity here for multi-generational living or shared ownership; the dual-occupancy also allows new owners to rent out one dwelling while living in the other, all in a prime North Avalon pocket. - Two chic beachside cottages, one title; perfect for shared ownership - Each feature private gardens with sheltered decks and level lawns - Both completed in 2024; open plan layouts and premium appointments - Ideal for extended families or as a passive income stream for buyers - Property is beautifully landscaped, affording privacy and greenery - Wide-plank oak floors, plantation shutters, R/C air conditioning - Dwelling 1 features a marble-topped kitchen with servery and French doors to the deck, three bedrooms, BIRs, luxe bathroom - Dwelling 2 includes a stone/induction kitchen, bifolds to the deck, two bedrooms, bathroom and a large, finished studio that can easily connect via a breezeway to the home, for additional living space, home office or detached 3rd bedroom - Clearly, its North Avalon's most versatile and stylish new offering
Show More Show Less

Completed just this year, the transformation of this property is simply astonishing; the creativity the design has created a wow-factor that's right off the charts. Now zoned for dual occupancy, there are two stunning homes on a single title, each one embracing a cool, beachside aesthetic to dazzling effect. Adding further appeal is the absolute privacy between the dwellings – it's been cleverly sited to provide each cottage with entirely separate entrances, lawns and gardens with views over the Norfolk Pines. Both homes are drenched with natural light; the interiors are impeccably curated, with the fresh neutral tones joined by a richly-textured material palette. There's an exceptional opportunity here for multi-generational living or shared ownership; the dual-occupancy also allows new owners to rent out one dwelling while living in the other, all in a prime North Avalon pocket. - Two chic beachside cottages, one title; perfect for shared ownership - Each feature private gardens with sheltered decks and level lawns - Both completed in 2024; open plan layouts and premium appointments - Ideal for extended families or as a passive income stream for buyers - Property is beautifully landscaped, affording privacy and greenery - Wide-plank oak floors, plantation shutters, R/C air conditioning - Dwelling 1 features a marble-topped kitchen with servery and French doors to the deck, three bedrooms, BIRs, luxe bathroom - Dwelling 2 includes a stone/induction kitchen, bifolds to the deck, two bedrooms, bathroom and a large, finished studio that can easily connect via a breezeway to the home, for additional living space, home office or detached 3rd bedroom - Clearly, its North Avalon's most versatile and stylish new offering

Highlights:

  • Chic beachside cottages with private gardens and decks

  • Premium material palette including marble and stone surfaces

  • Open plan layouts with wide-plank oak floors and plantation shutters

  • Dual-occupancy setup ideal for extended families or rental income

  • French doors, bifold doors, and breezeway connecting living spaces

  • R/C air conditioning for year-round comfort

  • Luxurious bathrooms with high-end fixtures

  • Stunning landscaped grounds with privacy and greenery

  • Show More Show Less
  • Finished studio for home office or additional living space

Reference ID:77P3098 Web ID:nfvt

Listed by Veronica Allen | Belle Property Australia

Contact by phone:  0404 526 290
Contact email form:

Highlights:

  • Chic beachside cottages with private gardens and decks

  • Premium material palette including marble and stone surfaces

  • Open plan layouts with wide-plank oak floors and plantation shutters

  • Dual-occupancy setup ideal for extended families or rental income

  • French doors, bifold doors, and breezeway connecting living spaces

  • R/C air conditioning for year-round comfort

  • Luxurious bathrooms with high-end fixtures

  • Stunning landscaped grounds with privacy and greenery

  • Finished studio for home office or additional living space

Continue Exploring Related Collections