Lits: 4
Thermes:3 complets | 1 demi

3949 Waldenwood Drive, Ann Arbor, Michigan, 48105, États-Unis

Répertorié par : David Anderson | Services immobiliers Howard Hanna

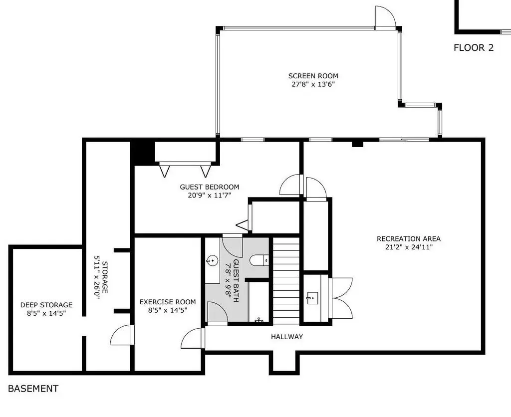
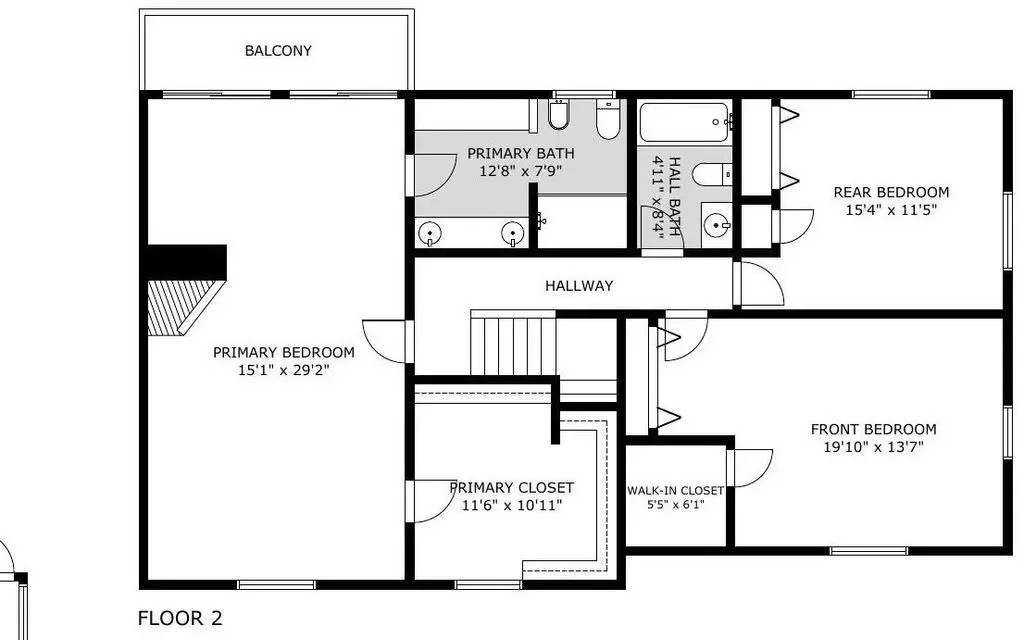
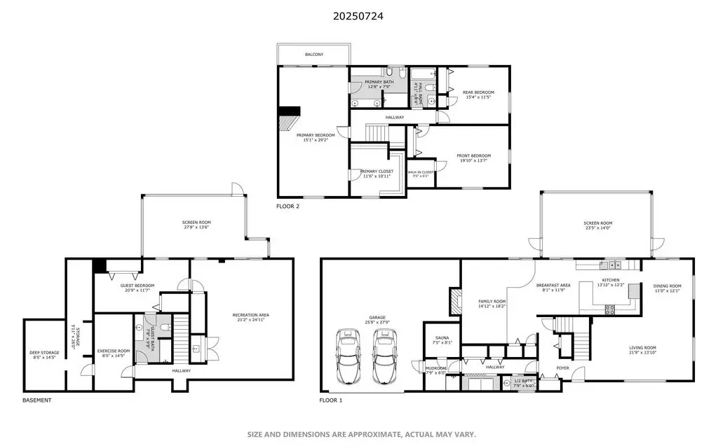
With an up-north vibe, Ann Arbor conveniences and a short stroll to King Elementary (.4 mi) or Greenhills (.6 mi), this light-filled colonial is the perfect retreat. Large windows from every room bring the wooded view inside. Or you can just go out onto any of the decks or screen rooms and be there in person! The bright central kitchen is the hub of the main floor, but the party is down in the walkout basement. The huge real wood-paneled recreation area (with wet bar) also leads to the lower screen house and deck, the 4th bedroom/guest room/office with attached bath, an exercise room and plenty of storage options. Over 3500 sq ft of living space means room for everything. Home Energy Score of 1. Download report at stream.a2gov.org.
Afficher plus Afficher moins

With an up-north vibe, Ann Arbor conveniences and a short stroll to King Elementary (.4 mi) or Greenhills (.6 mi), this light-filled colonial is the perfect retreat. Large windows from every room bring the wooded view inside. Or you can just go out onto any of the decks or screen rooms and be there in person! The bright central kitchen is the hub of the main floor, but the party is down in the walkout basement. The huge real wood-paneled recreation area (with wet bar) also leads to the lower screen house and deck, the 4th bedroom/guest room/office with attached bath, an exercise room and plenty of storage options. Over 3500 sq ft of living space means room for everything. Home Energy Score of 1. Download report at stream.a2gov.org.

Points forts:

  • Wood-paneled recreation area with wet bar

  • Plusieurs terrasses et salles d'écran

  • Bright central kitchen hub

  • Sous-sol avec sortie

  • Large windows with wooded views

  • Afficher plus Afficher moins
Visite guidée
ID de référence :25039673 Identifiant Web :klex

Répertorié par David Anderson | Services immobiliers Howard Hanna

Formulaire de contact par e-mail :

Points forts:

  • Wood-paneled recreation area with wet bar

  • Plusieurs terrasses et salles d'écran

  • Bright central kitchen hub

  • Sous-sol avec sortie

  • Large windows with wooded views