Beds:4
Baths:2 Full | 2 Half

6000 33rd Street Northwest, Washington, District Of Columbia, 20015, USA

Listed by: Peter M Crawford | Long & Foster® Real Estate, Inc.

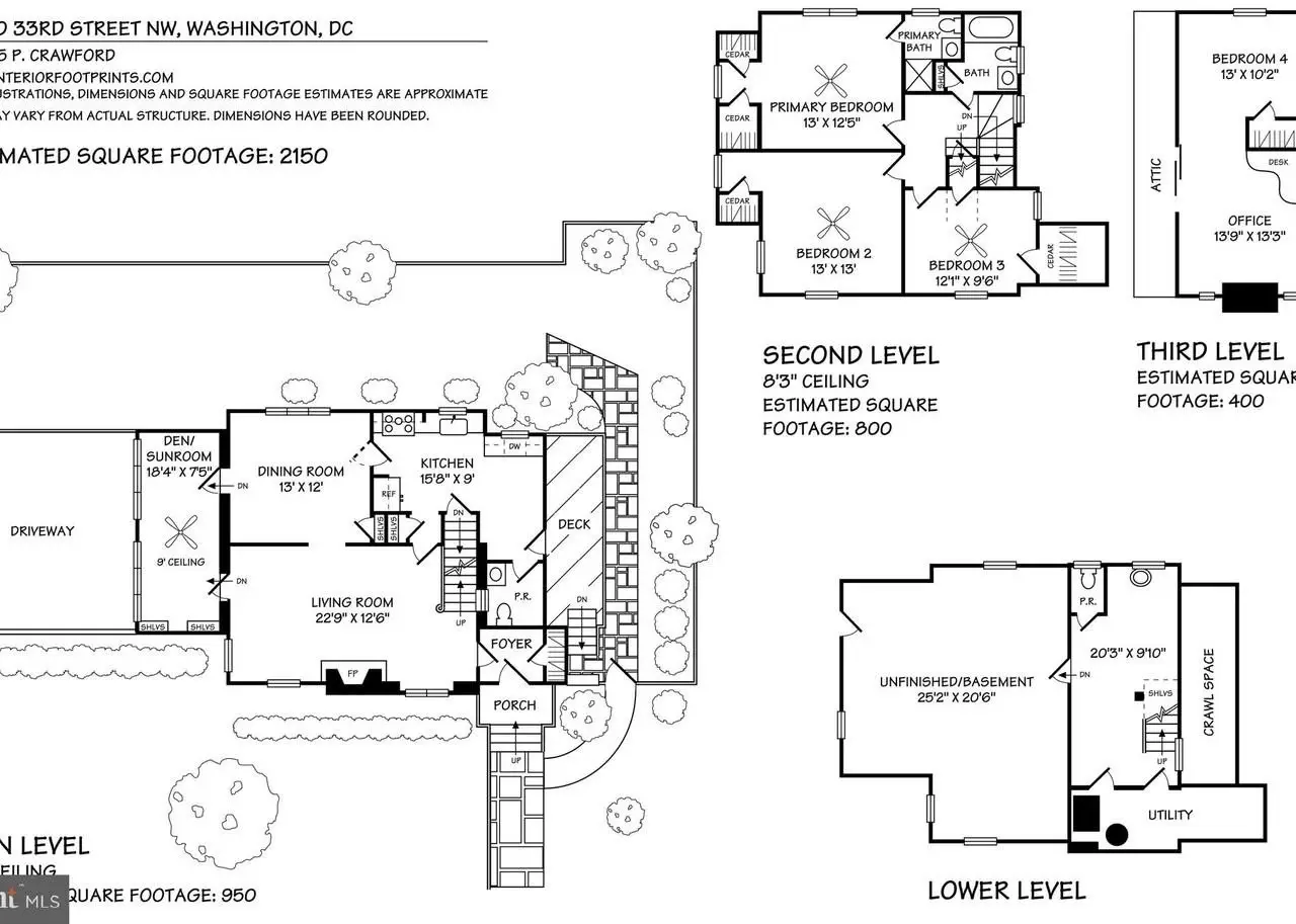
Location, Location, Location! This charming Tudor, with all new major systems, is sure to delight. Right across the street from Lafayette-Pointer Park and Lafayette School, offering terrific spaces for play, dogs, and tennis, too. Two blocks to the wonderful Broad Branch Market, a few blocks to the trails of Rock Creek Park. Or just a short stroll to the shops and restaurants along Connecticut Avenue. Step through the arched front door to the entry vestibule with coat closet, and on to the spacious living room with wood-burning fireplace, dining room, side den/sun room and powder room. The gourmet-style kitchen has been renovated with grey cabinets, white fleck Silestone counter tops, new tile flooring, stainless steel appliances, and a deep stainless farmhouse sink. From the kitchen a door leads to the side deck-a perfect location for your BBQ grill. Upstairs you will find three generous bedrooms and two full baths to include an en-suite bath in the primary bedroom. Fixed stairs from the hall lead to the finished attic-a perfect fourth bedroom with additional knee wall storage. The lower level is currently unfinished, but has a large foot print to convert into a separate apartment, office or additional living space (game room, gym, etc). Since 2022, the current owners have replaced or updated all of the major systems including: new gas boiler (2022); new copper piping throughout (2023); new on-demand tankless hot water heater (2023); new mini-split ceiling recessed AC systems on upper level and top floor; new front loading washer and dryer (2023); new refrigerator (2023).
Show More Show Less

Location, Location, Location! This charming Tudor, with all new major systems, is sure to delight. Right across the street from Lafayette-Pointer Park and Lafayette School, offering terrific spaces for play, dogs, and tennis, too. Two blocks to the wonderful Broad Branch Market, a few blocks to the trails of Rock Creek Park. Or just a short stroll to the shops and restaurants along Connecticut Avenue. Step through the arched front door to the entry vestibule with coat closet, and on to the spacious living room with wood-burning fireplace, dining room, side den/sun room and powder room. The gourmet-style kitchen has been renovated with grey cabinets, white fleck Silestone counter tops, new tile flooring, stainless steel appliances, and a deep stainless farmhouse sink. From the kitchen a door leads to the side deck-a perfect location for your BBQ grill. Upstairs you will find three generous bedrooms and two full baths to include an en-suite bath in the primary bedroom. Fixed stairs from the hall lead to the finished attic-a perfect fourth bedroom with additional knee wall storage. The lower level is currently unfinished, but has a large foot print to convert into a separate apartment, office or additional living space (game room, gym, etc). Since 2022, the current owners have replaced or updated all of the major systems including: new gas boiler (2022); new copper piping throughout (2023); new on-demand tankless hot water heater (2023); new mini-split ceiling recessed AC systems on upper level and top floor; new front loading washer and dryer (2023); new refrigerator (2023).

Highlights:

  • Wood-burning fireplace

  • Gourmet table-space kitchen

  • En-suite bath in primary bedroom

  • Finished attic as 4th bedroom

  • Stainless steel appliances

  • Side deck for BBQ grill

  • Custom grey cabinets

  • Silestone countertops

  • Farmhouse sink

  • Show More Show Less
Reference ID:DCDC2215084 Web ID:jami

Listed by Peter M Crawford | Long & Foster® Real Estate, Inc.

Contact by phone:  8885360216
Contact email form:

Highlights:

  • Wood-burning fireplace

  • Gourmet table-space kitchen

  • En-suite bath in primary bedroom

  • Finished attic as 4th bedroom

  • Stainless steel appliances

  • Side deck for BBQ grill

  • Custom grey cabinets

  • Silestone countertops

  • Farmhouse sink