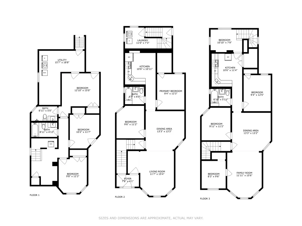
Beds:9
Baths:4 Full

1442 West Irving Park Road, Chicago, Illinois, 60613, USA

Listed by: Barrie Jessome | Baird & Warner

Renovated 2-Flat in Prime Lakeview - High-Performing Airbnb Investment 1442 W Irving Park Road is a rare and exceptional opportunity to own a renovated, turnkey 2-flat currently operating as a high-performing Airbnb investment. This professionally managed property offers 9 bedrooms and 4 full bathrooms across two units: the top floor features 4 bedrooms and 2 bathrooms, and the duplex-down unit offers 5 bedrooms and 2 bathrooms. Each unit is thoughtfully designed, fully furnished, and optimized for short-term rental success. Inside, you'll find stylish, modern finishes including granite countertops in the kitchens, stainless steel appliances, sleek cabinetry, updated bathrooms, smart-home technology, and in-unit laundry in both units. The spacious layouts and generous bedroom sizes create an inviting atmosphere ideal for group stays, multigenerational living, or long-term tenants. Whether you're an out-of-state investor seeking a plug-and-play asset or a buyer looking to live in one unit while generating income from the other, this property is ready to deliver strong and consistent returns.
Show More Show Less

Renovated 2-Flat in Prime Lakeview - High-Performing Airbnb Investment 1442 W Irving Park Road is a rare and exceptional opportunity to own a renovated, turnkey 2-flat currently operating as a high-performing Airbnb investment. This professionally managed property offers 9 bedrooms and 4 full bathrooms across two units: the top floor features 4 bedrooms and 2 bathrooms, and the duplex-down unit offers 5 bedrooms and 2 bathrooms. Each unit is thoughtfully designed, fully furnished, and optimized for short-term rental success. Inside, you'll find stylish, modern finishes including granite countertops in the kitchens, stainless steel appliances, sleek cabinetry, updated bathrooms, smart-home technology, and in-unit laundry in both units. The spacious layouts and generous bedroom sizes create an inviting atmosphere ideal for group stays, multigenerational living, or long-term tenants. Whether you're an out-of-state investor seeking a plug-and-play asset or a buyer looking to live in one unit while generating income from the other, this property is ready to deliver strong and consistent returns.

Highlights:

  • Granite countertops

  • Stainless steel appliances

  • Sleek cabinetry

  • Smart-home technology

  • Updated bathrooms

  • Show More Show Less
Reference ID:12427797 Web ID:zrib

Listed by Barrie Jessome | Baird & Warner

Contact by phone:  773-991-3640
Contact email form:

Highlights:

  • Granite countertops

  • Stainless steel appliances

  • Sleek cabinetry

  • Smart-home technology

  • Updated bathrooms