Beds:5
Baths:5 Full | 2 Half

514 Anchorage Drive, North Palm Beach, Florida, 33408, USA

Listed by: Kevin Spina | The Keyes Company

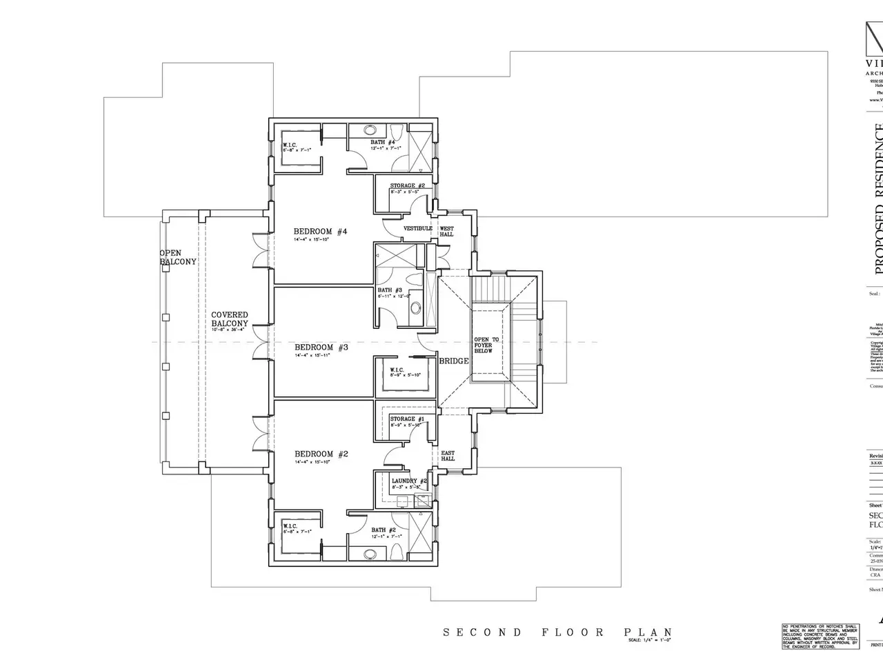
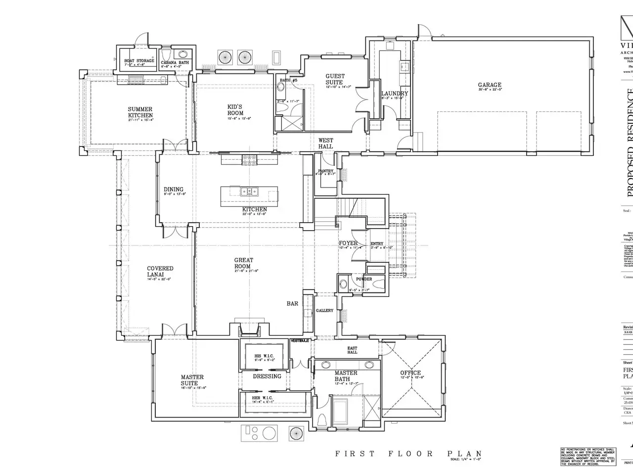
Build your dream estate in the highly coveted Village of North Palm Beach! This custom waterfront property presents a rare opportunity to own nearly an acre (0.8335 acres) with 107 feet of prime water frontage on the scenic Earman River. Custom architectural plans by renowned luxury builder Foster Banyan Building & Development envision an elegant residence with five bedrooms, five full baths, two half baths, an office, and a den, all within 5,180 air conditioned square feet and 7,508 total square feet. Unique to this property, the oversized lot allows for design flexibility, including an optional 1,000 square foot casita (estimated $650,000) or additional garage. The casita design offers a private one bedroom, one bath guest retreat with family room, morning bar, separate laundry, and a breezeway connection to the main home.
Show More Show Less

Build your dream estate in the highly coveted Village of North Palm Beach! This custom waterfront property presents a rare opportunity to own nearly an acre (0.8335 acres) with 107 feet of prime water frontage on the scenic Earman River. Custom architectural plans by renowned luxury builder Foster Banyan Building & Development envision an elegant residence with five bedrooms, five full baths, two half baths, an office, and a den, all within 5,180 air conditioned square feet and 7,508 total square feet. Unique to this property, the oversized lot allows for design flexibility, including an optional 1,000 square foot casita (estimated $650,000) or additional garage. The casita design offers a private one bedroom, one bath guest retreat with family room, morning bar, separate laundry, and a breezeway connection to the main home.

Highlights:

  • Waterfront location with 107 feet of prime frontage

  • Custom architectural plans by Foster Banyan Building & Development

  • Oversized lot for design flexibility

  • Optional 1,000 square foot casita

  • Private one bedroom guest retreat with family room

  • Morning bar

  • Separate laundry room

  • Breezeway connection to main home

  • Show More Show Less
Walk-Thru
Reference ID:R11118813 Web ID:wxww

Listed by Kevin Spina | The Keyes Company

Contact email form:

Highlights:

  • Waterfront location with 107 feet of prime frontage

  • Custom architectural plans by Foster Banyan Building & Development

  • Oversized lot for design flexibility

  • Optional 1,000 square foot casita

  • Private one bedroom guest retreat with family room

  • Morning bar

  • Separate laundry room

  • Breezeway connection to main home