Beds:3
Baths:2 Full

700 Bow Line Drive, Naples, Florida, 34103, USA

Listed by: Joseph Caveney | William Raveis Real Estate

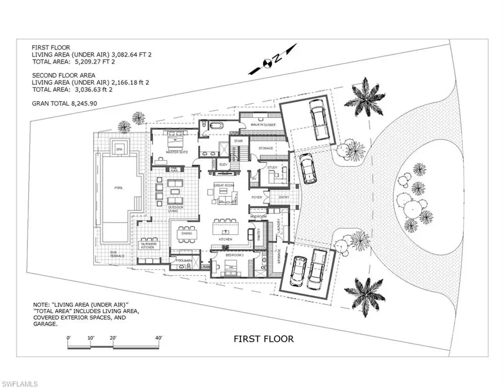
Opportunities to acquire an estate-sized parcel of this caliber in Naples are increasingly rareùparticularly one offering both southern and western exposure. Situated on nearly half an acre in the prestigious Moorings neighborhood, this property combines exceptional scale, desirable sunlight, and superior elevation, offering a distinctive opportunity for redevelopment or refinement. Set 12 feet above sea level and located in the X-flood zone, the site exceeds current FEMA and insurance requirements. With no history of flooding and a proven track record of resilience during hurricanes, it provides long-term security that few properties in coastal Naples can match. The setting is quiet, private, and well-positionedùenveloped by mature tropical landscaping and just minutes from Moorings Beach Club, Moorings Golf & Country Club, Fifth Avenue South, and the new Naples Four Seasons Resort. The existing ranch-style residence, built in 1962 and featuring a pool and spa, is offered as-is. Buyers may choose to enjoy the home in its current form, renovate to reflect their preferences, or design and construct a new custom estate befitting this remarkable site. To support redevelopment, conceptual architectural plans are included, offering a thoughtful framework for transforming the property to its full potential. Surrounded by multi-million-dollar custom homes, this parcel represents a rare opportunity to create a lasting legacy in one of Naples' most established and desirable neighborhoods.
Show More Show Less

Opportunities to acquire an estate-sized parcel of this caliber in Naples are increasingly rareùparticularly one offering both southern and western exposure. Situated on nearly half an acre in the prestigious Moorings neighborhood, this property combines exceptional scale, desirable sunlight, and superior elevation, offering a distinctive opportunity for redevelopment or refinement. Set 12 feet above sea level and located in the X-flood zone, the site exceeds current FEMA and insurance requirements. With no history of flooding and a proven track record of resilience during hurricanes, it provides long-term security that few properties in coastal Naples can match. The setting is quiet, private, and well-positionedùenveloped by mature tropical landscaping and just minutes from Moorings Beach Club, Moorings Golf & Country Club, Fifth Avenue South, and the new Naples Four Seasons Resort. The existing ranch-style residence, built in 1962 and featuring a pool and spa, is offered as-is. Buyers may choose to enjoy the home in its current form, renovate to reflect their preferences, or design and construct a new custom estate befitting this remarkable site. To support redevelopment, conceptual architectural plans are included, offering a thoughtful framework for transforming the property to its full potential. Surrounded by multi-million-dollar custom homes, this parcel represents a rare opportunity to create a lasting legacy in one of Naples' most established and desirable neighborhoods.

Highlights:

  • Custom ranch-style residence

  • Pool and spa

  • Superior elevation above sea level

  • X-flood zone location

  • Mature tropical landscaping

  • Conceptual architectural plans included

  • Show More Show Less
Reference ID:225068435 Web ID:roor

Listed by Joseph Caveney | William Raveis Real Estate

Contact by phone:  978-549-9195
Contact email form:

Highlights:

  • Custom ranch-style residence

  • Pool and spa

  • Superior elevation above sea level

  • X-flood zone location

  • Mature tropical landscaping

  • Conceptual architectural plans included