Beds:5
Baths:5 Full | 1 Half

1971 Napa Drive, Brentwood, Tennessee, 37027, USA

Listed by: Susan Gregory | Onward Real Estate

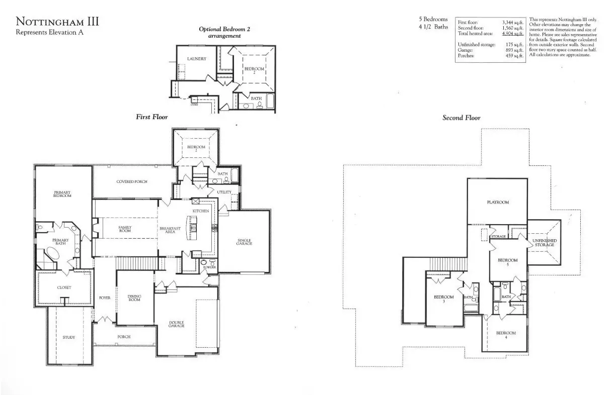
WOW! Luxury Living Awaits in Calistoga - Turnberry Homes' Newest Estate Neighborhood. Welcome to award-winning craftsmanship meeting the perfect blend of elegance and comfort. Nestled in a picturesque setting of rolling terrain and mature trees, this exclusive community offers a rare opportunity to own in one of the most coveted locations. The Nottingham Floor Plan (A Elevation) is designed for those who appreciate spacious, light-filled living. The vaulted family room with custom built-ins creates a grand yet inviting atmosphere, while the vaulted office provides the perfect space for work or quiet retreat. Enjoy the convenience of main-level living, featuring both the primary suite and a private guest suite on the first floor. Step outside to the covered back porch, where you can relax and take in the beauty of your surroundings. Upstairs, a spacious bonus room and walk-in storage offer endless possibilities for recreation and organization. A three-car garage completes this exceptional home. With premium homesites, full sod and irrigation, and incredible included features, this is an opportunity you won't want to miss.
Show More Show Less

WOW! Luxury Living Awaits in Calistoga - Turnberry Homes' Newest Estate Neighborhood. Welcome to award-winning craftsmanship meeting the perfect blend of elegance and comfort. Nestled in a picturesque setting of rolling terrain and mature trees, this exclusive community offers a rare opportunity to own in one of the most coveted locations. The Nottingham Floor Plan (A Elevation) is designed for those who appreciate spacious, light-filled living. The vaulted family room with custom built-ins creates a grand yet inviting atmosphere, while the vaulted office provides the perfect space for work or quiet retreat. Enjoy the convenience of main-level living, featuring both the primary suite and a private guest suite on the first floor. Step outside to the covered back porch, where you can relax and take in the beauty of your surroundings. Upstairs, a spacious bonus room and walk-in storage offer endless possibilities for recreation and organization. A three-car garage completes this exceptional home. With premium homesites, full sod and irrigation, and incredible included features, this is an opportunity you won't want to miss.

Highlights:

  • Custom built-ins

  • Vaulted ceilings

  • Main-level living

  • Covered back porch

  • Spacious bonus room

  • Three-car garage

  • Show More Show Less
Reference ID:2901656 Web ID:rkdj

Listed by Susan Gregory | Onward Real Estate

Contact by phone:  615-207-5600
Contact email form:

Highlights:

  • Custom built-ins

  • Vaulted ceilings

  • Main-level living

  • Covered back porch

  • Spacious bonus room

  • Three-car garage