Beds:7
Baths:4 Full

14 Britton Street, Jersey City, New Jersey, 07306, USA

Listed by: Magnolia Ocampo | Weichert Realtors

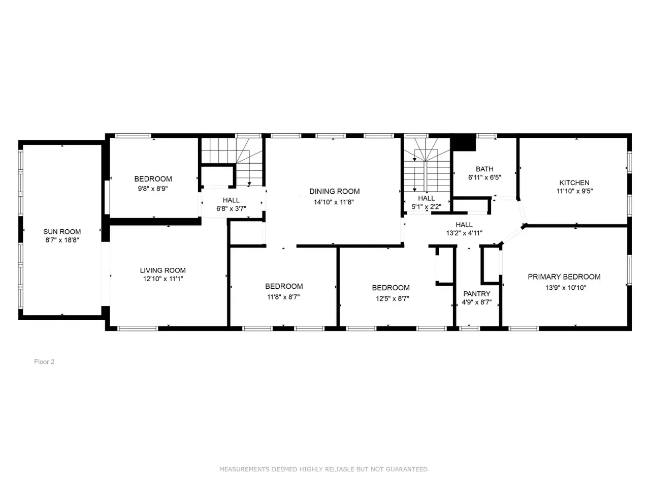
PRIME SOUGHT AFTER LOCATION, in Jersey City's burgeoning Journal Square district. The Journal Square district is a vibrant hub for commerce, residential development, and transportation. 14 Britton Street is a Large 2 Family solid brick home located on a beautiful residential tree-lined block. It is just a stone ??s throw from Saint Peter ??s University, and a short walk to Journal Square Train Station. Please refer to the photos, floor plans, and seller's property disclosure statement for more information. It cannot get any better than this: Location: Proximity to transportation, shopping, and community amenities can significantly impact a home's value Transportation Hub: Journal Square is a major transit center, with the PATH train providing convenient access to New York City. Solid Brick Construction: These homes are known for their durability and longevity, providing a strong and timeless aesthetic. It is not just a veneer. Investment Potential: These properties are often attractive to investors looking for income-producing assets. Owner-Occupancy: The separate units allow an owner to live in one unit while renting out the other. Development and Transformation: The area is currently undergoing significant transformation with substantial ongoing construction and new developments, which are reshaping the neighborhood's landscape. Residential Area: It serves as a growing residential area, with increasing rental options and a focus on providing housing to a diverse population. Cultural and Recreational Sites: The district is home to green spaces like Lincoln Park and Canco Park, offering athletic facilities, open spaces for events, and playgrounds. Note: Unit 1 is vacant. Unit 2 lease ends April 30, 2026.
Show More Show Less

PRIME SOUGHT AFTER LOCATION, in Jersey City's burgeoning Journal Square district. The Journal Square district is a vibrant hub for commerce, residential development, and transportation. 14 Britton Street is a Large 2 Family solid brick home located on a beautiful residential tree-lined block. It is just a stone ??s throw from Saint Peter ??s University, and a short walk to Journal Square Train Station. Please refer to the photos, floor plans, and seller's property disclosure statement for more information. It cannot get any better than this: Location: Proximity to transportation, shopping, and community amenities can significantly impact a home's value Transportation Hub: Journal Square is a major transit center, with the PATH train providing convenient access to New York City. Solid Brick Construction: These homes are known for their durability and longevity, providing a strong and timeless aesthetic. It is not just a veneer. Investment Potential: These properties are often attractive to investors looking for income-producing assets. Owner-Occupancy: The separate units allow an owner to live in one unit while renting out the other. Development and Transformation: The area is currently undergoing significant transformation with substantial ongoing construction and new developments, which are reshaping the neighborhood's landscape. Residential Area: It serves as a growing residential area, with increasing rental options and a focus on providing housing to a diverse population. Cultural and Recreational Sites: The district is home to green spaces like Lincoln Park and Canco Park, offering athletic facilities, open spaces for events, and playgrounds. Note: Unit 1 is vacant. Unit 2 lease ends April 30, 2026.

Highlights:

  • Solid Brick Construction

  • Proximity to Transportation

  • Investment Potential

  • Owner-Occupancy

  • Architectural Durability

  • Show More Show Less
Reference ID:250017848 Web ID:kxlk

Listed by Magnolia Ocampo | Weichert Realtors

Contact by phone:  9177760714
Contact email form:

Highlights:

  • Solid Brick Construction

  • Proximity to Transportation

  • Investment Potential

  • Owner-Occupancy

  • Architectural Durability