Amazing Opportunity in Bridle Trails
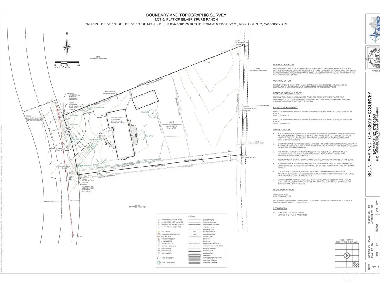
6140 130th Avenue Northeast, Kirkland, Washington, 98033, USA
Listed by: Julia and Mark Krill | Windermere Real Estate Western WA and OR
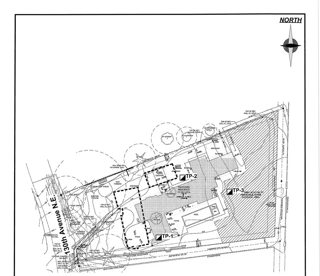
Amazing Opportunity in Bridle Trails! Live-in, Remodel or Build your Dream Home. Custom home plans for luxury 6,239 square foot two-story home with ADU plus five-car garage designed by Gerald Redding, Architect (in for permits). One of the last original properties in Silver Spurs surrounded by luxury estate homes. Sun drenched .97 acre lot has a peaceful and private setting, beautifully framed by mature landscaping. Existing home has new carpet and interior paint (2022) and open floor plan, generous room sizes and large windows for light-filled interior. Close to vibrant Kirkland waterfront and easy access to tech companies, Spring District, restaurants and retail. Excellent Lake Washington schools. Existing Home is on septic. Survey, Sewer Easement & Geotech reports available.
Highlights:
Mature landscaping
Large windows
Sun-drenched lot
Listed by Julia and Mark Krill | Windermere Real Estate Western WA and OR
Highlights:
Mature landscaping
Large windows
Sun-drenched lot
Custom home plans
Generous room sizes