To Be Built Home with a Perfect Plan
9 Melrose Drive #6, Cheshire, Connecticut, 06410, USA
Listed by: Dori DeGennaro | William Raveis Real Estate
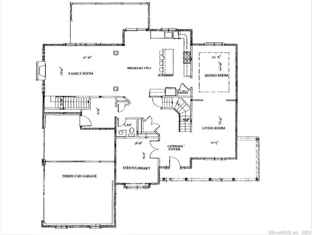
Presenting the Old Lyme model! This 4,015 sq ft TO BE BUILT colonial plan is perfection! This house has so many of today's must haves starting with a 2 story foyer, creating an grand entrance. Should you enter through the garage, you will walk through the mudroom with ship lap walls. The main living space on the first floor is a true open concept layout, from the spacious Eat in Kitchen into the Family Room with a triple window to let in natural light. The main level also offers a formal dining room with picture frame molding, formal living room, a home office with french doors and a half bath. Additionally, there is a second stair case off the Family room. The upper level features a Master Bedroom suite with a large sitting room and a gorgeous full bath with a double vanity, separate shower and free standing tub. Completing the 2nd floor are 2 other bedrooms, a full bath and laundry room. A special feature of this home is the 2nd floor Guest Suite that would serve well for company, in laws or for a family member needing a private space, as it has it's own full bath. Last but not least, who doesn't love a 3 car garage?
Highlights:
2 Story Foyer
Shiplap Walls in Mudroom
Open Concept Layout
Listed by Dori DeGennaro | William Raveis Real Estate
Highlights:
2 Story Foyer
Shiplap Walls in Mudroom
Open Concept Layout
Master Bedroom Suite with Sitting Room
Guest Suite with Full Bath
Triple Window in Family Room
Picture Frame Molding in Dining Room
Home Office with French Doors
Second Staircase
3 Car Garage