Remarkable Home Built to the Highest Standards
12 Beach Street, Tennyson Point, NSW, 2111, Australia
Listed by: Michael Gallina | Belle Property Australia
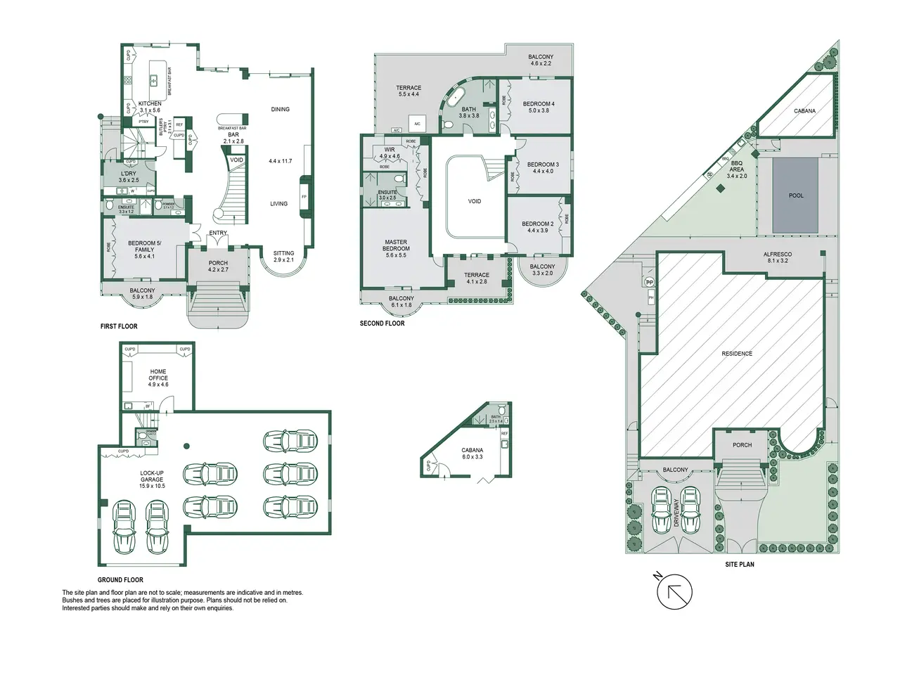
Realising a vision of sophistication by Arquero Architects, this remarkable home is built to the highest standards and curated with magnificent attention to detail. Light-filled spaces evoke beauty with a composition of bold curves and balanced proportions. Every room is imagined with luxury in mind, coming together in a superbly appointed home that features living spaces of pure class, a fantastic kitchen and butler's pantry, a showpiece pool with a cabana under northerly sunshine, and a refined office / man cave with its own bar. Complete with a prestige garage for up to seven cars, this extraordinary residence portrays luxury living of executive standard, in one of the best streets in the bay side suburb of Tennyson Point. The location is only moments from the CBD with bus and ferry transport nearby, while waterside parkland, quality schools, vibrant village hubs and major shopping centres are all set close by. - Architectural design & high-end finishes make this a home of rare calibre - Brick & concrete slab construction, hand-crafted imported steel doors - Arabescato marble surfaces, hand-crafted brass mortise door handles - Herringbone oak floors, curved American oak staircase has timber treads - Elegant open-plan living area is anchored by a landscape gas fireplace - Exquisite large designer kitchen & butler's pantry with marble benchtops - Custom-made curved glass, spacious master with sublime dressing area - Self-contained cabana for days by the pool, also guest accommodation - Garage can secure up to 7 cars, or offer space for a gym / health retreat - Heated pool with robotic cleaner, landscaped for beauty & functionality - Sonos surround sound throughout the home including the office / garage - Daikin air conditioning zoned with AirTouch Smart system, solar panels - Minutes to Putney village, schools, Gladesville and city bus
 
                     
                     
                     
                     
                     
                     
                     
                     
                     
             
                     
                     
        
    
            
     
        
    
            
     
        
    
            
     
        
    
            
     
        
    
            
     
        
    
            
     
        
    
            
     
        
    
           
        
    
           
        
    
          