Beds:0
Baths:0

1761 Oceanview Drive, St. Petersburg, Florida, 33715, USA

Listed by: Liz Heinkel | Smith & Associates Real Estate

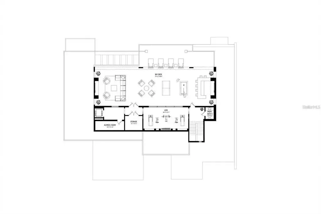
Prime Waterfront Land Ready for Your Dream Home today! This is one of the best waterfront opportunities in Pinellas County — nearly one acre on prestigious Oceanview Drive in Tierra Verde’s exclusive Westshore community, surrounded by luxury estates valued from $5M to $13M. With 150 feet of unobstructed waterfront and open Gulf of Mexico views, this property offers the perfect canvas to design and build a one-of-a-kind estate. Extensive preliminary work has already been completed by award-winning Windstar Homes, including plans, renderings, and initial design concepts, saving approximately six months of planning and design time. Whether you choose to build with Windstar or bring your own architect and builder, this site is ideal for creating a world-class residence with resort-style outdoor living. An existing single-family home currently sits on the lot, designed by acclaimed architect Carl Abbott, this custom-built residence offers panoramic water views from nearly every room, and could be remodeled, expanded, or removed. Enjoy the privacy and prestige of Oceanview Drive while being just minutes from St. Pete Beach, Downtown St. Petersburg, Fort De Soto Park, and the I-275 corridor. Don’t miss this rare chance to secure one of the last true Gulf-front estate lots in Tampa Bay.
Show More Show Less

Prime Waterfront Land Ready for Your Dream Home today! This is one of the best waterfront opportunities in Pinellas County — nearly one acre on prestigious Oceanview Drive in Tierra Verde’s exclusive Westshore community, surrounded by luxury estates valued from $5M to $13M. With 150 feet of unobstructed waterfront and open Gulf of Mexico views, this property offers the perfect canvas to design and build a one-of-a-kind estate. Extensive preliminary work has already been completed by award-winning Windstar Homes, including plans, renderings, and initial design concepts, saving approximately six months of planning and design time. Whether you choose to build with Windstar or bring your own architect and builder, this site is ideal for creating a world-class residence with resort-style outdoor living. An existing single-family home currently sits on the lot, designed by acclaimed architect Carl Abbott, this custom-built residence offers panoramic water views from nearly every room, and could be remodeled, expanded, or removed. Enjoy the privacy and prestige of Oceanview Drive while being just minutes from St. Pete Beach, Downtown St. Petersburg, Fort De Soto Park, and the I-275 corridor. Don’t miss this rare chance to secure one of the last true Gulf-front estate lots in Tampa Bay.

Highlights:

  • Waterfront location with unobstructed Gulf views

  • Prestigious Oceanview Drive in exclusive Westshore community

  • Extensive preliminary work completed by award-winning builder

  • Panoramic water views from nearly every room

  • Resort-style outdoor living potential

  • Designed by acclaimed architect Carl Abbott

  • Minutes from St. Pete Beach and Downtown St. Petersburg

  • Rare chance to secure Gulf-front estate lot

  • Show More Show Less
Reference ID:TB8422567 Web ID:wfhc

Listed by Liz Heinkel | Smith & Associates Real Estate

Contact by phone:  727-239-5623
Contact email form:

Highlights:

  • Waterfront location with unobstructed Gulf views

  • Prestigious Oceanview Drive in exclusive Westshore community

  • Extensive preliminary work completed by award-winning builder

  • Panoramic water views from nearly every room

  • Resort-style outdoor living potential

  • Designed by acclaimed architect Carl Abbott

  • Minutes from St. Pete Beach and Downtown St. Petersburg

  • Rare chance to secure Gulf-front estate lot