Beds:4
Baths:5 Full | 1 Half

60 Wood Oaks Drive, Barrington, Illinois, 60010, USA

Listed by: Steve McEwen | @properties Christie’s International Real Estate

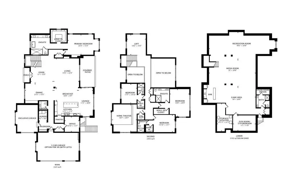
Recently appraised at $3.1 Million, seize the opportunity to move right into this beautiful brand-new "urban chic" contemporary luxury home at the Woods of South Barrington. The perfect east facing location where you can watch the sunset from your backyard overlooking a gorgeous pond. The only NEW construction luxury estate completed in 2025 (Certificate of Occupancy 07.08.2025), features nearly 9,000 sq. ft. of indoor living with the most extravagant finishes. Your eyes will light up as you approach the custom illuminated brick paver circular driveway. Sensational lighting and chandeliers will dazzle you with a functional open floor plan. A stunning chef's kitchen with Thermador appliances, plus formal dining room, lounge and executive office. First-floor primary bedroom suite and spa-like bath with radiant floors on the main level. The second floor features another master bedroom suite, home theatre, loft, and two spacious bedroom ensuites. The 3,700 sq. ft. finished basement gives you room to entertain with a recreation area, media & game area, full wet bar, full bath, and flex room. Expand your automobile portfolio and increase the capacity of the four-car garage with LIFTS to store up to SEVEN vehicles! Smart house technology option to control the temperature, exterior lighting, garage, security system and irrigation system with ease from your smart phone. The convenience of city water & sewer. No well. No septic. Option to build an in-ground swimming pool. "Award-winning" Barrington Schools and park district. Exciting shops, restaurants, and entertainment at The Arboretum of South Barrington are just one mile away. Walk, run or bike the nature path to Community Park with a playground, tennis courts, pro turf fields for soccer and lacrosse! Close to downtown Barrington and Metra train station. Easy access to I-90, O'Hare & Woodfield Mall. Stop dreaming. Start living the luxury lifestyle today at 60 Wood Oaks Drive, South Barrington!
Show More Show Less

Recently appraised at $3.1 Million, seize the opportunity to move right into this beautiful brand-new "urban chic" contemporary luxury home at the Woods of South Barrington. The perfect east facing location where you can watch the sunset from your backyard overlooking a gorgeous pond. The only NEW construction luxury estate completed in 2025 (Certificate of Occupancy 07.08.2025), features nearly 9,000 sq. ft. of indoor living with the most extravagant finishes. Your eyes will light up as you approach the custom illuminated brick paver circular driveway. Sensational lighting and chandeliers will dazzle you with a functional open floor plan. A stunning chef's kitchen with Thermador appliances, plus formal dining room, lounge and executive office. First-floor primary bedroom suite and spa-like bath with radiant floors on the main level. The second floor features another master bedroom suite, home theatre, loft, and two spacious bedroom ensuites. The 3,700 sq. ft. finished basement gives you room to entertain with a recreation area, media & game area, full wet bar, full bath, and flex room. Expand your automobile portfolio and increase the capacity of the four-car garage with LIFTS to store up to SEVEN vehicles! Smart house technology option to control the temperature, exterior lighting, garage, security system and irrigation system with ease from your smart phone. The convenience of city water & sewer. No well. No septic. Option to build an in-ground swimming pool. "Award-winning" Barrington Schools and park district. Exciting shops, restaurants, and entertainment at The Arboretum of South Barrington are just one mile away. Walk, run or bike the nature path to Community Park with a playground, tennis courts, pro turf fields for soccer and lacrosse! Close to downtown Barrington and Metra train station. Easy access to I-90, O'Hare & Woodfield Mall. Stop dreaming. Start living the luxury lifestyle today at 60 Wood Oaks Drive, South Barrington!

Highlights:

  • Thermador chef's kitchen

  • Radiant floors in spa-like bath

  • Home theatre and loft

  • Custom illuminated brick paver driveway

  • Sensational lighting and chandeliers

  • Smart house technology

  • Finished basement with wet bar

  • Elevator with capacity for seven vehicles

  • City water & sewer

  • Proximity to shops, dining & entertainment

  • Show More Show Less
Walk-Thru
Reference ID:12490290 Web ID:mflu

Listed by Steve McEwen | @properties Christie’s International Real Estate

Contact email form:

Highlights:

  • Thermador chef's kitchen

  • Radiant floors in spa-like bath

  • Home theatre and loft

  • Custom illuminated brick paver driveway

  • Sensational lighting and chandeliers

  • Smart house technology

  • Finished basement with wet bar

  • Elevator with capacity for seven vehicles

  • City water & sewer

  • Proximity to shops, dining & entertainment