Beds:0
Baths:0

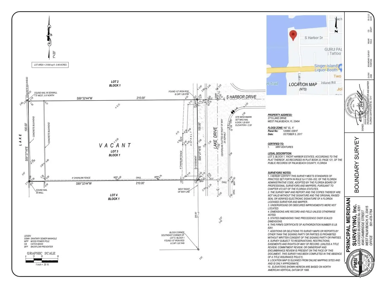
2715 Lake Drive, West Palm Beach, Florida, 33404, USA

Listed by: John O'Mahony | Illustrated Properties Real Estate, Inc.

Single family residential lot or RM-15 (7 units), in process of renewing submerged land lease with State of FL for 6 docks. Vacant land, easy to show. Please confirm schools boundaries, information not guaranteed.
Show More Show Less

Single family residential lot or RM-15 (7 units), in process of renewing submerged land lease with State of FL for 6 docks. Vacant land, easy to show. Please confirm schools boundaries, information not guaranteed.

Highlights:

  • Potential for 6 Docks

  • RM-15 Zoning for 7 Units

  • Vacant Lot

  • Show More Show Less
  • Easy to Show

Walk-Thru
Reference ID:R11052673 Web ID:dkau

Listed by John O'Mahony | Illustrated Properties Real Estate, Inc.

Contact email form:

Highlights:

  • Potential for 6 Docks

  • RM-15 Zoning for 7 Units

  • Vacant Lot

  • Easy to Show