Camas: 4
Balneario:3 completos

11806 Thunderbird Avenue, Los Ángeles, California, 91326, EE. UU.

Listado por: Diane MacLennan | Propiedades inmobiliarias de Pinnacle

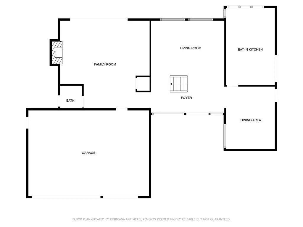
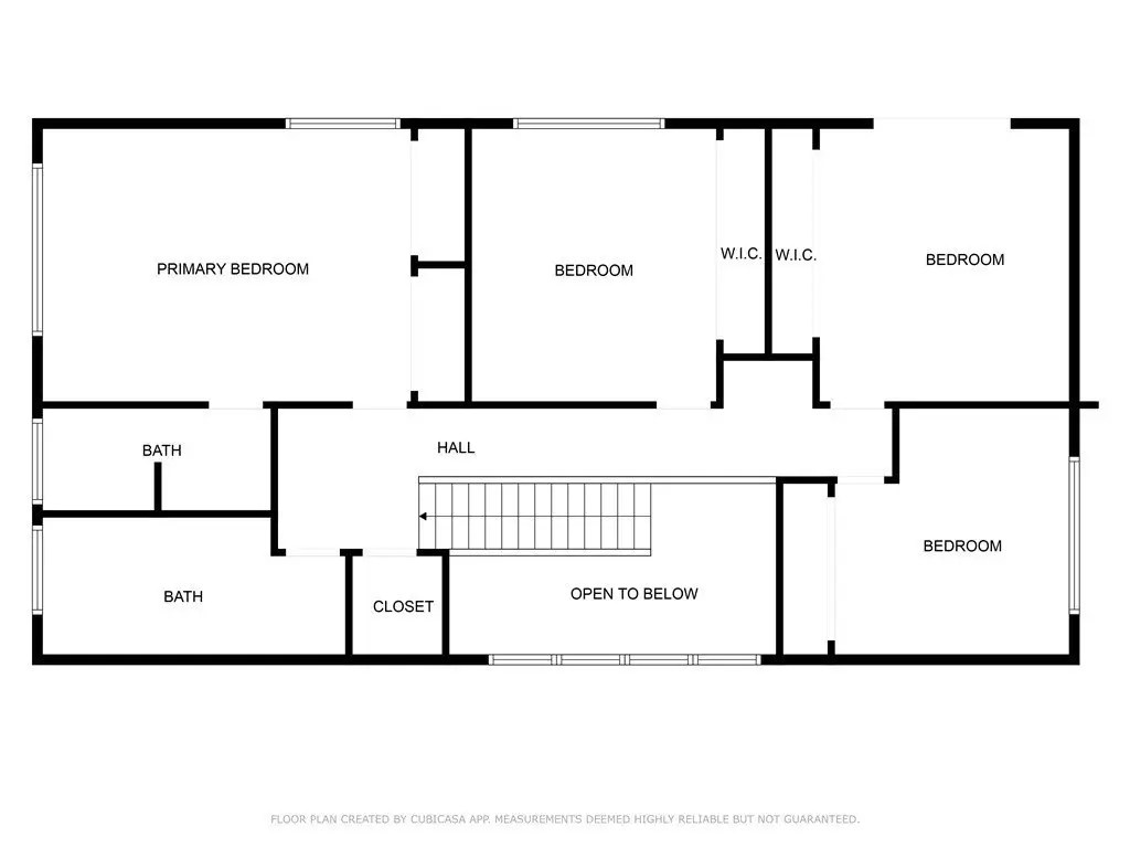
¡Vista! ¡Vista! ¡Vista! Bienvenido a esta impresionante casa de 4 dormitorios y 3 baños en el prestigioso vecindario de Porter Valley Country Club, que ofrece impresionantes vistas de las montañas y la ciudad. Esta casa cuenta con una entrada privada y cerrada que da paso a unas puertas dobles que se abren a un amplio vestíbulo de techos altos, que define el estilo de toda la residencia. Al entrar, las impresionantes vistas son evidentes de inmediato. Las ventanas de doble acristalamiento llenan la casa de luz natural, realzando el hermoso suelo de tablones de vinilo que se extiende por toda la planta baja. El diseño abierto es ideal tanto para la relajación como para el entretenimiento, con vistas a la montaña y la ciudad desde las salas de estar y los dormitorios. La cocina gourmet renovada cuenta con elegantes encimeras de granito, perfectas para cocinar y recibir invitados. Los baños se han renovado cuidadosamente con duchas con azulejos a medida, lo que realza el lujoso atractivo de la casa. La suite principal es un refugio, con techos altos, vistas, dos amplios armarios con espejo y suelos de tablones de vinilo. Al final del pasillo, un espacioso dormitorio con puerta corrediza de vidrio conduce a un balcón privado, el lugar perfecto para disfrutar de su café matutino mientras contempla el impresionante paisaje. Una escalera exterior desde el balcón ofrece fácil acceso al patio trasero desde el segundo piso. Salga al patio trasero, donde un patio cubierto y una piscina cristalina crean un espacio ideal para el entretenimiento al aire libre. Ya sea para recibir invitados o para relajarse en su propio oasis privado, las vistas siempre son espectaculares. Esta casa también cuenta con un amplio garaje para 3 autos, que ofrece amplio espacio de almacenamiento y estacionamiento. Apreciará la proximidad a escuelas galardonadas, como la Escuela Primaria Castlebay Lane y la Escuela Secundaria Charter Granada Hills. Cerca de rutas de senderismo, el centro comercial The Vineyards at Porter Ranch, cafeterías, Whole Foods, restaurantes, autopistas y más, la ubicación es inmejorable. Con su ubicación privilegiada, impresionantes vistas y numerosas mejoras, esta propiedad ofrece la combinación perfecta de lujo y comodidad.
Mostrar más Mostrar menos

¡Vista! ¡Vista! ¡Vista! Bienvenido a esta impresionante casa de 4 dormitorios y 3 baños en el prestigioso vecindario de Porter Valley Country Club, que ofrece impresionantes vistas de las montañas y la ciudad. Esta casa cuenta con una entrada privada y cerrada que da paso a unas puertas dobles que se abren a un amplio vestíbulo de techos altos, que define el estilo de toda la residencia. Al entrar, las impresionantes vistas son evidentes de inmediato. Las ventanas de doble acristalamiento llenan la casa de luz natural, realzando el hermoso suelo de tablones de vinilo que se extiende por toda la planta baja. El diseño abierto es ideal tanto para la relajación como para el entretenimiento, con vistas a la montaña y la ciudad desde las salas de estar y los dormitorios. La cocina gourmet renovada cuenta con elegantes encimeras de granito, perfectas para cocinar y recibir invitados. Los baños se han renovado cuidadosamente con duchas con azulejos a medida, lo que realza el lujoso atractivo de la casa. La suite principal es un refugio, con techos altos, vistas, dos amplios armarios con espejo y suelos de tablones de vinilo. Al final del pasillo, un espacioso dormitorio con puerta corrediza de vidrio conduce a un balcón privado, el lugar perfecto para disfrutar de su café matutino mientras contempla el impresionante paisaje. Una escalera exterior desde el balcón ofrece fácil acceso al patio trasero desde el segundo piso. Salga al patio trasero, donde un patio cubierto y una piscina cristalina crean un espacio ideal para el entretenimiento al aire libre. Ya sea para recibir invitados o para relajarse en su propio oasis privado, las vistas siempre son espectaculares. Esta casa también cuenta con un amplio garaje para 3 autos, que ofrece amplio espacio de almacenamiento y estacionamiento. Apreciará la proximidad a escuelas galardonadas, como la Escuela Primaria Castlebay Lane y la Escuela Secundaria Charter Granada Hills. Cerca de rutas de senderismo, el centro comercial The Vineyards at Porter Ranch, cafeterías, Whole Foods, restaurantes, autopistas y más, la ubicación es inmejorable. Con su ubicación privilegiada, impresionantes vistas y numerosas mejoras, esta propiedad ofrece la combinación perfecta de lujo y comodidad.

Reflejos:

  • Impresionantes vistas a la montaña y a la ciudad.

  • Gran vestíbulo de techos altos

  • Diseño de concepto abierto con luz natural.

  • Cocina gourmet renovada con encimeras de granito.

  • Duchas con azulejos personalizados en baños.

  • Suite principal con techos altos y armarios con espejos.

  • Balcón privado con impresionantes paisajes.

  • Patio cubierto y piscina cristalina

  • Amplio garaje para 3 coches

  • Cerca de escuelas y servicios galardonados

  • Mostrar más Mostrar menos
ID de referencia:SR25072996 Identificación web:lnwk

Listado por Diane MacLennan | Propiedades inmobiliarias de Pinnacle

Contact by phone:  8182826986
Formulario de correo electrónico de contacto:

Reflejos:

  • Impresionantes vistas a la montaña y a la ciudad.

  • Gran vestíbulo de techos altos

  • Diseño de concepto abierto con luz natural.

  • Cocina gourmet renovada con encimeras de granito.

  • Duchas con azulejos personalizados en baños.

  • Suite principal con techos altos y armarios con espejos.

  • Balcón privado con impresionantes paisajes.

  • Patio cubierto y piscina cristalina

  • Amplio garaje para 3 coches

  • Cerca de escuelas y servicios galardonados