Beds:4
Baths:3 Full | 1 Half

2040 Shermer Road, Northbrook, Illinois, 60062, USA

Listed by: Audra Casey | @properties Christie’s International Real Estate

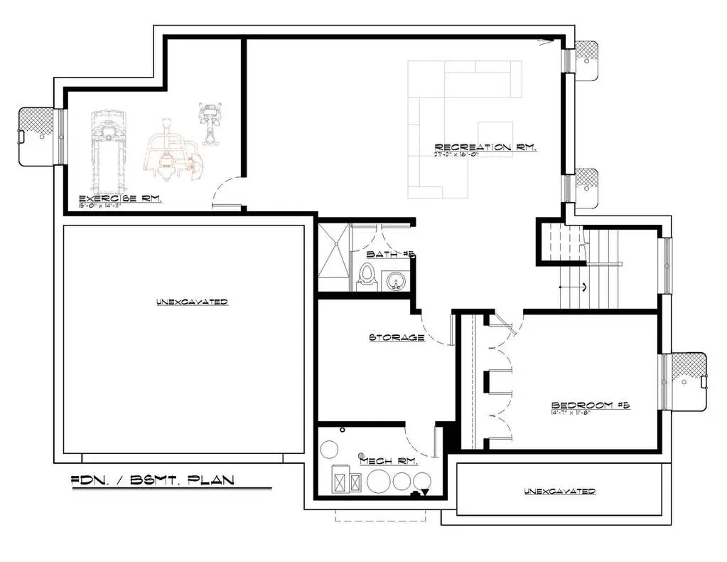
New proposed construction in a downtown Northbrook location on an oversized lot! Welcome to Techny Crossing - offering three custom new construction homes in the popular Wescott School District 30 and Glenbrook North High School District 225. Built by a reputable builder with experience building luxury residential and commercial offerings throughout the Chicagoland area. Some features of these homes include four second level bedrooms all with en-suite baths, a main floor office, mudroom and an open family room kitchen layout offering both a butler's pantry and walk-in panty. Homes will be 3,000-plus square feet and the lot sizes are 15,000 - 19,000 square feet. All the homes offer all top of the line finishes including hardwood floors, oak stairs, tray ceilings, solid core doors, 42-inch kitchen cabinetry with other kitchen detail such as dovetail/soft close drawers with crown molding and cabinet hardware, Thermador/Bosch appliances, Silestone Quartz or Granite countertops, and recessed lighting. Exterior features include stone or brick with James Hardie siding, 30-year architectural shingles, fully sodded and landscaped yard with a rear patio. Partially finished basements included with flooring, taped walls and bathroom. Walking distance to everything! New construction and in a highly sought after in-town location, so close to Village Green and Techny parks, schools, Metra, Library, and the restaurants and shops of downtown Northbrook. **Photos shown are of a recently completed home by the same builder**
Show More Show Less

New proposed construction in a downtown Northbrook location on an oversized lot! Welcome to Techny Crossing - offering three custom new construction homes in the popular Wescott School District 30 and Glenbrook North High School District 225. Built by a reputable builder with experience building luxury residential and commercial offerings throughout the Chicagoland area. Some features of these homes include four second level bedrooms all with en-suite baths, a main floor office, mudroom and an open family room kitchen layout offering both a butler's pantry and walk-in panty. Homes will be 3,000-plus square feet and the lot sizes are 15,000 - 19,000 square feet. All the homes offer all top of the line finishes including hardwood floors, oak stairs, tray ceilings, solid core doors, 42-inch kitchen cabinetry with other kitchen detail such as dovetail/soft close drawers with crown molding and cabinet hardware, Thermador/Bosch appliances, Silestone Quartz or Granite countertops, and recessed lighting. Exterior features include stone or brick with James Hardie siding, 30-year architectural shingles, fully sodded and landscaped yard with a rear patio. Partially finished basements included with flooring, taped walls and bathroom. Walking distance to everything! New construction and in a highly sought after in-town location, so close to Village Green and Techny parks, schools, Metra, Library, and the restaurants and shops of downtown Northbrook. **Photos shown are of a recently completed home by the same builder**

Highlights:

  • Tray ceilings

  • Solid core doors

  • Thermador/Bosch appliances

  • Stone or brick exterior

  • Hardwood floors

  • En-suite baths

  • Silestone Quartz countertops

  • Mudroom

  • Butler's pantry

  • Show More Show Less
Reference ID:11967143 Web ID:lshu

Listed by Audra Casey | @properties Christie’s International Real Estate

Contact email form:

Highlights:

  • Tray ceilings

  • Solid core doors

  • Thermador/Bosch appliances

  • Stone or brick exterior

  • Hardwood floors

  • En-suite baths

  • Silestone Quartz countertops

  • Mudroom

  • Butler's pantry