Camas: -
Balneario: -

11513 West Brown Deer Road #11513, Milwaukee, Wisconsin, 53224, USA

Listado por: Mary Ann Cavanaugh | Shorewest, AGENTES INMOBILIARIOS®

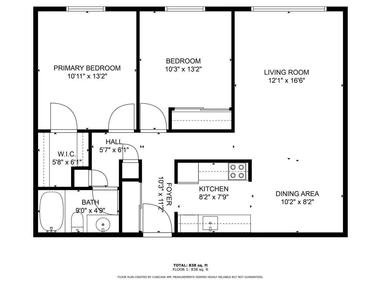
Sharp, two story brick exterior apartment building. All 36 units, are 2 bedroom and 1 bath. None of the units is identical. The square footages ranges from 875-1000 sq. feet. Eleven of the units have vinyl/LVP in the dinette area, matching the kitchen. Twenty-five units have carpet in the dinette area, matching the living room. Thirty-six storage lockers at $10/month rent. Nineteen garages. Two are used for trash enclosure and fourteen are rented at $65 per month. There are forty-three surface parking spots, four are handicap spots and three are visitor spots. The other thirty-six coordinate with each unit number as each resident gets one surface spot included with their rent. Landlord pays water, sewer, common area utilities and trash. Tenant pays electric and HVAC. Roof replaced in 2022. New rents are $1025 and higher. Great investment!
Mostrar más Mostrar menos

Sharp, two story brick exterior apartment building. All 36 units, are 2 bedroom and 1 bath. None of the units is identical. The square footages ranges from 875-1000 sq. feet. Eleven of the units have vinyl/LVP in the dinette area, matching the kitchen. Twenty-five units have carpet in the dinette area, matching the living room. Thirty-six storage lockers at $10/month rent. Nineteen garages. Two are used for trash enclosure and fourteen are rented at $65 per month. There are forty-three surface parking spots, four are handicap spots and three are visitor spots. The other thirty-six coordinate with each unit number as each resident gets one surface spot included with their rent. Landlord pays water, sewer, common area utilities and trash. Tenant pays electric and HVAC. Roof replaced in 2022. New rents are $1025 and higher. Great investment!

ID de referencia:3915239 Identificación web:cgbs

Listado por Mary Ann Cavanaugh | Shorewest, AGENTES INMOBILIARIOS®

Contact by phone:  414.405.4191
Formulario de correo electrónico de contacto: