Beds:3
Baths:0

Milano, Italy

Listed by: Lodovica VIGANÒ | Giorgio Vigano Real Estate

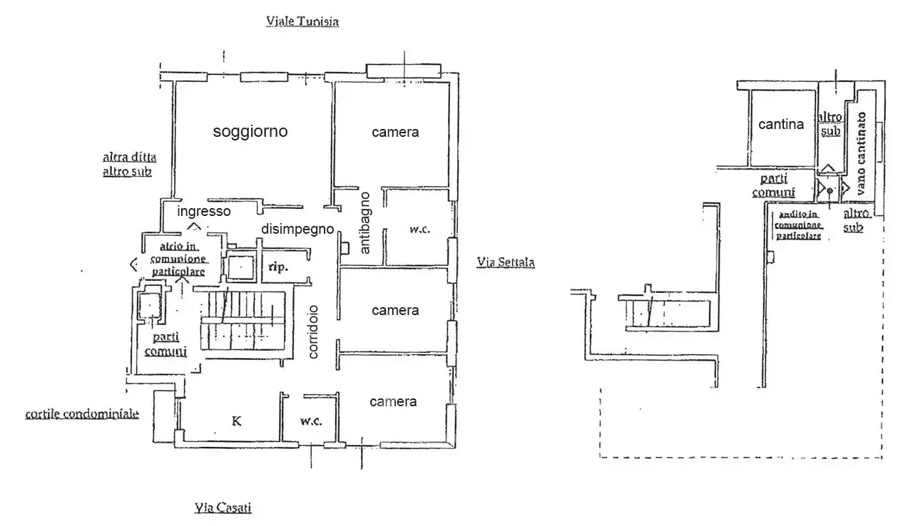
gv1367 - Via Settala - Between Porta Venezia and Repubblica, an elegant apartment with 1950’s charm. In the heart of Milan, between the elegance of Repubblica and the vibrancy of Porta Venezia, a bright 151sqm apartment combines sobriety and grace, offering a triple exposition, wide, functional and well-organized ambience. The apartment develops itself on the fifth floor of a 1950’s period building with large, elegant and very Milanese-chic spaces, served by an all day concierge service and double lifts. The master entrance opens onto the beautiful airy and welcoming double living room, where the surfaces in parquet draw timeless shapes and the natural light accompanies every moment of the day. A wardrobe area, already organized, extends itself to the side and merges into a well- suitably large and comfortable closet. The night area opens onto the magnificent master bedroom, immersed and illuminated by a silent balcony characterized by a panoramic view till the new Porta Nuova skyline and is introduced by a wide disengagement, to be organized, and a large en-suite bathroom with tub and double sinks. To follow two more bedrooms, both masters, served by a second bathroom with shower. The habitable kitchen, functional and comfortable, is linked to a balcony that opens internally and has its own second dedicated entrance. The double entrances make it an appealing residential and investment opportunity. With a small promenade you reach the subway Red stop MM1 Porta Venezia and the subway MM3 Repubblica with the railway link. A few minutes away you can also reach the Central Station with the subway MM2 and the links to the Malpensa and Bergamo Airports. Walking distance you find the Indro Montanelli Gardens, a historical and verdant green space in the heart of the city, while the surrounding streets offer a vibrant mix of boutiques, artisan shops, cafés, and restaurants that reflect the neighborhood’s lively spirit. Energetic class G – Ipe 247,2. € 945.000,00 - € 7.500,00 condo expenses. The choice of this property helps to support the mission of Theodora onlus. Photos, texts, plans, etc., are purely for indicative-illustrative purposes and do not constitute documents with contractual value and assumption. Giorgio Viganò Real Estate - 027636151 - www.giorgiovigano.com
Show More Show Less

gv1367 - Via Settala - Between Porta Venezia and Repubblica, an elegant apartment with 1950’s charm. In the heart of Milan, between the elegance of Repubblica and the vibrancy of Porta Venezia, a bright 151sqm apartment combines sobriety and grace, offering a triple exposition, wide, functional and well-organized ambience. The apartment develops itself on the fifth floor of a 1950’s period building with large, elegant and very Milanese-chic spaces, served by an all day concierge service and double lifts. The master entrance opens onto the beautiful airy and welcoming double living room, where the surfaces in parquet draw timeless shapes and the natural light accompanies every moment of the day. A wardrobe area, already organized, extends itself to the side and merges into a well- suitably large and comfortable closet. The night area opens onto the magnificent master bedroom, immersed and illuminated by a silent balcony characterized by a panoramic view till the new Porta Nuova skyline and is introduced by a wide disengagement, to be organized, and a large en-suite bathroom with tub and double sinks. To follow two more bedrooms, both masters, served by a second bathroom with shower. The habitable kitchen, functional and comfortable, is linked to a balcony that opens internally and has its own second dedicated entrance. The double entrances make it an appealing residential and investment opportunity. With a small promenade you reach the subway Red stop MM1 Porta Venezia and the subway MM3 Repubblica with the railway link. A few minutes away you can also reach the Central Station with the subway MM2 and the links to the Malpensa and Bergamo Airports. Walking distance you find the Indro Montanelli Gardens, a historical and verdant green space in the heart of the city, while the surrounding streets offer a vibrant mix of boutiques, artisan shops, cafés, and restaurants that reflect the neighborhood’s lively spirit. Energetic class G – Ipe 247,2. € 945.000,00 - € 7.500,00 condo expenses. The choice of this property helps to support the mission of Theodora onlus. Photos, texts, plans, etc., are purely for indicative-illustrative purposes and do not constitute documents with contractual value and assumption. Giorgio Viganò Real Estate - 027636151 - www.giorgiovigano.com

Highlights:

  • Parquet flooring

  • Double living room

  • Panoramic balcony with skyline view

  • Well-organized closet

  • En-suite bathroom with double sinks

  • Habitable kitchen with balcony

  • Concierge service

  • Elegant 1950's building

  • Master entrance

  • Triple exposition

  • Show More Show Less
Reference ID:86442977 Web ID:oshb

Listed by Lodovica VIGANÒ | Giorgio Vigano Real Estate

Contact email form:

Highlights:

  • Parquet flooring

  • Double living room

  • Panoramic balcony with skyline view

  • Well-organized closet

  • En-suite bathroom with double sinks

  • Habitable kitchen with balcony

  • Concierge service

  • Elegant 1950's building

  • Master entrance

  • Triple exposition