Beds:3
Baths:2 Full

24 National Street, Leichhardt, NSW, 2040, Australia

Listed by: Simone Azzi | Belle Property Australia

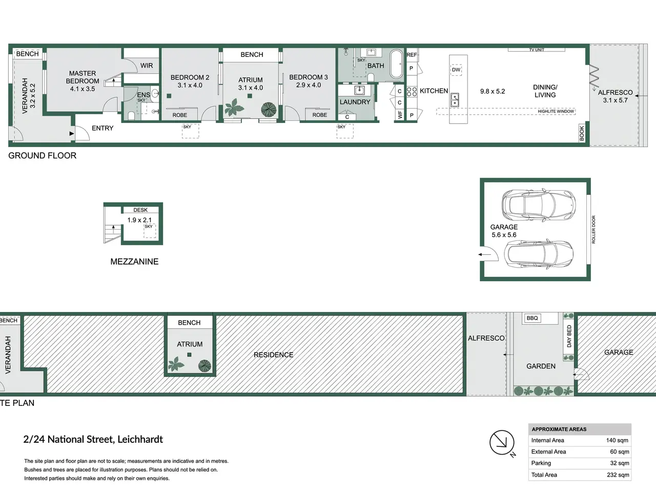
Step into a residence that redefines urban luxury-a home within the renowned Aeroplane Jelly Factory. Offering a rare combination of heritage charm and contemporary finesse, complete with a prized double lock-up garage and private outdoor spaces. Crafted for those who appreciate volume, light, and privacy, the interiors include soaring ceilings, exposed beams, and original sawtooth windows pay homage to the building's rich history, complemented by sleek finishes and thoughtful design. Sunlight pours through expansive panes, illuminating the open-plan layout and highlighting the home's architectural drama. The gourmet kitchen is tailored for entertainers and culinary enthusiasts alike. Featuring premium stainless steel accents and a bespoke island bench, it flows effortlessly into the spacious living and dining areas, which extend to an alfresco courtyard with a built in barbeque and daybed - perfect for hosting or relaxing in style. The master suite is a private retreat with a luxurious modern ensuite, walk-in wardrobe and an elevated loft-style study. Two additional bedrooms, each with built-in robes, open onto a tranquil central courtyard, offering a peaceful escape. A designer main bathroom with a full-sized tub and a separate internal laundry add to the home's practical appeal. Located in a quiet street and just a short stroll to cafés, schools, transport and MarketPlace. This is a rare opportunity to own an Inner West residence with an industrial heritage. • Expansive open-plan living with polished concrete floors and seamless indoor-outdoor entertaining areas • Designer kitchen with gas stove, stainless steel accents, and custom island • Master suite with luxe ensuite, walk-in robe and loft office • Two additional generous bedrooms with private courtyard access and built-in robes • Stylish main bathroom with bath and separate family laundry • Secure entry, air conditioning, and highly sought after double lock up garage via rear lane
Show More Show Less

Step into a residence that redefines urban luxury-a home within the renowned Aeroplane Jelly Factory. Offering a rare combination of heritage charm and contemporary finesse, complete with a prized double lock-up garage and private outdoor spaces. Crafted for those who appreciate volume, light, and privacy, the interiors include soaring ceilings, exposed beams, and original sawtooth windows pay homage to the building's rich history, complemented by sleek finishes and thoughtful design. Sunlight pours through expansive panes, illuminating the open-plan layout and highlighting the home's architectural drama. The gourmet kitchen is tailored for entertainers and culinary enthusiasts alike. Featuring premium stainless steel accents and a bespoke island bench, it flows effortlessly into the spacious living and dining areas, which extend to an alfresco courtyard with a built in barbeque and daybed - perfect for hosting or relaxing in style. The master suite is a private retreat with a luxurious modern ensuite, walk-in wardrobe and an elevated loft-style study. Two additional bedrooms, each with built-in robes, open onto a tranquil central courtyard, offering a peaceful escape. A designer main bathroom with a full-sized tub and a separate internal laundry add to the home's practical appeal. Located in a quiet street and just a short stroll to cafés, schools, transport and MarketPlace. This is a rare opportunity to own an Inner West residence with an industrial heritage. • Expansive open-plan living with polished concrete floors and seamless indoor-outdoor entertaining areas • Designer kitchen with gas stove, stainless steel accents, and custom island • Master suite with luxe ensuite, walk-in robe and loft office • Two additional generous bedrooms with private courtyard access and built-in robes • Stylish main bathroom with bath and separate family laundry • Secure entry, air conditioning, and highly sought after double lock up garage via rear lane

Highlights:

  • Heritage charm with contemporary finesse

  • Soaring ceilings and exposed beams

  • Original sawtooth windows

  • Gourmet kitchen with bespoke island bench

  • Alfresco courtyard with built-in barbeque

  • Master suite with luxurious modern ensuite

  • Loft-style study

  • Tranquil central courtyard

  • Designer main bathroom with full-sized tub

  • Show More Show Less
  • Secure double lock-up garage

Walk-Thru
Reference ID:100P13792 Web ID:zqxb

Listed by Simone Azzi | Belle Property Australia

Contact by phone:  0433 236 281
Contact email form:

Highlights:

  • Heritage charm with contemporary finesse

  • Soaring ceilings and exposed beams

  • Original sawtooth windows

  • Gourmet kitchen with bespoke island bench

  • Alfresco courtyard with built-in barbeque

  • Master suite with luxurious modern ensuite

  • Loft-style study

  • Tranquil central courtyard

  • Designer main bathroom with full-sized tub

  • Secure double lock-up garage

Continue Exploring Related Collections