Beds:5
Baths:1 Full

5231 Los Encantos Circle, La Palma, California, 90623, USA

Listed by: Gil Suniga | First Team Real Estate

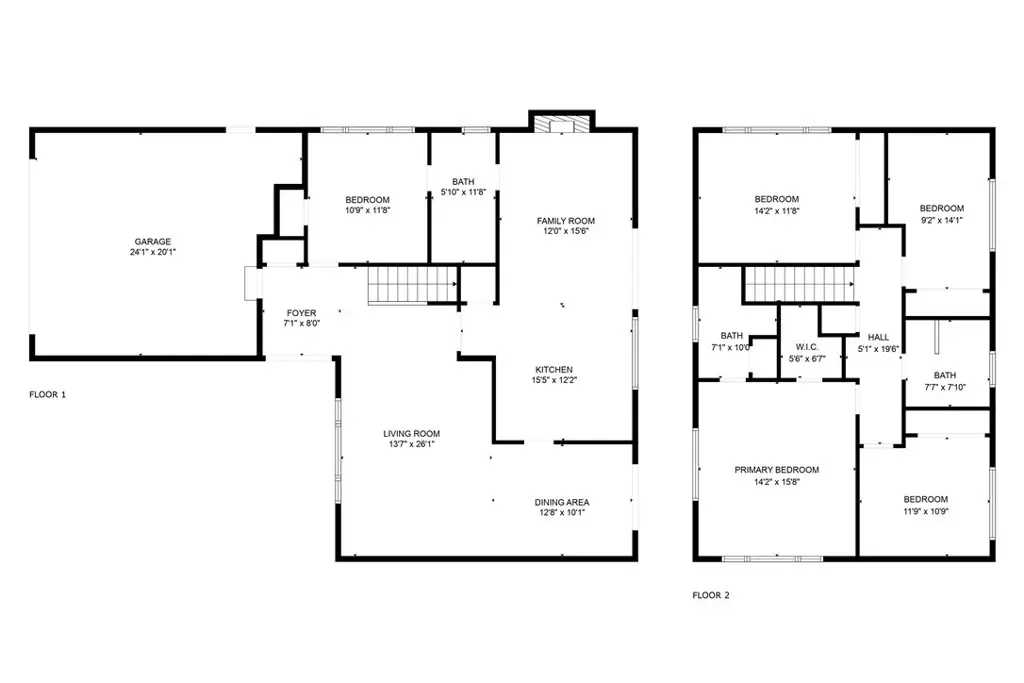
Welcome to 5231 Encantos Circle, La Palma - a beautifully upgraded 5-bedroom, 3-bathroom home offering 2,264 sq ft of living space on a generous 8,709 sq ft lot in a peaceful cul-de-sac. This move-in-ready residence seamlessly blends comfort, style, and functionality in one of Orange County's most desirable communities. Step inside to a bright and open floor plan featuring a formal living room with vaulted ceilings, a cozy family room with a fireplace, and an updated kitchen with quartz countertops, stainless steel appliances, and custom cabinetry. One bedroom and a full bath on the main level provide excellent flexibility for guests, multi-generational living, or a home office. Upstairs, the spacious primary suite includes an en-suite bathroom and walk-in closet, while four additional bedrooms offer space for family, work, or creative use. The expansive lot offers incredible potential - whether you're looking to add a pool, build out an outdoor entertainment area, or park an RV or trailer, there's plenty of room to make your vision a reality. A new automatic sprinkler system helps keep the landscaping green with minimal upkeep. This home has been thoughtfully upgraded with a brand-new HVAC system, all-new ductwork, and new dual-pane windows throughout, providing enhanced energy efficiency, quiet comfort, and long-term value. Additional highlights include recessed lighting, central A/C and heating, a 2-car attached garage, and a durable tile roof. Located close to top-rated schools, parks, shopping, and major freeways, this is an outstanding opportunity in the heart of La Palma. Don't miss your chance to own this spacious, upgraded home on one of the area's largest lots!
Show More Show Less

Welcome to 5231 Encantos Circle, La Palma - a beautifully upgraded 5-bedroom, 3-bathroom home offering 2,264 sq ft of living space on a generous 8,709 sq ft lot in a peaceful cul-de-sac. This move-in-ready residence seamlessly blends comfort, style, and functionality in one of Orange County's most desirable communities. Step inside to a bright and open floor plan featuring a formal living room with vaulted ceilings, a cozy family room with a fireplace, and an updated kitchen with quartz countertops, stainless steel appliances, and custom cabinetry. One bedroom and a full bath on the main level provide excellent flexibility for guests, multi-generational living, or a home office. Upstairs, the spacious primary suite includes an en-suite bathroom and walk-in closet, while four additional bedrooms offer space for family, work, or creative use. The expansive lot offers incredible potential - whether you're looking to add a pool, build out an outdoor entertainment area, or park an RV or trailer, there's plenty of room to make your vision a reality. A new automatic sprinkler system helps keep the landscaping green with minimal upkeep. This home has been thoughtfully upgraded with a brand-new HVAC system, all-new ductwork, and new dual-pane windows throughout, providing enhanced energy efficiency, quiet comfort, and long-term value. Additional highlights include recessed lighting, central A/C and heating, a 2-car attached garage, and a durable tile roof. Located close to top-rated schools, parks, shopping, and major freeways, this is an outstanding opportunity in the heart of La Palma. Don't miss your chance to own this spacious, upgraded home on one of the area's largest lots!

Highlights:

  • Fireplace

  • Quartz countertops

  • Custom cabinetry

  • En-suite bathroom

  • Tile roof

  • Show More Show Less
Reference ID:PW25155887 Web ID:lawt

Listed by Gil Suniga | First Team Real Estate

Contact by phone:  714-328-9883
Contact email form:

Highlights:

  • Fireplace

  • Quartz countertops

  • Custom cabinetry

  • En-suite bathroom

  • Tile roof