Beds:3
Baths:2 Full

1 Greene Street #614X, Jersey City, New Jersey, 07302, USA

Listed by: Christopher Amberg | Weichert Realtors

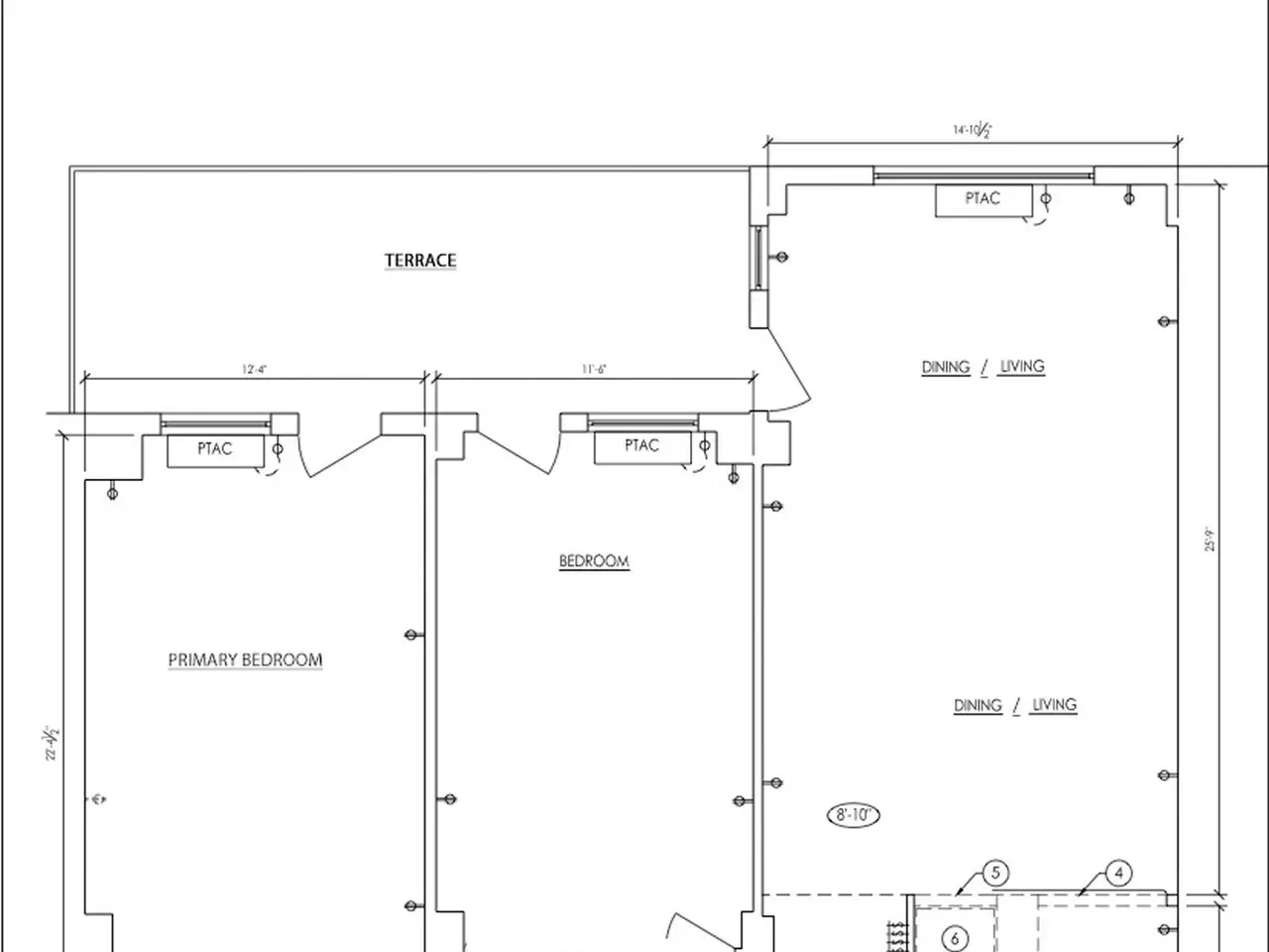
Almost 1500sf of luxury living at Clermont Cove, formerly the Colgate Palmolive Factory, now one of Paulus Hook's most exclusive doorman buildings. This spacious, recently renovated home features two bedrooms plus a large den(3rd BR), two full baths, a large dining living area, plenty of closet space, and a huge private terrace with serene, protected views of the Statue of Liberty, New York Harbor, and Liberty State Park. This sun-filled space boasts an open style kitchen with granite countertops, custom cabinetry, S S appliances and tasteful upgrades including a wine refrigerator and minibar. The terrace can be accessed through the living room and bedrooms. The extra room is currently being used an office/huge primary bedroom suite, but was previously used as a 3rd Bedroom, and can easily be converted back. Approved architectural plans in the photos, detailed plans are available upon request. One valet garage parking space is included in the maintenance fee. Clermont Cove is a full service, luxury building full of amenities including swimming pool, gym, BBQ area, Sky lounge with amazing NYC views, laundry room, and 24 / 7 concierge. One of the best locations in Paulus Hook - surrounded by parks, nature, restaurants, and shopping, PS 16 school district, with easy access to NYC via Ferry or Exchange Place PATH just minutes away. Whole Foods a quick 7min walk.
Show More Show Less

Almost 1500sf of luxury living at Clermont Cove, formerly the Colgate Palmolive Factory, now one of Paulus Hook's most exclusive doorman buildings. This spacious, recently renovated home features two bedrooms plus a large den(3rd BR), two full baths, a large dining living area, plenty of closet space, and a huge private terrace with serene, protected views of the Statue of Liberty, New York Harbor, and Liberty State Park. This sun-filled space boasts an open style kitchen with granite countertops, custom cabinetry, S S appliances and tasteful upgrades including a wine refrigerator and minibar. The terrace can be accessed through the living room and bedrooms. The extra room is currently being used an office/huge primary bedroom suite, but was previously used as a 3rd Bedroom, and can easily be converted back. Approved architectural plans in the photos, detailed plans are available upon request. One valet garage parking space is included in the maintenance fee. Clermont Cove is a full service, luxury building full of amenities including swimming pool, gym, BBQ area, Sky lounge with amazing NYC views, laundry room, and 24 / 7 concierge. One of the best locations in Paulus Hook - surrounded by parks, nature, restaurants, and shopping, PS 16 school district, with easy access to NYC via Ferry or Exchange Place PATH just minutes away. Whole Foods a quick 7min walk.

Highlights:

  • Custom cabinetry

  • Granite countertops

  • Wine refrigerator

  • Private terrace with Statue of Liberty views

  • Gym

  • Swimming pool

  • Sky lounge with NYC views

  • Valet garage parking

  • Open style kitchen

  • S S appliances

  • Show More Show Less
Reference ID:250019467 Web ID:ihpc

Listed by Christopher Amberg | Weichert Realtors

Contact by phone:  9174288317
Contact email form:

Highlights:

  • Custom cabinetry

  • Granite countertops

  • Wine refrigerator

  • Private terrace with Statue of Liberty views

  • Gym

  • Swimming pool

  • Sky lounge with NYC views

  • Valet garage parking

  • Open style kitchen

  • S S appliances