Camas: 4
Balneario:2 Completos | 1 Medio

1221 Chrome Hill Road, Jarrettsville, Maryland, 21084, USA

Listado por: Michael P Scheffenacker | Long & Foster® Real Estate, Inc.

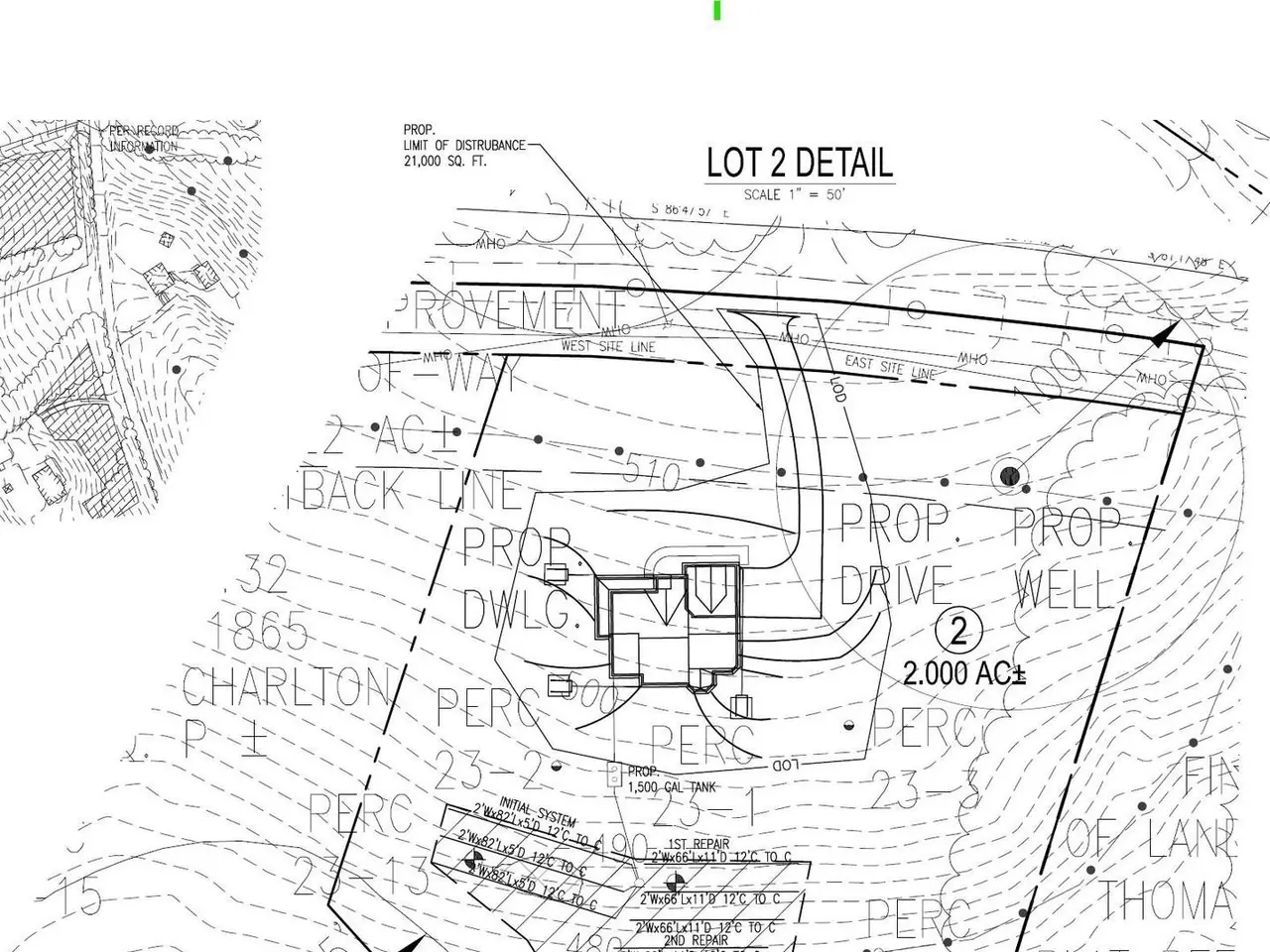
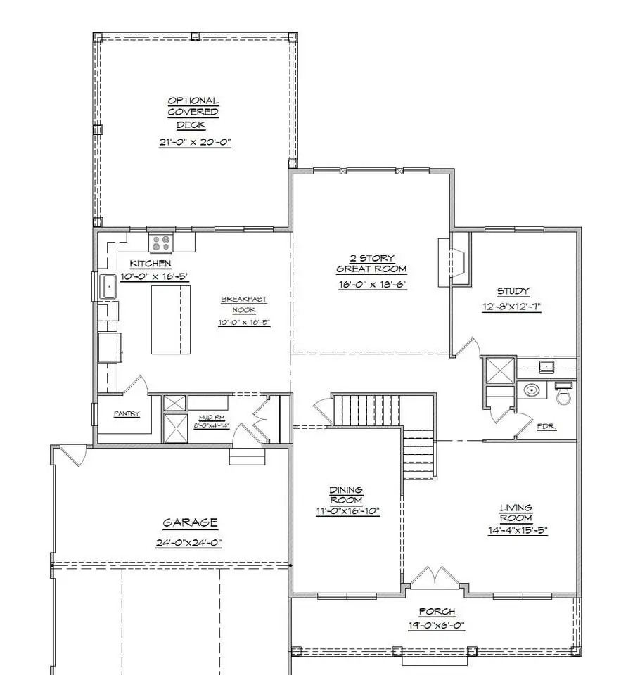
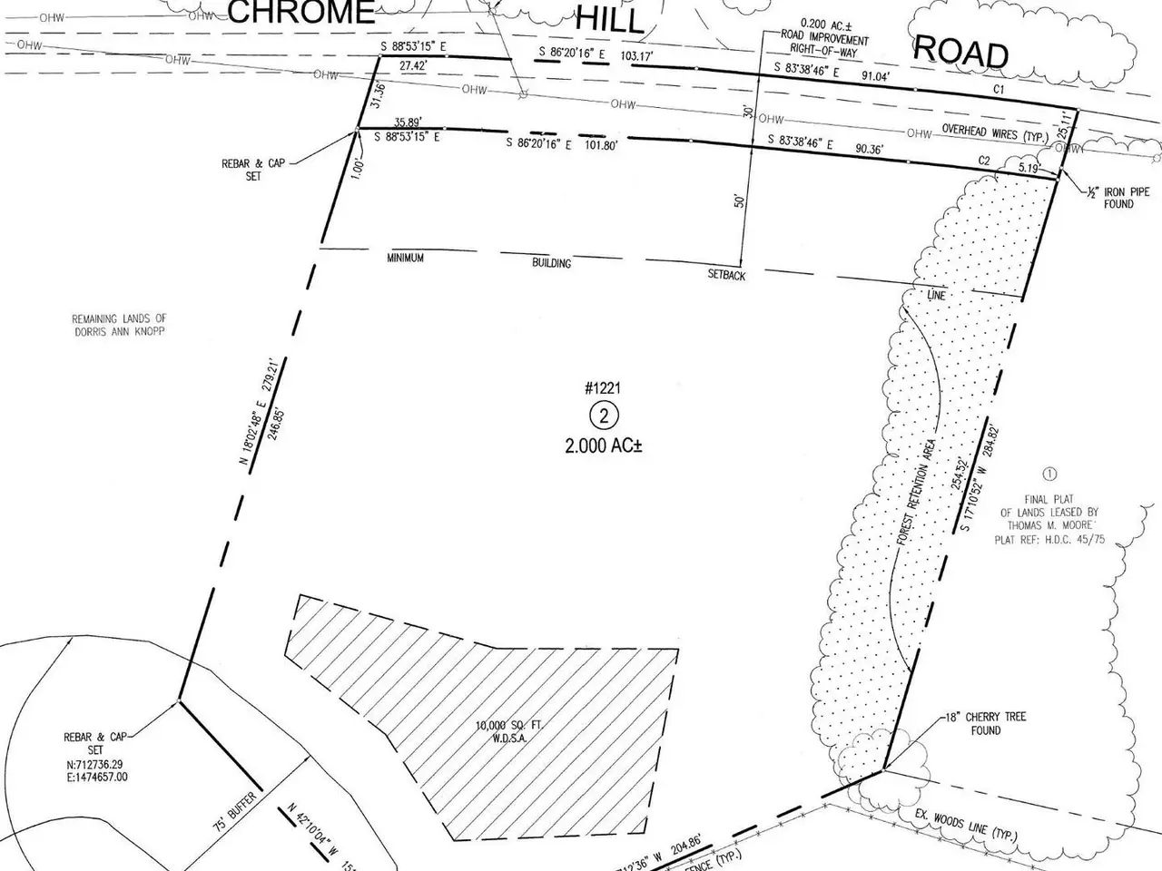
Welcome home to 1221 Chrome Hill Rd, a 2.0 Acre homesite in Jarrettsville. Enjoy breath taking panoramic views and wide-open spaces in a quite picturesque setting. Build the custom home of your dreams, turning your vision into reality, with Paragon Custom Homes, the builder tie into this property. The homesite offers the perfect blend of privacy and convenience, located just minutes from downtown Bel Air. The Claire model from Paragon Custom Homes is featured, actual house will feature a walk out basement, photos in this listing are from a previous project, you get to pick your own floorplan and finishes, let us help you craft your dream home. Schedule your appointment today!
Mostrar más Mostrar menos

Welcome home to 1221 Chrome Hill Rd, a 2.0 Acre homesite in Jarrettsville. Enjoy breath taking panoramic views and wide-open spaces in a quite picturesque setting. Build the custom home of your dreams, turning your vision into reality, with Paragon Custom Homes, the builder tie into this property. The homesite offers the perfect blend of privacy and convenience, located just minutes from downtown Bel Air. The Claire model from Paragon Custom Homes is featured, actual house will feature a walk out basement, photos in this listing are from a previous project, you get to pick your own floorplan and finishes, let us help you craft your dream home. Schedule your appointment today!

Reflejos:

  • Custom home built with premium materials

  • Panoramic views of picturesque surroundings

  • Wide-open spaces on a 2.0 Acre homesite

  • Build your dream home with Paragon Custom Homes

  • Blend of privacy and convenience

  • Minutes from downtown Bel Air

  • Option for walk out basement

  • Ability to pick floorplan and finishes

  • Craft your dream home with help from experts

  • Schedule appointment to tour property

  • Mostrar más Mostrar menos
ID de referencia:MDHR2045714 Identificación web:kchh

Listado por Michael P Scheffenacker | Long & Foster® Real Estate, Inc.

Contact by phone:  8885360216
Formulario de correo electrónico de contacto:

Reflejos:

  • Custom home built with premium materials

  • Panoramic views of picturesque surroundings

  • Wide-open spaces on a 2.0 Acre homesite

  • Build your dream home with Paragon Custom Homes

  • Blend of privacy and convenience

  • Minutes from downtown Bel Air

  • Option for walk out basement

  • Ability to pick floorplan and finishes

  • Craft your dream home with help from experts

  • Schedule appointment to tour property