Camas: 3
Balneario:3 Completos | 1 Medio

1 North Illinois Street ## 11, Indianapolis, Indiana, 46204, USA

Listado por: Compañía F.C. Tucker

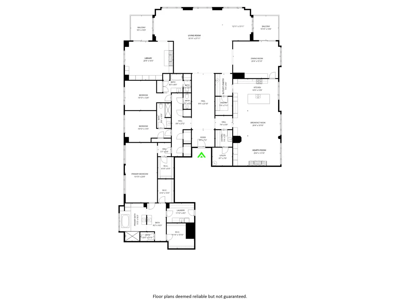
Perched high above the heart of downtown Indianapolis, Residence #11 at the iconic 1 N. Illinois Street inside the Conrad Indianapolis offers a level of sophistication, privacy, and luxury that is simply unrivaled. Encompassing over 5,000 square feet of exquisitely curated living space, this sky-high residence features nearly 360-degree panoramic views of the city's skyline. A stately 30-foot gallery-style entryway sets the tone for this extraordinary home, where refined craftsmanship and timeless design are found at every turn. The gourmet kitchen is a chef's dream, outfitted with top-tier appliances including Wolf double ovens and gas range, Sub-Zero integrated refrigeration, and Miele dishwasher, all seamlessly integrated into custom cabinetry and generous stone countertops. A large center island anchors the space, which flows effortlessly into a sunlit hearth room with gas fireplace - the perfect spot for relaxed mornings or quiet evenings. An adjacent butler's pantry provides discreet service access between the kitchen and the formal dining room, while two outdoor terraces, including one with a gas firepit, invite year-round al fresco enjoyment. The grand living room offers breathtaking vistas and abundant natural light, while a richly paneled library with bespoke built-ins and access to a private terrace provides a warm and contemplative retreat. The primary suite is a true sanctuary, featuring a generous bedroom with stunning views, dual walk-in closets, and a spa-like bath with garden tub, double vanities, and elegant finishes. Additional guest suites each offer private en-suite baths and ample closet space, ensuring comfort and privacy for all. Located within one of Indianapolis' most exclusive and secure residential communities - home to just 14 residences - this property includes two private parking spaces in a secured garage and access to a full suite of amenities; 24-hour security, full-time concierge, private entrance, spa, fitness center, and pool.
Mostrar más Mostrar menos

Perched high above the heart of downtown Indianapolis, Residence #11 at the iconic 1 N. Illinois Street inside the Conrad Indianapolis offers a level of sophistication, privacy, and luxury that is simply unrivaled. Encompassing over 5,000 square feet of exquisitely curated living space, this sky-high residence features nearly 360-degree panoramic views of the city's skyline. A stately 30-foot gallery-style entryway sets the tone for this extraordinary home, where refined craftsmanship and timeless design are found at every turn. The gourmet kitchen is a chef's dream, outfitted with top-tier appliances including Wolf double ovens and gas range, Sub-Zero integrated refrigeration, and Miele dishwasher, all seamlessly integrated into custom cabinetry and generous stone countertops. A large center island anchors the space, which flows effortlessly into a sunlit hearth room with gas fireplace - the perfect spot for relaxed mornings or quiet evenings. An adjacent butler's pantry provides discreet service access between the kitchen and the formal dining room, while two outdoor terraces, including one with a gas firepit, invite year-round al fresco enjoyment. The grand living room offers breathtaking vistas and abundant natural light, while a richly paneled library with bespoke built-ins and access to a private terrace provides a warm and contemplative retreat. The primary suite is a true sanctuary, featuring a generous bedroom with stunning views, dual walk-in closets, and a spa-like bath with garden tub, double vanities, and elegant finishes. Additional guest suites each offer private en-suite baths and ample closet space, ensuring comfort and privacy for all. Located within one of Indianapolis' most exclusive and secure residential communities - home to just 14 residences - this property includes two private parking spaces in a secured garage and access to a full suite of amenities; 24-hour security, full-time concierge, private entrance, spa, fitness center, and pool.

Recorrido a pie
ID de referencia:22065026 Identificación web:qsgs

Contactar con el agente |Compañía F.C. Tucker

Formulario de correo electrónico de contacto: