Beds:5
Baths:3 Full

72 Jansz Crescent, Griffith, ACT, 2603, Australia

Listed by: Louise Harget | Belle Property Australia

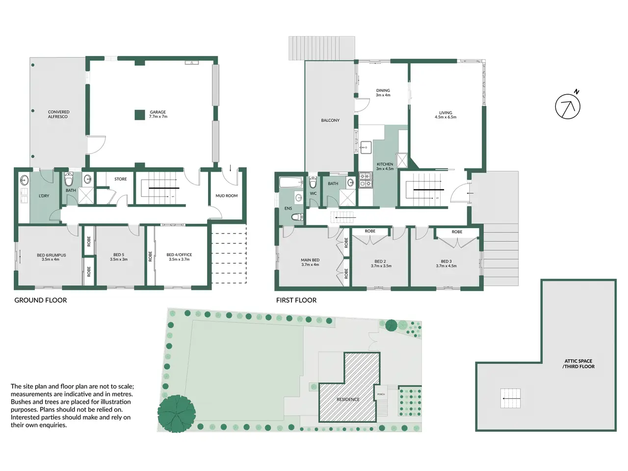
Perfectly positioned within walking distance of Canberra Grammar, St Bede's, Red Hill Primary, and Narrabundah College, 72 Jansz Crescent offers premium family living in a tightly held Griffith pocket. Set on a generous block, the home has been extensively renovated for modern living. Inside, enjoy a new kitchen with Miele cooktop and dishwasher, three renovated bathrooms, and a new master ensuite converted from the original laundry, complete with full robes. A new gas heater, high-performance double glazing, and upgraded ceiling insulation, including above the garage, provide year-round comfort. Interiors feature Mountain Ash timber flooring, quality carpets, and stylish window furnishings. The rumpus room opens to a rear deck via a full-width sliding glass door, enhancing the connection to outdoor spaces. Additional upgrades include a new storage room, updated LED lighting, and two new rear entertaining decks. New Merbau stairs have been added to the north, providing access from the freshly-tiled upper patio to the garden with a glass balustrade and safety gate. Enjoy views to the north-east through leafy street trees and up to Red Hill at the rear, with a recently turfed lawn and cleared, levelled backyard, retained on two sides – perfect for a future pool or open play space. Mature plantings include olive trees, camellias, magnolias, crepe myrtles, and Japanese maples, complemented by Corten steel edging, epoxy-coated exposed aggregate paths and driveway, and sensor lighting throughout. Security and function are top priorities, with a CrimTrac security door, lockable side gate, remote garage doors, and a custom Western Red Cedar front door with Grange pin pad. The garage features epoxy flooring and a plywood ceiling, while a 10.45kW battery-ready solar system adds energy efficiency. The home is also fully irrigated, with a lockable parcel letterbox and charcoal cobblestone front path completing the appeal. A rare opportunity to secure a thoughtfully upgraded, move-in-ready home in a prestigious Inner South address. * Brand-new Miele appliances, stylish new kitchen, and three fully renovated bathrooms * New Mountain Ash timber floors throughout dining, living, rumpus, and hallways, complemented by quality carpets and window furnishings * New gas heater, high-quality double glazing, upgraded ceiling insulation, and a 10.45 kW battery-ready solar system * Expansive rumpus room opens via a new sliding glass door to two back decks, perfect for entertaining * Quality bathroom, kitchen and laundry joinery, benches and fittings, including a 760mm Meir Double Bowl kitchen sink and matching mixer tap * Contemporary feature lighting from About Space * Upstairs laundry converted to a spacious master ensuite with full built-in wardrobes * Solid Western Red Cedar front door, CrimTrac security door, remote-operated garage doors, and secure side fencing * Full electrical, plumbing, and lighting upgrade, including LED and pendant lighting throughout  * Landscaped backyard with levelled lawn, retaining walls, mature plantings, fully irrigated gardens, and room for a pool or recreation * Automatic irrigation system throughout gardens * Stonework with Canberra bush rock, hand-collected local volcanic and granite stones from the 1940s–60s * Sealed driveway, tiled front steps and patio, glass balustrade, feature lighting, and modern letterbox with parcel delivery access * Brand-new garage epoxy floor * Fold-away wood stairs providing access to the attic, offering potential for a full attic conversion * Extensive storage, including the new ground-floor storage room and the loft space with hardwood floors, accessed via fold-away stairs from the hallway Living Size: 217sqm (approx.) Land Size: 1018sqm (approx.) Rates: $8,691pa (approx.) Land Tax: $18,756pa (approx.) UCV: $1,550,000 (2025) EER: 2.5 Whilst all care has been taken to ensure accuracy in the preparation of the particulars herein, no warranty can be given, and interested parties must rely on their own enquiries. This business is independently owned and operated by Belle Property Canberra. ABN 95 611 730 806 trading as Belle Property Canberra.
Show More Show Less

Perfectly positioned within walking distance of Canberra Grammar, St Bede's, Red Hill Primary, and Narrabundah College, 72 Jansz Crescent offers premium family living in a tightly held Griffith pocket. Set on a generous block, the home has been extensively renovated for modern living. Inside, enjoy a new kitchen with Miele cooktop and dishwasher, three renovated bathrooms, and a new master ensuite converted from the original laundry, complete with full robes. A new gas heater, high-performance double glazing, and upgraded ceiling insulation, including above the garage, provide year-round comfort. Interiors feature Mountain Ash timber flooring, quality carpets, and stylish window furnishings. The rumpus room opens to a rear deck via a full-width sliding glass door, enhancing the connection to outdoor spaces. Additional upgrades include a new storage room, updated LED lighting, and two new rear entertaining decks. New Merbau stairs have been added to the north, providing access from the freshly-tiled upper patio to the garden with a glass balustrade and safety gate. Enjoy views to the north-east through leafy street trees and up to Red Hill at the rear, with a recently turfed lawn and cleared, levelled backyard, retained on two sides – perfect for a future pool or open play space. Mature plantings include olive trees, camellias, magnolias, crepe myrtles, and Japanese maples, complemented by Corten steel edging, epoxy-coated exposed aggregate paths and driveway, and sensor lighting throughout. Security and function are top priorities, with a CrimTrac security door, lockable side gate, remote garage doors, and a custom Western Red Cedar front door with Grange pin pad. The garage features epoxy flooring and a plywood ceiling, while a 10.45kW battery-ready solar system adds energy efficiency. The home is also fully irrigated, with a lockable parcel letterbox and charcoal cobblestone front path completing the appeal. A rare opportunity to secure a thoughtfully upgraded, move-in-ready home in a prestigious Inner South address. * Brand-new Miele appliances, stylish new kitchen, and three fully renovated bathrooms * New Mountain Ash timber floors throughout dining, living, rumpus, and hallways, complemented by quality carpets and window furnishings * New gas heater, high-quality double glazing, upgraded ceiling insulation, and a 10.45 kW battery-ready solar system * Expansive rumpus room opens via a new sliding glass door to two back decks, perfect for entertaining * Quality bathroom, kitchen and laundry joinery, benches and fittings, including a 760mm Meir Double Bowl kitchen sink and matching mixer tap * Contemporary feature lighting from About Space * Upstairs laundry converted to a spacious master ensuite with full built-in wardrobes * Solid Western Red Cedar front door, CrimTrac security door, remote-operated garage doors, and secure side fencing * Full electrical, plumbing, and lighting upgrade, including LED and pendant lighting throughout  * Landscaped backyard with levelled lawn, retaining walls, mature plantings, fully irrigated gardens, and room for a pool or recreation * Automatic irrigation system throughout gardens * Stonework with Canberra bush rock, hand-collected local volcanic and granite stones from the 1940s–60s * Sealed driveway, tiled front steps and patio, glass balustrade, feature lighting, and modern letterbox with parcel delivery access * Brand-new garage epoxy floor * Fold-away wood stairs providing access to the attic, offering potential for a full attic conversion * Extensive storage, including the new ground-floor storage room and the loft space with hardwood floors, accessed via fold-away stairs from the hallway Living Size: 217sqm (approx.) Land Size: 1018sqm (approx.) Rates: $8,691pa (approx.) Land Tax: $18,756pa (approx.) UCV: $1,550,000 (2025) EER: 2.5 Whilst all care has been taken to ensure accuracy in the preparation of the particulars herein, no warranty can be given, and interested parties must rely on their own enquiries. This business is independently owned and operated by Belle Property Canberra. ABN 95 611 730 806 trading as Belle Property Canberra.

Highlights:

  • New Mountain Ash timber flooring throughout

  • Stylish kitchen with brand-new Miele appliances

  • Expansive rumpus room with sliding glass door to back decks

  • Upgraded double glazing and high-quality insulation

  • Master ensuite with full built-in wardrobes

  • Show More Show Less
Walk-Thru
Reference ID:222P607802 Web ID:kveg

Listed by Louise Harget | Belle Property Australia

Contact by phone:  0412 997 894
Contact email form:

Highlights:

  • New Mountain Ash timber flooring throughout

  • Stylish kitchen with brand-new Miele appliances

  • Expansive rumpus room with sliding glass door to back decks

  • Upgraded double glazing and high-quality insulation

  • Master ensuite with full built-in wardrobes