Beds:4
Baths:2 Full

1 Ross Street, Gladesville, NSW, 2111, Australia

Listed by: Michael Gallina | Belle Property Australia

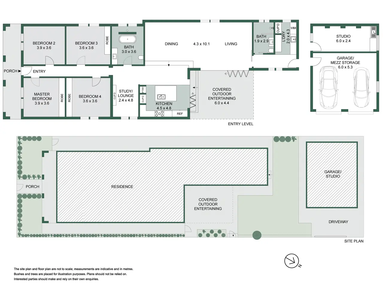
A commanding presence on a generous 627sqm corner block, this elegant brick single storey home exudes timeless appeal and enduring quality, something only truly appreciated once inside its solid walls. Beautifully proportioned, it offers large accommodation and living spaces, high ceilings and abundant natural light throughout, blending classic charm with contemporary functionality. With its prized dual street frontage and sought-after position, the property also presents exceptional potential for the future to redevelop into a duplex, or build a brand-new luxury home (STCA). Perfectly placed for lifestyle and convenience, it's within walking distance from the Gladesville Village, cafes, restaurants, quality schools and transport links. - Spacious modern kitchen with ample bench space and storage - Four well-proportioned bedrooms, dedicated office space - Two full spacious bathrooms, separate studio behind the garage - Brick construction underpinning quality and longevity - Dual street frontage, wide access and extra parking potential - North-facing rear garden, ideal for relaxed outdoor living - Corner block offering privacy, presence and future development - Walk to cafés, shops, buses and ferry at your doorstep
Show More Show Less

A commanding presence on a generous 627sqm corner block, this elegant brick single storey home exudes timeless appeal and enduring quality, something only truly appreciated once inside its solid walls. Beautifully proportioned, it offers large accommodation and living spaces, high ceilings and abundant natural light throughout, blending classic charm with contemporary functionality. With its prized dual street frontage and sought-after position, the property also presents exceptional potential for the future to redevelop into a duplex, or build a brand-new luxury home (STCA). Perfectly placed for lifestyle and convenience, it's within walking distance from the Gladesville Village, cafes, restaurants, quality schools and transport links. - Spacious modern kitchen with ample bench space and storage - Four well-proportioned bedrooms, dedicated office space - Two full spacious bathrooms, separate studio behind the garage - Brick construction underpinning quality and longevity - Dual street frontage, wide access and extra parking potential - North-facing rear garden, ideal for relaxed outdoor living - Corner block offering privacy, presence and future development - Walk to cafés, shops, buses and ferry at your doorstep

Reference ID:222P507744 Web ID:bgoh

Listed by Michael Gallina | Belle Property Australia

Contact by phone:  0402 320 265
Contact email form: